Hullen Edge Lane, Greetland

£325,000
SSTC
This property listing is now SSTC

3 Bedroom House for sale in Greetland

2 3 1
  • A Distinctive Three-Bedroom Home with Exceptional Space and Style
  • Lounge With Bespoke Shelving And Juliet Balcony
  • Breakfast Kitchen
  • Living / Dining Room
  • Office / Playroom
  • Dressing Room / Study
  • Downstairs Cloakroom
  • Integral Double Garage
  • Electric Gates Leading To Block Paved Driveway

A Distinctive Three-Bedroom Home with Exceptional Space and Style

Situated on popular Hullen Edge Lane, this impressive three-bedroom home offers a unique layout combining style, space, and versatility. At its heart is a spacious living/dining kitchen, ideal for modern family life and entertaining.

The stunning lounge features bespoke shelving units and a Juliet balcony, creating a bright and elegant space to relax and unwind. A cloakroom adds convenience, while a versatile study/playroom provides flexibility for work or leisure.

Externally, the property boasts an integral double garage, gated driveway, and a useful shed/workshop, ensuring ample parking and storage.

Blending thoughtful design with practical features, this distinctive home offers a superb opportunity in a popular and convenient location with convenient access to the M62 motorway network, local transport link, schools and amenities.

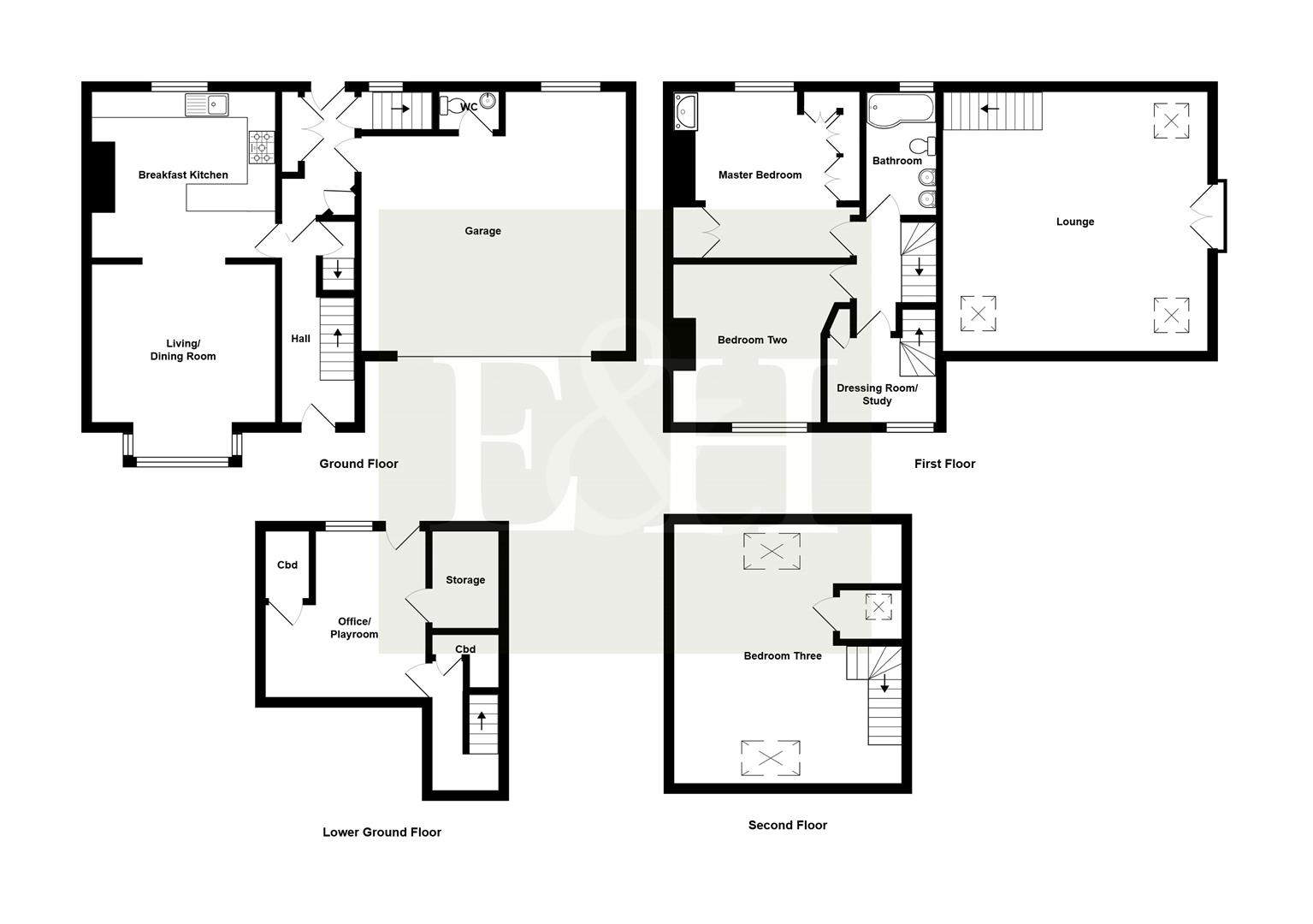
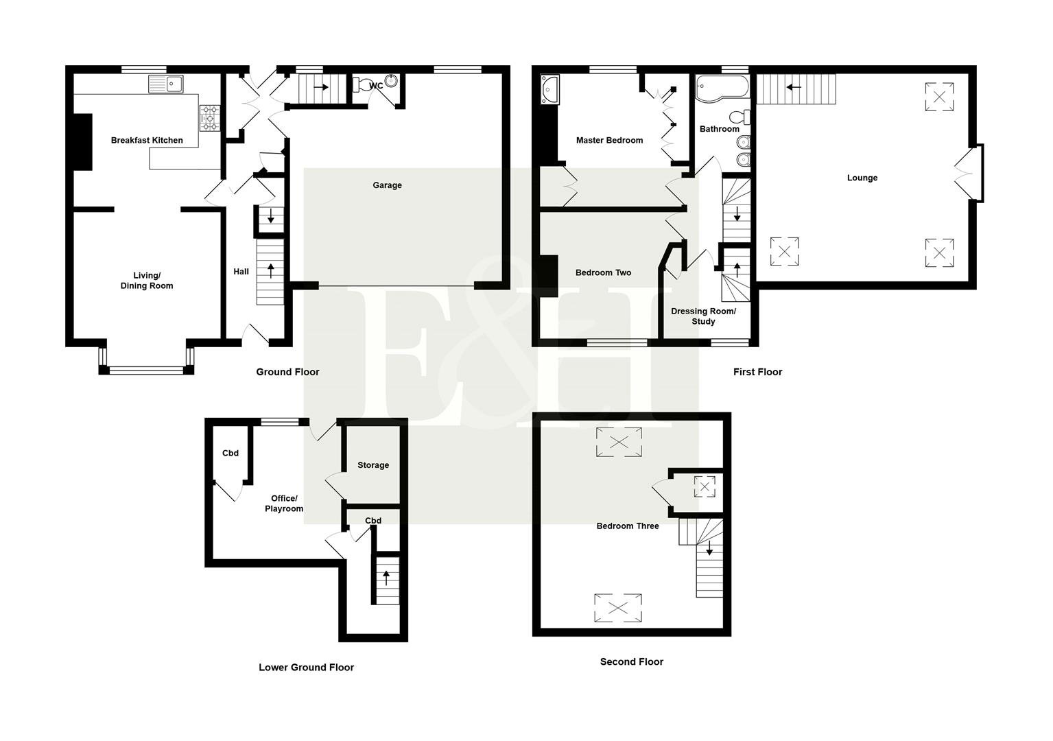
Entrance Hall - Composite double glazed door to front elevation.

Living / Dining Room - 4.113 x 3.793 plus bay (13'5" x 12'5" plus bay) - Original skirting board, ceiling rose and coving. Radiator. UPVC double glazed bay window to front elevation.

Breakfast Kitchen - 4.231 x 3.849 (13'10" x 12'7") - Fitted kitchen with a range of wall and base units. Corian worksurfaces. Single bowl undercounter sink. Smeg Range cooker and American style fridge freezer (available by separate negotiation). Stainless steel cooker hood. Integrated dishwasher. Radiator. UPVC double glazed window to rear elevation.

Rear Vestibule - Built-in coat and shoe storage plus large storage cupboard. Radiator. UPVC double glazed door to rear elevation. Doors leading to integral garage and lounge.

Lounge - 6.145 x 5.549 (20'1" x 18'2") - Accessed via stairs from the rear entrance vestibule this room offers potential for multiple uses. Bespoke fitted shelving. Four Velux windows. UPVC double glazed window to rear elevation. UPVC double glazed French doors with Juliet balcony.

Office / Playroom - 4.142 x 3.608 (13'7" x 11'10") - Cupboard housing boiler plus separate storage cupboard. Radiator. UPVC double glazed window to rear elevation. UPVC door to rear garden.

Landing - Stairs leading from Entrance Hall. Light tube.

Master Bedroom - 3.887 x 3.742 (12'9" x 12'3") - Fitted wardrobes with built in vanity unit. Radiator. UPVC double glazed window to rear elevation.

Bedroom Two - 3.202 plus recess x 3.741 (10'6" plus recess x 12' - Bench radiator. UPVC double glazed window to front elevation.

Bathroom - Twin wash hand basins. Low flush W.C. Bath with mixer taps and shower over. Built in Bose speaker. Fully tiled. Towel radiator. Extractor fan. UPVC double glazed window to rear elevation.

Dressing Room / Study - 2.473 x 2.007 (8'1" x 6'7") - Built in wardrobe and drawers. Radiator. UPVC double glazed window to front elevation. Stairs to Bedroom Three.

Bedroom Three - 5.592 x 5.270 (18'4" x 17'3") - Stairs leading from Dressing Room / Study.
Exposed beams. Two Velux windows.
Cupboard with Velux window - which would be suitable to convert into an en-suite.

Integral Double Garage - 5.627 x 4.841 plus recess (18'5" x 15'10" plus rec - Electric roller door. Radiator. Plumbing for washing machine and space for dryer. Clothes drying rack.

Cloakroom - Located to the rear of the garage. WC and wash hand basin.

Parking - Electric gates leading to the block paved driveway offering off road parking.

Garden - A well proportioned decking and lawn garden with far reaching views across the valley. Outdoor lighting and tap. L-shaped outbuilding with power and lighting, ideally suited for workshop and storage. The rear garden can also be accessed via the lane to the rear of the house.

Council Tax Band - D

Location - To find the property, you can download a free app called What3Words which every 3 metre square of the world has been given a unique combination of three words.

The three words designated to this property is: hers.slave.solid

Disclaimer - DISCLAIMER: Whilst we endeavour to make our sales details accurate and reliable they should not be relied on as statements or representations of fact and do not constitute part of an offer or contract. The Seller does not make or give nor do we or our employees have authority to make or give any representation or warranty in relation to the property. Please contact the office before viewing the property to confirm that the property remains available. This is particularly important if you are contemplating travelling some distance to view the property. If there is any point which is of particular importance to you we will be pleased to check the information for you. We would strongly recommend that all the information which we provide about the property is verified by yourself on inspection and also by your conveyancer, especially where statements have been made to the effect that the information provided has not been verified.
We are not a member of a client money protection scheme.

Property Ref: 9878964_34289615

Share:

Similar Properties

The Croft, Sheriff Hutton, York

3 Bedroom Semi-Detached Bungalow | £325,000

Beautifully renovated and offered with no onward chain, this spacious three bedroom semi-detached bungalow is move-in re...

Sowood Green, Sowood, Halifax

3 Bedroom Cottage | £320,000

Set in the picturesque village of Sowood, this beautifully presented three-bedroom detached cottage combines countryside...

Tailor Close, Scholes, Cleckheaton

3 Bedroom Semi-Detached House | £310,000

Immaculate 3-Bedroom Semi-Detached Home with breathtaking Panoramic Views in the desirable Village of Scholes. This beau...

Cawcliffe Drive, Brighouse

4 Bedroom Semi-Detached Bungalow | £330,000

A beautifully presented, four-bedroom dormer bungalow situated in a highly sought-after area of Brighouse. This versatil...

Fall Spring Green, Stainland

4 Bedroom Detached House | £330,000

Welcome to this executive four-bedroom detached house, built in 1992 which is located in the picturesque village of Stai...

Calder Mews, Greetland

4 Bedroom Townhouse | £345,000

**Only One Plot Remaining**The Bramham is a beautifully designed three/four-bedroom family home in Greetland, Halifax, f...

Edkins & Holmes (Halifax)

Halifax, Halifax, HX4 8AD

01422310044

How much is your home worth?

Use our short form to request a valuation of your property.

Request a Valuation

Mortgage Calculator

Amount Borrowed: £
Total Amount Repayable: £
Total Monthly Payment: £
©2025 The Guild of Property Professionals. All rights reserved. Terms and Conditions | Privacy Policy | Cookie Policy | Complaints Policy | Members Login
The Guild of Property Professionals Trading Address: 121 Park Lane, London W1K 7AG. GPEA Limited. Registered in England & Wales.  Company No: 02819824.  Registered Office Address: 2 St. Stephen's Court, St. Stephen's Road, Bournemouth, Dorset, England, BH2 6LA.  VAT Registration No: 576 8795 61
Book a Property Valuation Update Cookies Preferences