Coldharbour Road, Upper Dicker

Guide Price
£400,000
SSTC
This property listing is now SSTC

5 Bedroom Detached House for sale in Hailsham

2 5 4

GUIDE PRICE: £400,000 - £450,000

• Development land for a large bespoke detached 4 to 5-bedroomed chalet bungalow

• Site is circa 0.4 of an acre (to be verified)

• Located in the heart of Upper Dicker Village, backing onto farmland and siding onto the cricket field

• Proposed accommodation overall is circa 3,207 square feet

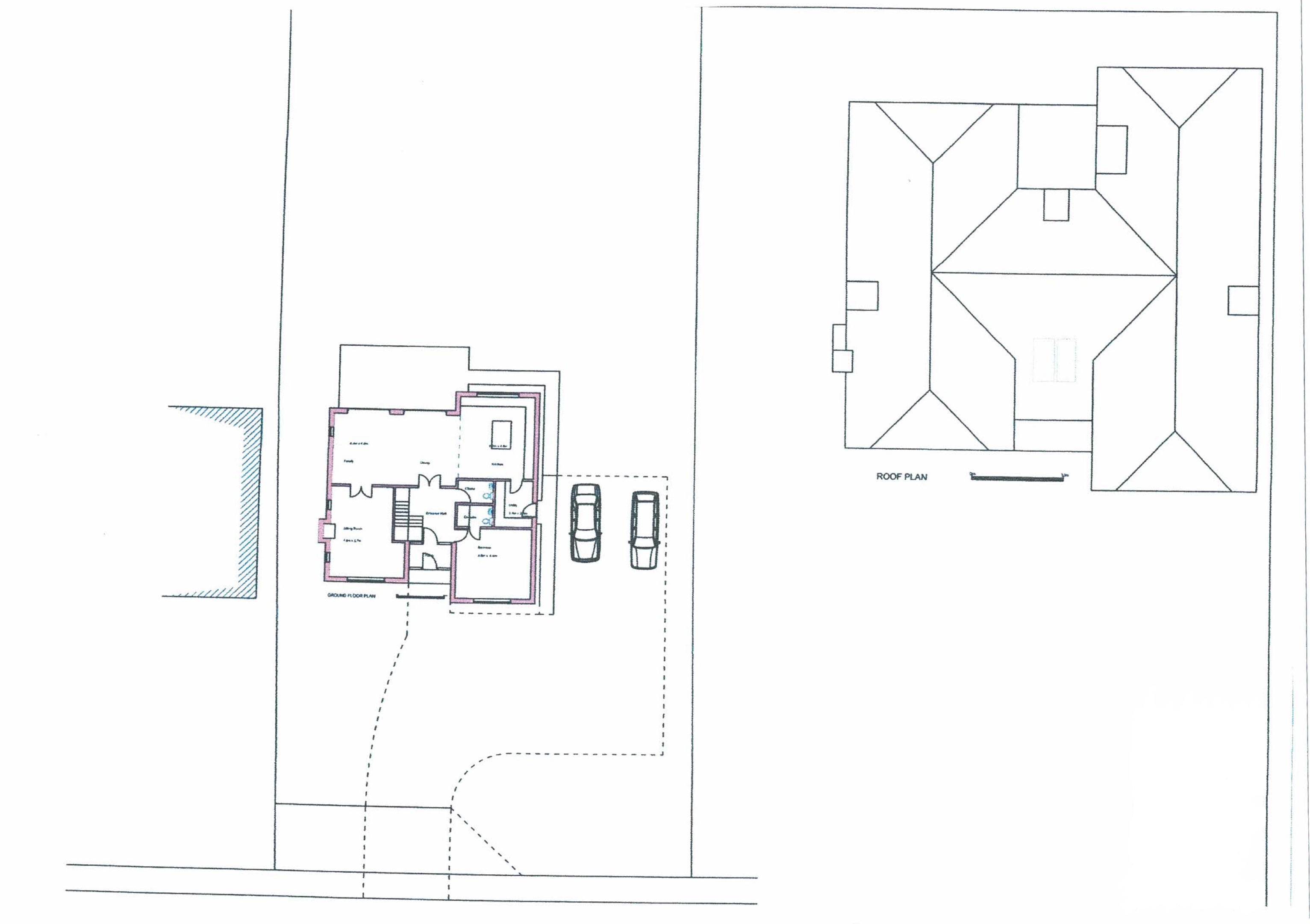
• The internal proposed accommodation is to comprise the following:

• Ground floor: Large entrance vestibule/porch

• Large reception hall

• Cloakroom

• Sitting room

• Family room

• Open plan dining room

• Kitchen/breakfast room

• Utility room

• Ground floor double bedroom five with an ensuite shower room

• First floor: Large landing

• Four double bedrooms

• Two en-suite shower rooms

• Family bathroom/shower room

• Attractive views over the cricket field and grazing meadows

• Short walk to village amenities including a pub, local shop, and dental surgery

• Berwick train station for London and Brighton is also only a short drive away, making this luxury building plot perfect for London buyers looking for a luxury bespoke building plot

DESCRIPTION: An extremely rare chance to purchase a luxury bespoke circa 0.4 of an acre building plot (half an acre to be verified) with planning permission granted and approved for a circa 3,207 square foot impressive designed 4 to 5 bedroomed chalet bungalow, that will pleasantly back onto open grazing meadows, as well as siding onto the village cricket/playing field.

The proposed accommodation will comprise of a large reception hall after an intial enetrance vestibule, a cloakroom, a sitting room with a feature fireplace, a family room, an open plan dining room, a kirchen / breakfast room (also open plan), a utility room, ground floor bedroom five with an ensuite shower room all to the ground floor.

On the first floor, the proposed accommodation is intended to comprise of 4 further double bedrooms, with sepereate en-suite shower rooms for both bedroom two and bedroom one, as well as a dressing room to accompany bedroom one. There is a large family bathroom for the remaining bedrooms. This all being combined together to provide a very spacious and generously proportioned internal area of 3,207 square feet overall.

There is a large driveway and parking area to the front of this proposed bespoke chalet bungalow, with future potential to obtain planning permission for attached or detached garaging in the future.

LOCATION: This proposed detached 3,207 square foot chalet 4 to 5 bedroomed bungalow is situated close to the heart of the very desirable Upper Dicker village with its local shop and café, and popular pub. Berwick train station is also only a short drive away, making this property ideal for London and Brighton city commuters.

The South Downs National Park and the coast are both also within a convenient drive away, as are a number of Golf courses. Horse riding and cycling are also very popular in the area, and there are numerous routes to choose from.

Depending upon educational needs, there are numerous reputable teaching institutions to choose from, including Bede’s, Eastbourne College, Brighton College, Lancing, Mayfield School for Girls, and Battle, to name but a few.

PLANNING PERMISSION HAS BEEN GRANTED AND APPROVED

All viewing is strictly by appointment through the selling agent, Neville and Neville Estate Agents (Land and New Homes Department)

AGENTS NOTE: Please note that these details have been prepared as a general guide and do not form part of a contract. We have not carried out a detailed survey, nor tested the services, appliances and specific fittings. Room sizes are approximate and should not be relied upon. Any verbal statements or information given about this property, again, should not be relied on and should not form part of a contract or agreement to purchase.

Important Information

  • This is a Freehold property.

Property Ref: FAN250039

Share:

Similar Properties

Brewer Street, Lamberhurst

Land | Asking Price £400,000

GUIDE PRICE: £400,000MAIN SPECIFICATIONS: APPROXIMATELY 1.9 ACRES OF WHAT IS BELIEVED TO BE A BROWNFIELD SITE AT LAMBERH...

North Street, Waldron

4 Bedroom Semi-Detached House | Asking Price £400,000

GUIDE PRICE: £400,000-£450,000MAIN SPECIFICATIONS: ALTHOUGH REQUIRING MODERNISATION AND REDECORATING THROUGHOUT, THIS SE...

Herstmonceux

Land | Guide Price £400,000

GUIDE PRICE £400,000 to £500,000FULL PLANNING PERMISSION TO BUILD A SMALL VILLAGE DEVELOPMENT SITE ON THE OUTSKIRTS OF H...

Mutton Hall Hill, Heathfield

3 Bedroom Semi-Detached House | Guide Price £425,000

GUIDE PRICE: £425,000 - £450,000• Three-bedroom semi- detached house approximately 2-year-old new build• Located down a...

Church Lane, Ninfield

Land | Guide Price £425,000

GUIDE PRICE £425,000LAND AND FARMS DEPARTMENTLOCAL OFFICE 01323 833630LONDON OFFICE 0203 0965353Circa 5.5 acres land wit...

Ersham Road

4 Bedroom Detached House | Asking Price £427,950

MAIN SPECIFICATIONS: DETACHED MODERN 5 BEDROOMED FAMILY HOUSE. CAREFULLY UPGRADED TO INCLUDE AN IMPRESSIVE SHAKER STYLE...

Neville & Neville Estate Agents (Hailsham)

Cowbeech, Hailsham, East Sussex, BN27 4JL

01323 833 630

How much is your home worth?

Use our short form to request a valuation of your property.

Request a Valuation

Mortgage Calculator

Amount Borrowed: £
Total Amount Repayable: £
Total Monthly Payment: £
©2026 The Guild of Property Professionals. All rights reserved. Terms and Conditions | Privacy Policy | Cookie Policy | Complaints Policy | Members Login
The Guild of Property Professionals Trading Address: 121 Park Lane, London W1K 7AG. GPEA Limited. Registered in England & Wales.  Company No: 02819824.  Registered Office Address: 2 St. Stephen's Court, St. Stephen's Road, Bournemouth, Dorset, England, BH2 6LA.  VAT Registration No: 576 8795 61
Book a Property Valuation Update Cookies Preferences