Amport, Andover, Hampshire, SP11

£2,500,000
SSTC
This property listing is now SSTC

7 Bedroom Detached House for sale in Hampshire

7
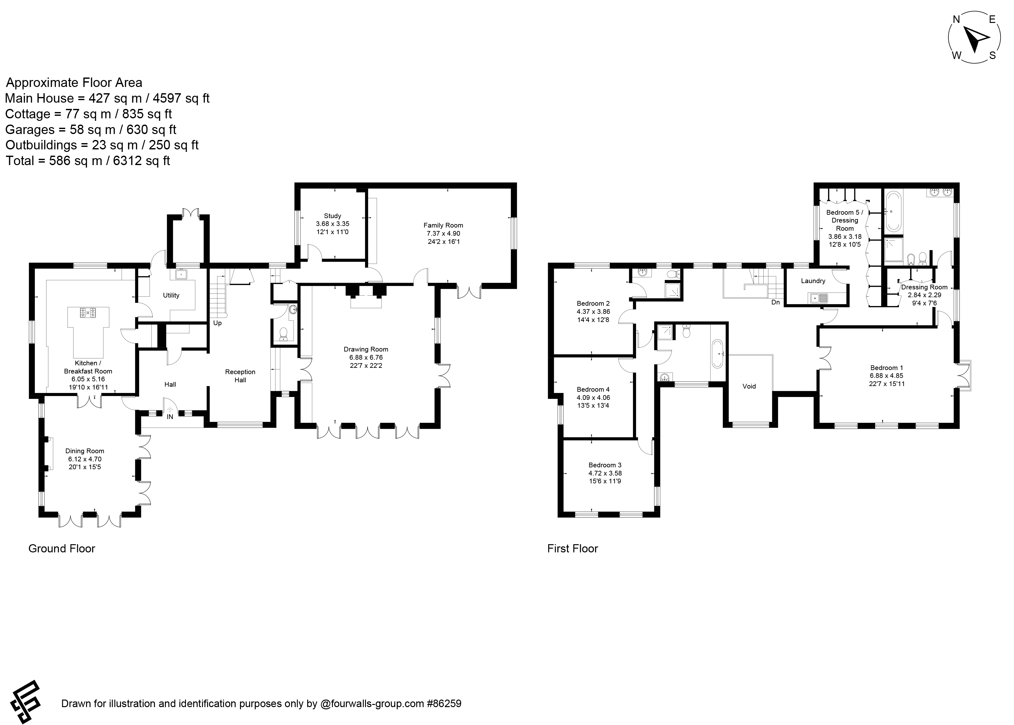
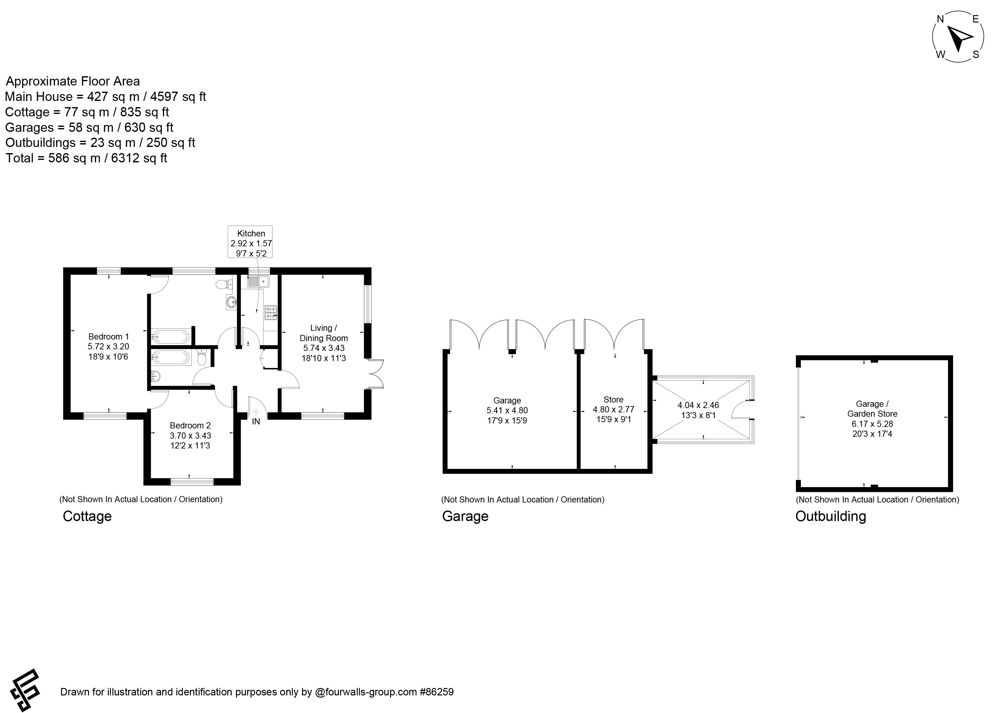
  • House 4,597 sq ft Cottage 835 sq ft garage / stores 880 sq ft
  • Well presented and appointed throughout
  • Just over 2 acres of mature landscaped gardens
  • Traversed by the Pill Hill Brook, a clear chalk stream and tributary to the River Test
  • 2.2 acre ring fenced paddock
  • Well regarded pub / restaurant, primary school and village green

A stunning and spacious individual modern house with well presented and appointed light and airy accommodation featuring generously proportioned rooms, high ceilings, deep skirting boards, detailed coving, timber frame double glazed windows, LED Lutron lighting, integrated Sonos speakers and traditionally styled radiators throughout. There is an impressive gated driveway providing comprehensive parking and generous 4/5 bay garaging. Additionally, there is a spacious detached two bed single storey annexe/cottage. The property features glorious secluded and beautifully landscaped south westerly facing riverside garden with mature trees and large lawns, gates connect through to a ring fenced 2.2 acre paddock.

.    Paved approach. Wide covered porch. Outside lights to either side of hardwood/glazed door into:

Entrance Hall    Casement windows to front aspect. Oak edged coir mat at threshold. Oak flooring. Open arch into reception hall. Double doors to kitchen breakfast room. Separate door into formal dining room. Further oak door to:

Cloaks Cupboard    Hanging rail, a range of box shelving and drawers.

Reception Hall    High double ceiling with space for chandelier. Turning staircase with light oak balustrade rising to galleried landing. Substantial double height central window providing stunning views of the brook and gardens. Oak flooring. Steps down to double doors into drawing room, with further casement window to front aspect. Door to cloakroom and arch to rear hall.

Rear Hall    Split level. Understairs store. Window to rear aspect. Electrics and data cupboard. Doors to study and family room.

Cloakroom    Granite worktops, inset basin with mixer tap, double cupboard beneath. Tile/glass surround. Bevel edged mirror with display sill and spotlights above. Towel radiator. WC.

Drawing Room    An elegant dual aspect reception room. Four sets of floor to ceiling glazed double doors onto the rear and side aspects opening onto the main terrace enjoying views over the landscaped grounds. Further high window to side aspect. Central open fireplace with granite and limestone surround, oak edged granite hearth, large bespoke built in oak dressers to either side of the double doors incorporating media area, low level cupboards and drawers and comprehensive book/display shelving. Further door into:

Family Room    Large and dual aspect. Picture window to side aspect, glazed doors to front aspect opening onto the terrace and gardens. Wide built in oak dresser; media area with surrounding display and book shelving, cupboards and drawers beneath.

Study    Large window to side aspect. Built in desk with drawers beneath, comprehensive shelving above and spotlights over. Further full height oak shelving.

Dining Room    Substantial and triple aspect featuring a central open fireplace with granite and limestone surround with oak edged granite hearth. Floor to ceiling windows incorporating four sets of double doors to front and side aspects opening onto terrace and overlooking the brook and gardens. Two windows to opposite side aspect either side of the fireplace. Open fronted oak cabinets with glass display shelving and mirror backs. Oak flooring throughout.   Double doors into:

Kitchen / Breakfast Room    Substantial split level quartz topped island comprising large raised breakfast bar with seating on three sides and pendant light point above. Lower area has an undercounter Britannia range, five zone induction hob and a range of drawers. Further long worktops with similar upstands and ceramic tiled splashbacks. A comprehensive range of white Shaker style high and low level cupboards and drawers incorporating obscured glazed cabinets and open fronted shelving. High level dresser, glazed display shelving. Neff oven with combination oven above and Neff microwave over. Integrated dishwasher and recycling area. Two deep sinks, instant boiling water tap and raised mixer tap. Oak flooring.   Windows on two aspects. Door to utility. Further door into walk-in fridge/larder, marble cold shelves, further shelving and basket drawers.

Utility    Granite work surfaces with ceramic tiled splashbacks. Long Belfast styled sink with mixer tap. Comprehensive range of high and low level cupboards and drawers. Broom Cupboard (tiled flooring, window and half glazed door to rear aspect).

First Floor

Large Central Landing / Bridge    Oak balustrades on either side overlooking reception hall and stairwell.

Principal Bedroom Suite    A substantial dual aspect double bedroom with sitting area. Three picture windows to front aspect with beautiful views over the gardens water and beyond towards the paddock. Double doors onto balcony to the side aspect with similar views.

Dressing Room    A range of built in corner cupboards and window to side aspect.

Luxury En Suite    Spacious and well appointed. Polished granite sill with twin inset basins each with mixer tap, long glass sill, mirror and shaver socket above, cupboards and drawers beneath. Double ended bath with wide, polished granite surround and central mixer tap. WC. Bidet. Folding door into walk-in shower with overhead and side massage jets. Part-tiled walls, feature window to side aspect.

Bedroom Suite 2    Double bedroom. Picture window to rear aspect with views over part of the village, the mill pond and meadows. Built in corner storage.

En Suite    Granite sill with inset basin, upstand and mixer tap. Double cupboard beneath, mirror fronted cupboard over. Folding door into shower. WC. Part-tiled walls. Towel radiator. Window.

Bedroom 3    A large dual aspect double bedroom with two windows to front and single window to side aspect overlooking the main garden.

Bedroom 4    Double bedroom. Window to rear aspect. Alcove with built in high level display shelving. A range of wardrobes and drawers to one wall.

Family Bathroom    In close proximity to and serving bedrooms 3 and 4. Large. Double ended bath with substantial granite surround, central mixer tap and retractable handheld jet. Granite topped sill with inset basin, double cupboard beneath, mixer tap and mirror fronted cupboard above. WC. Glass door into separate shower. Towel radiator. Window with brook view.

Bedroom Suite 5    (Currently this is used as an extended dressing area to principal bedroom and first floor laundry but easily reinstated/changed) Picture window to side aspect. Comprehensive range of built in wardrobes and storage. Could be a double bedroom, if preferred.

En Suite    (Currently a laundry) Long quartz worktop with inset stainless steel sink. Recess and plumbing for washing machine with space beside for dryer. Extensive slatted airing shelving, hanging rail, low level WC and obscure glazed window. Towel radiator. Could be en suite if preferred.

The Cottage

Hall    Panelled door with high level glazed panel from driveway. Loft hatch. Cloaks cupboard. Doors to:

Living / Dining Room    Dual aspect. Picture window to front and side aspect. Glazed double doors opening onto a terrace with riverside views.

Kitchen    Compact. Roll top work surface, stainless steel sink, drainer and mixer tap. Beech fronted high and low level cupboards and drawers. Under counter oven, four ring hob, integrated microwave. Space and plumbing for washing machine. Window to rear aspect.

Bedroom 1    Large dual aspect double bedroom. Windows to front and rear aspect. Door to outside. Further door into:

Bathroom 1    Spacious. Panelled bath with tiled surround, glass screen and overhead shower. Granite sill with inset basin, low level WC. Mirror fronted cabinet.   Window.

Bedroom 2    Square double bedroom. Picture window to front aspect.

Bathroom 2    Panelled bath, pedestal basin with glass sill and mirror fronted cabinet over. Low level WC.

Outside

Driveway and Buildings    Splayed entrance off lane with rendered brick walls to either side. Hardwood electric gates with remote, on stone capped brick piers leading onto a substantial stone edged composite drive providing extensive parking surrounding well stocked gardens. Pedestrian gate. Mature Beech tree. Cobbled areas with flowering Cherries. Long tile capped wall screens the private gardens and grounds. Triple Garage, barn style weatherboarded timber frame elevations beneath a slate roof. Three sets of barn style double doors, attached hardwood greenhouse opening into the garden. To the rear of the triple garage there is a further extensive drive/parking area, LPG cylinders screened by trellis. Fruit trees. A garden shed and a further detached double garage with electric up and over door.

Garden and Grounds    A stunning feature of this beautiful property. Sweeping lawns interspersed by an interesting variety of mature specimen trees, traversed by the Pill Hill Brook and stream, the lawns are linked by a number of timber footbridges. A substantial paved terrace area surrounds the house, enjoying a south westerly aspect and ideal for entertaining. Most terraces are boarding the brook and an ornate steel bridge connects the area over the mill race.   Awning. Tasteful outside lighting to patio, garden and trees.

Paddock    Amounting to 2.2 of an acre. Well enclosed, with post and rail fencing. Pedestrian gated access from the main garden. Separate vehicle access via a Right of Way off the road connecting Monxton and Grateley. From the top corner of the garden a gate gives direct access to a bridleway running south and a footpath that runs to the west between the garden and the paddock, well screened by hedging.

Services    Mains electricity and water. Private drainage. LPG central heating. BT Broadband. Note: No household services or appliances have been tested and no guarantees can be given by Evans and Partridge.

Directions    SP11 8AF

Council Tax    H

Important Information

  • This is a Freehold property.

Property Ref: STO250018

Share:

Similar Properties

Bransbury, Barton Stacey, Winchester, Hampshire SO21

6 Bedroom Cottage | Offers in region of £2,000,000

A unique country home in a private rural setting standing in just over five acres comprising a large beautifully present...

Winterslow, Salisbury, Wiltshire, SP5

5 Bedroom Detached House | £2,000,000

A beautifully modernised and light-filled family home with extensive outbuildings, high quality 8 car garaging, stables...

Wherwell, Andover, Hampshire, SP11

6 Bedroom Detached House | £1,750,000

A unique and substantial modern residence architect designed to a theme of inter-connected converted period barns with t...

Evans & Partridge (Stockbridge) (Stockbridge)

Stockbridge, Hampshire, SO20 6HF

01264 810 702

How much is your home worth?

Use our short form to request a valuation of your property.

Request a Valuation

Mortgage Calculator

Amount Borrowed: £
Total Amount Repayable: £
Total Monthly Payment: £
©2026 The Guild of Property Professionals. All rights reserved. Terms and Conditions | Privacy Policy | Cookie Policy | Complaints Policy | Members Login
The Guild of Property Professionals Trading Address: 121 Park Lane, London W1K 7AG. GPEA Limited. Registered in England & Wales.  Company No: 02819824.  Registered Office Address: 2 St. Stephen's Court, St. Stephen's Road, Bournemouth, Dorset, England, BH2 6LA.  VAT Registration No: 576 8795 61
Book a Property Valuation Update Cookies Preferences