Johnsons Drive, Hampton

Guide Price
£935,000
SSTC
This property listing is now SSTC

3 Bedroom House for sale in Hampton

2 3 2

A beautifully refurbished three bed property in a popular Hampton Village location near the River Thames, finished with a high specification interior including a superb kitchen/diner with bi-fold doors opening to an established 'walled' south facing rear garden.



The property has lovely window views front and rear. From the rear upper floors the River Thames can be seen as well as views over David Garrick's Temple to Shakespeare on the bank of the Thames.



The current owner has extensively refurbished and remodelled the property from 'top to bottom' stripping back to the brickwork. It was then replastered throughout, whilst at the same time adding 150mm cavity wall insulation, and creating a fully boarded attic space with 'pull-down' timber loft ladder. Naturally this home comes with brand new electrics, lighting and plumbing installations controlled by a Worcester Bosch pressurised system all with room thermostats— to include multi zoned wet thermal underfloor heating to each floor. There are 63 LED spot lights with dimmer controls to principal rooms.  This is, without doubt, an efficient home built to last.



Other notable design features include stylish glass balustrades, an auto mist fire suppressant system, quality Parador flooring throughout (including 'treads and risers' to staircases), new internal stained and lacquered doors with door furniture, water softener and filtered water to the kitchen. 



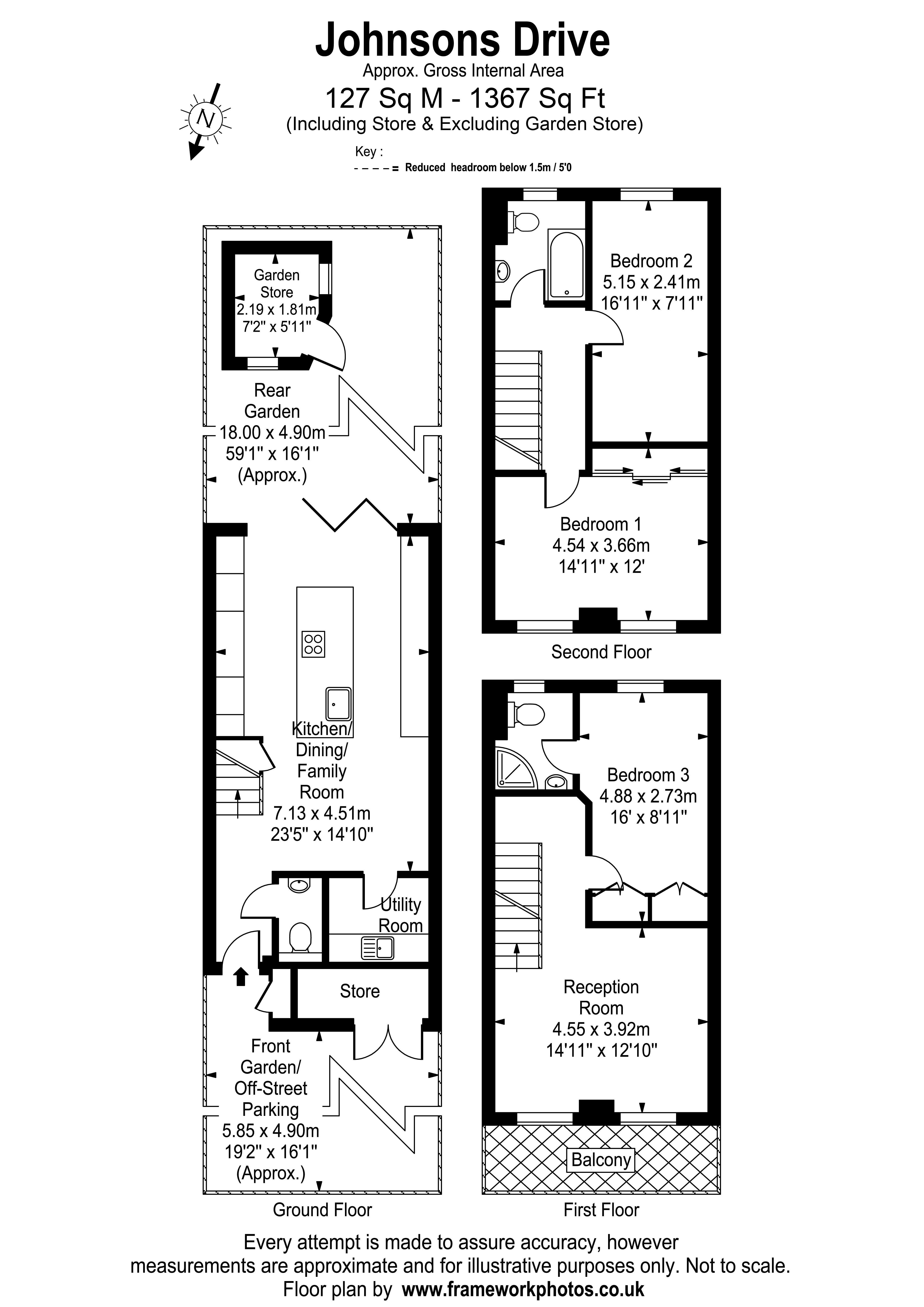
Worthy of special mention is the impressive kitchen/dining room which is a good size (23' 5" x 14' 10" or 7.15m x 4.51m) designed with breakfast island, and a large expanse of glass via bi-fold doors - incorporating electric Italian blinds - to provide same level garden access.   A fully integrated kitchen is complemented by composite stone work tops with Franke under-counter sink, top end Neff appliances including; two separate ovens with a retractable door, dishwasher, fridge freezer, wine cooler and induction hob with an externally vented extraction with multi light feature.  To complete the ground floor accommodation there is a highly useful utility room, as well as a separate cloakroom with sink unit and back lit mirror.  



The upper floors reveal a spacious sitting room, three good size bedrooms with two bathrooms (one being en-suite shower room).  Bathrooms feature quality tiling and Grohe sanitary ware with Grohe taps and smart 'push button' Grohe controls, dual heat towel rails and under floor heating.    



Externally, a new stone driveway provides off-street-parking with double doors leading to an integral bike store. A recessed storm porch has an external light, bin store, and a restored front door fitted with original ironmongery.  The landscaped rear garden is a good size, measuring approx. 60 ft in depth and is walled to two sides.  A new patio / terrace is adjacent to the house with external power points, water tap and lighting, new lawn, with stone pathway and sleeper boarder leading to a further brick patio to the rear which is well screened by established trees and plants, housing a rear brick store/ grotto with pitched tiled roof, stable door and its own power supply. EPC C.



Location: Johnsons Drive is a cul-de-sac location in the old part of Hampton Village, opposite St Mary's Church, conveniently located within short walking distance of the riverside and village with access to Hampton station.  A Waitrose food store is found at the end of Station Road.  There are excellent schools in the immediate vicinity including Twickenham Prep off the High Street, where you will also find Hampton Open Air Pool.  All year round cultural events at Hampton Court Palace approximately 1 mile downstream. Transport links to Richmond, Kingston and Heathrow are nearby, and for those who love outdoors pursuits, abundant Royal Parkland is on the doorstep.

 

 

 

 

Important Information

  • This is a Freehold property.

Property Ref: EAXML14612_11152533

Share:

Similar Properties

Nightingale Road, West Molesey

3 Bedroom House | Guide Price £925,000

A classic Victorian bay-fronted three bedroom, two bathroom, semi-detached family home with private off-street parking a...

Quinton Road, Thames Ditton

3 Bedroom House | Asking Price £925,000

Miles & Bird are delighted to announce the launch of a pair of brand new semi-detached houses in a cul-de-sac location n...

Nightingale Road, West Molesey

4 Bedroom Semi-Detached House | Guide Price £925,000

An extended and tastefully renovated four bedroom, three bathroom, family home set within a highly coveted Molesey side...

Feltham Avenue, East Molesey

4 Bedroom Ground Floor Flat | Guide Price £950,000

A rare opportunity to purchase a duplex freehold property in a prime central Hampton Court location with views over Mole...

Clinton Avenue, East Molesey

3 Bedroom House | Guide Price £975,000

A traditional bay fronted semi-detached family home situated in a quiet and peaceful cul-de-sac yet with easy access to...

Park Way, West Molesey

3 Bedroom Semi-Detached House | Guide Price £975,000

An attractive bay fronted semi-detached family home with delightful gardens front and rear, driveway parking for three /...

Miles & Bird (East Molesey)

East Molesey, Surrey, KT8 9HA

020 3875 3875

How much is your home worth?

Use our short form to request a valuation of your property.

Request a Valuation

Mortgage Calculator

Amount Borrowed: £
Total Amount Repayable: £
Total Monthly Payment: £
©2026 The Guild of Property Professionals. All rights reserved. Terms and Conditions | Privacy Policy | Cookie Policy | Complaints Policy | Members Login
The Guild of Property Professionals Trading Address: 121 Park Lane, London W1K 7AG. GPEA Limited. Registered in England & Wales.  Company No: 02819824.  Registered Office Address: 2 St. Stephen's Court, St. Stephen's Road, Bournemouth, Dorset, England, BH2 6LA.  VAT Registration No: 576 8795 61
Book a Property Valuation Update Cookies Preferences