Beckwith Barn, Harrogate

£1,700,000

5 Bedroom Barn Conversion for sale in Harrogate

5 3

A substantial barn conversion with land in a beautiful rural setting.

This stunning and substantial barn conversion offers generous and flexible accommodation, attractive gardens, and land extending to approximately 7.5 acres. The property occupies a highly desirable position on the edge of beautiful open countryside while remaining just a short distance from the excellent amenities of Harrogate town centre.

Converted in 2010, this beautifully presented home provides versatile living space ideal for families or those seeking multi-generational living. At the heart of the property is a striking open-plan living kitchen with a vaulted ceiling and glazed doors leading to the garden, alongside two further spacious reception rooms and two ground-floor bedrooms, both with en-suite facilities. There is also a utility room, mezzanine office space and downstairs cloakroom. Upstairs, three further double bedrooms and a house bathroom complete the accommodation.

A particular feature of this unique home is the generous land, including well-tended gardens and agricultural fields extending to approximately 7.5 acres. In addition, there are two agricultural outbuildings that provide useful storage and offer potential for future development, subject to the necessary permissions.

This is an excellent opportunity to purchase an individual home that enjoys a delightful countryside setting, with land and overlooking beautiful open countryside whilst still being convenient for the excellent amenities and offer nearby in Harrogate town Centre which include popular primary and secondary schools.

 

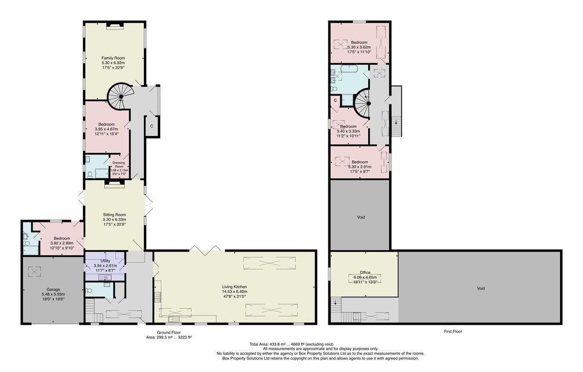
ACCOMMODATION GROUND FLOOR

ENTRANCE HALL
With vaulted ceiling and fitted cupboard.

LIVING KITCHEN
A stunning open-plan living space with vaulted ceiling and glazed doors leading to the garden.
There is ample room for both sitting and dining areas. The stylish kitchen features a range of fitted units with worktops, island and breakfast bar, double Belfast sink, electric-powered Aga and integrated dishwasher.

MEZZANINE OFFICE
Stairs lead to a large mezzanine level providing a versatile home office space.

CLOAKROOM
Fitted with WC and washbasin.

UTILITY
With fitted units and oak worktop incorporating a double Belfast sink. Space and plumbing for appliances.

SITTING ROOM
A very spacious reception room with glazed patio doors on two sides and vaulted ceiling. Wood-burning stove.

FAMILY ROOM
A further generous reception room with windows on two sides and wood-burning stove.

GROUND FLOOR BEDROOM ONE
A double bedroom with windows overlooking the garden. Dressing room and en-suite.

EN-SUITE
Fitted with WC, washbasin and shower. Tiled walls and floor.

GROUND FLOOR BEDROOM TWO / OFFICE
A versatile space that could serve as a bedroom or home office, with windows and glazed door to the garden, vaulted ceiling with skylight windows, and en-suite.

EN-SUITE
With WC, washbasin and shower.

FIRST FLOOR

LANDING
A spacious landing which could be utilised as a study area, with door leading to a balcony and external steps to the garden.

BEDROOMS
There are three good-sized double bedrooms on the first floor.

BATHROOM
A luxurious bathroom with WC, twin basins, freestanding bath and separate shower.
 

OUTSIDE The property occupies an impressive plot with attractive gardens and agricultural land, extending in total to approximately 7.5 acres.

A private driveway provides ample parking and leads to an integral double garage with electric door and mezzanine storage above.

There is a delightful walled garden with patio, lawn and planted borders accessed directly from the sitting room and kitchen via glazed doors. Further lawns extend to the front and side of the property, together with well-stocked borders and seating areas.
 

AGRICULTURAL BARNS There are two agricultural barns/stables providing excellent storage space and offering potential for conversion.
The property previously had planning permission to convert the barns into two self-contained one-bedroom dwellings, with the approval requiring completion by May 2026. Purchasers must make their own enquiries regarding any future development potential.
 

AGENTS NOTE • The property benefits from a ground source heat pump with underfloor heating throughout.
• Sewage treatment plant installed.
 

Property Ref: 100470028138

Share:

Similar Properties

Beckwith, Harrogate, HG3

5 Bedroom Barn Conversion | £1,700,000

***OPEN TO VIEW - SATURDAY 16TH MAY 10AM - 12PM*** A substantial barn conversion with land in a beautiful rural setting....

Rowden Lane, Hampsthwaite, HG3

5 Bedroom Detached House | Guide Price £1,695,000

An exceptional five-bedroom detached house set within approximately 4.6 acres of landscaped gardens, paddocks & equestri...

Rowden Lane, Hampsthwaite, Harrogate

5 Bedroom Barn Conversion | Guide Price £1,695,000

An exceptional five-bedroom detached house set within approximately 4.6 acres of landscaped gardens, paddocks & equestri...

31 Fulwith Mill Lane, Harrogate, HG2

5 Bedroom Detached House | Offers Over £1,750,000

A rare opportunity to acquire a substantial detached family home occupying an exceptional private plot in one of Harroga...

Dacre, Harrogate, HG3

5 Bedroom Detached House | Offers Over £1,850,000

Set within the heart of an Area of Outstanding Natural Beauty, Lanes Foot Farm is an exceptional five-bedroom Georgian f...

Walton Avenue, Pannal, Harrogate

5 Bedroom Detached House | Guide Price £1,895,000

A fantastic opportunity to purchase a most impressive detached home standing within attractive, good-sized gardens and s...

Verity Frearson (Harrogate)

Harrogate, North Yorkshire, HG1 1JT

01423 562 531

How much is your home worth?

Use our short form to request a valuation of your property.

Request a Valuation

Mortgage Calculator

Amount Borrowed: £
Total Amount Repayable: £
Total Monthly Payment: £
©2026 The Guild of Property Professionals. All rights reserved. Terms and Conditions | Privacy Policy | Cookie Policy | Complaints Policy | Members Login
The Guild of Property Professionals Trading Address: 121 Park Lane, London W1K 7AG. GPEA Limited. Registered in England & Wales.  Company No: 02819824.  Registered Office Address: 2 St. Stephen's Court, St. Stephen's Road, Bournemouth, Dorset, England, BH2 6LA.  VAT Registration No: 576 8795 61
Book a Property Valuation Update Cookies Preferences