Rowden Lane, Hampsthwaite, HG3

Guide Price
£1,695,000

5 Bedroom Detached House for sale in Harrogate

4 5 3

An exceptional five-bedroom detached farmhouse crafted in timeless Yorkshire stone, set within approximately 4.6 acres of landscaped gardens, paddocks and equestrian facilities. Alongside, sits 3,000 sqft of garaging, stables and workshop space, presenting exciting potential for conversion into a holiday cottage or secondary residence (subject to consent).

Combining elegant interiors versatile equestrian facilities and uninterrupted countryside views this remarkable home offers a lifestyle of space, comfort and refinement just four miles from Harrogate.

ACCOMMODATION LIVING SPACES
Extending to almost 4,000 sqft this remarkable home has been designed with both family life and entertaining in mind.

GROUND FLOOR
At its heart lies a spectacular open-plan dining kitchen with limestone flooring, handcrafted cabinetry, granite worktops and integrated appliances. The vaulted dining area is flooded with natural light and easily accommodates a family-sized table, while bi-folding doors create a seamless connection to the gardens. A practical utility room adjoins.

The principal reception rooms are equally impressive. The dual-aspect living room features vaulted ceilings, exposed beams and a mezzanine gallery above - an inspiring space for family gatherings or entertaining. A more intimate drawing room, with French doors onto the gardens, offers an additional retreat.

On the ground floor, a generous bedroom suite with dressing area and en-suite bathroom provides ideal guest accommodation, a teenager's suite or space for a dependent relative.

FIRST FLOOR
The first floor is approached via a wide, light-filled landing.
The principal bedroom is a stunning vaulted dual-aspect suite with a sleek en-suite shower room. Two further double bedrooms share a beautifully appointed travertine-tiled house bathroom, complete with freestanding roll-top bath. A fourth bedroom, comfortably sized for a double, provides additional flexibility.

Overlooking the main living room, the mezzanine lounge creates a versatile space for relaxation, a study, or a family snug.

GROUNDS Approached through stone-pillared electric gates, the property opens onto a sweeping driveway with extensive parking.

The gardens are elegantly landscaped, with wide lawns, mature planting and uninterrupted views across the surrounding countryside. Beyond lie enclosed paddocks, ideal for those with equestrian interests.

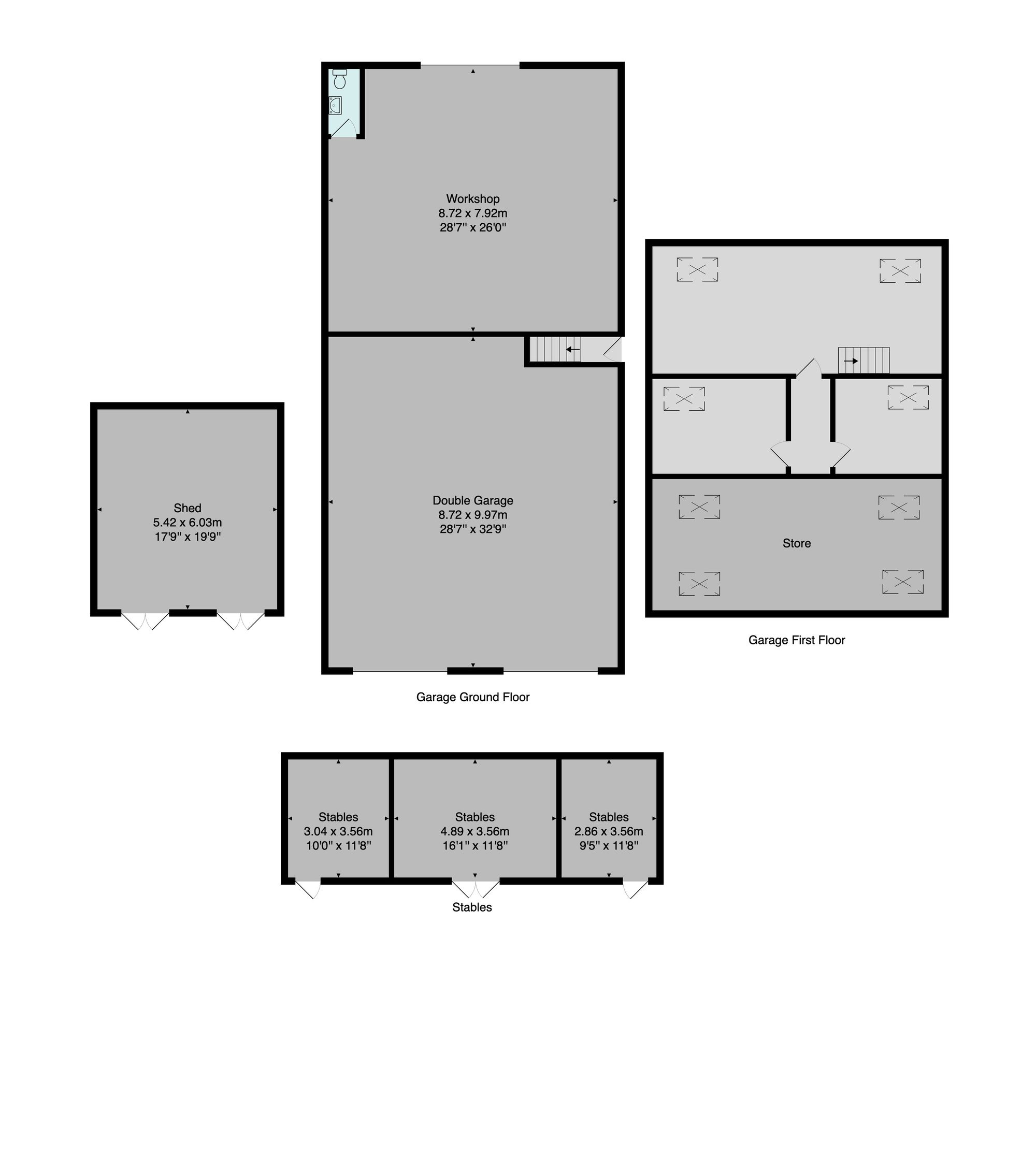
A substantial outbuilding of around 3,000 sqft offers stables, a double garage with loft storage and a workshop - a versatile complex with clear scope for leisure, lifestyle or development use.

AGENT'S NOTES At a Glance
- Five-bedroom detached farmhouse
- Almost 4,000 sq. ft. of living accommodation
- Set in approx. 4.6 acres of gardens and paddocks
- 3,000 sq. ft. of stables, garaging and workshop
- Potential for holiday cottage/second home conversion (STP)
- Sympathetically renovated with character features throughout
- Vaulted open-plan dining kitchen with garden access
- Dual-aspect living room with mezzanine gallery
- Ground-floor guest suite with en-suite and dressing area
- Stone-pillared gated entrance, sweeping drive & extensive parking
- Just four miles from Harrogate

Important Information

  • This is a Freehold property.

Property Ref: a0f1eff7-d99b-4165-be02-fd08d311bcb3

Share:

Similar Properties

Rowden Lane, Hampsthwaite, Harrogate

5 Bedroom Barn Conversion | Guide Price £1,695,000

An exceptional five-bedroom detached house set within approximately 4.6 acres of landscaped gardens, paddocks & equestri...

Ash View Farm, 5 Ash View, Harrogate, HG2 9LY

6 Bedroom Detached House | Offers Over £1,500,000

A substantial, newly built five / six-bedroom detached property occupying a generous plot with the benefit of a self-con...

Leadhall Lane, Harrogate, HG2

6 Bedroom House | £1,475,000

A stunning five-bedroom detached family home which has been extensively remodelled to now offer the perfect mix of flexi...

Beckwith Barn, Harrogate

5 Bedroom Barn Conversion | £1,700,000

A substantial barn conversion with land in a beautiful rural setting. This stunning and substantial barn conversion offe...

Beckwith, Harrogate, HG3

5 Bedroom Barn Conversion | £1,700,000

A substantial barn conversion with land in a beautiful rural setting. This stunning and substantial barn conversion offe...

31 Fulwith Mill Lane, Harrogate, HG2

5 Bedroom Detached House | Offers Over £1,750,000

A rare opportunity to acquire a substantial detached family home occupying an exceptional private plot in one of Harroga...

Verity Frearson (Harrogate)

Harrogate, North Yorkshire, HG1 1JT

01423 562 531

How much is your home worth?

Use our short form to request a valuation of your property.

Request a Valuation

Mortgage Calculator

Amount Borrowed: £
Total Amount Repayable: £
Total Monthly Payment: £
©2026 The Guild of Property Professionals. All rights reserved. Terms and Conditions | Privacy Policy | Cookie Policy | Complaints Policy | Members Login
The Guild of Property Professionals Trading Address: 121 Park Lane, London W1K 7AG. GPEA Limited. Registered in England & Wales.  Company No: 02819824.  Registered Office Address: 2 St. Stephen's Court, St. Stephen's Road, Bournemouth, Dorset, England, BH2 6LA.  VAT Registration No: 576 8795 61
Book a Property Valuation Update Cookies Preferences