St George's Road, Harrogate

Offers Over
£500,000
SSTC
This property listing is now SSTC

4 Bedroom Terraced House for sale in Harrogate

4 3

A fantastic opportunity to purchase a substantial townhouse currently arranged as two good quality self-contained apartments with parking, situated in a desirable location on the south side of Harrogate.

This impressive stone-built property offers spacious and versatile accommodation extending over four floors, ideal for investors or buyers seeking a home with income potential. The ground and lower ground floors form a generous one-bedroom duplex apartment with private garden, while the upper two floors provide a stylish two-bedroom duplex apartment. Both apartments are well presented and finished to a high standard, and the property benefits from parking for two vehicles to the rear.

Located in this sought-after south Harrogate position, the property is within easy walking distance of the town centre via the famous Harrogate Stray and is well served by the excellent amenities of Leeds Road, nearby schools and public transport links. 

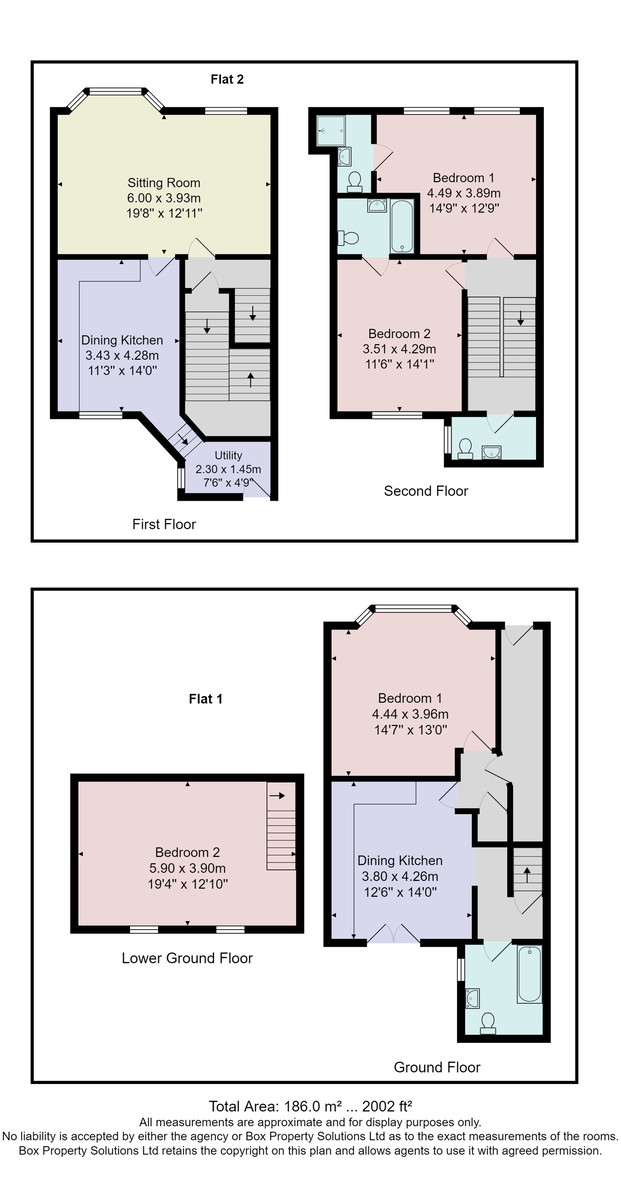
ACCOMMODATION FLAT 1

GROUND FLOOR
RECEPTION HALL
With fitted storage cupboard.

SITTING ROOM
A spacious reception room with bay window and ornamental fireplace.

DINING KITCHEN
A generous dining kitchen with space for a dining table and glazed doors leading to the private garden. The kitchen comprises a range of stylish modern fitted units with electric hob, integrated oven, dishwasher, washing machine and fridge / freezer.

BATHROOM
A modern white suite comprising WC, basin set within a vanity unit and bath with shower above. Heated towel rail. Tiled walls and floor with underfloor heating.

LOWER GROUND FLOOR
BEDROOM
A large double bedroom with window to the front.

FLAT 2

FIRST FLOOR
SITTING ROOM
A large and elegant reception room with bay window to the front.

DINING KITCHEN
A spacious dining kitchen fitted with a range of modern wall and base units with electric hob, integrated oven, dishwasher and fridge / freezer. Space for dining area.

UTILITY
With integrated washing machine and access to the rear.

SECOND FLOOR
BEDROOM 1
A large double bedroom with ensuite shower room.

EN-SUITE SHOWER ROOM
A modern white suite comprising WC, basin and shower. Tiled walls and floor with underfloor heating and heated towel rail.

BEDROOM 2
A further double bedroom with ensuite bathroom.

EN-SUITE BATHROOM
A white modern suite comprising WC, basin and bath with shower above. Tiled walls and floor, under-floor heating and heated towel rail.

SEPARATE WC
With WC, basin and heated towel rail.
 

OUTSIDE Glazed doors from Flat 1 lead to an enclosed courtyard garden providing a private outdoor sitting and entertaining space. To the rear of the building there is parking for two vehicles. 

AGENT'S NOTE • Flat 1 is currently let on an Assured Shorthold Tenancy – further details available on request.
• Flat 2 is available with vacant possession.
 

AGENTS NOTE Flat 1 is currently rented on an Assured Shorthold Tenancy agreement and is bringing in a regular income.  

Property Ref: 56568_100470027058

Share:

Similar Properties

Esplanade Court, St Mary's Walk, Harrogate

2 Bedroom Ground Floor Flat | Offers Over £500,000

A fantastic opportunity to purchase a beautifully presented two bedroom ground floor apartment with private balcony, und...

St Clement's Road South, Harrogate

3 Bedroom Semi-Detached House | Guide Price £500,000

* 360 3D Virtual Walk-Through Tour *An extended and newly refurbished three-bedroom semi-detached house with driveway an...

Copper Close, Knaresborough

4 Bedroom Detached House | Offers Over £500,000

A spacious and beautifully presented four-bedroom detached modern property with garage and attractive garden, forming pa...

Olstead Close, Killinghall

4 Bedroom Detached House | £510,000

A fantastic opportunity to purchase a beautifully presented and spacious four-bedroom property forming part of this smal...

[Off Whinney Lane ] Whitebeam Grove, Harrogate

4 Bedroom Detached House | Offers Over £525,000

* 360 3D Virtual Walk-Through Tour *A beautifully presented and spacious four bedroomed detached property, with driveway...

Grayson House, Beech Grove, Harrogate

2 Bedroom Apartment | £525,000

* 360 3D Virtual Walk-Through Tour *A spacious and well-presented two-bedroom top-floor apartment with lift access, enjo...

Verity Frearson (Harrogate)

Harrogate, North Yorkshire, HG1 1JT

01423 562 531

How much is your home worth?

Use our short form to request a valuation of your property.

Request a Valuation

Mortgage Calculator

Amount Borrowed: £
Total Amount Repayable: £
Total Monthly Payment: £
©2026 The Guild of Property Professionals. All rights reserved. Terms and Conditions | Privacy Policy | Cookie Policy | Complaints Policy | Members Login
The Guild of Property Professionals Trading Address: 121 Park Lane, London W1K 7AG. GPEA Limited. Registered in England & Wales.  Company No: 02819824.  Registered Office Address: 2 St. Stephen's Court, St. Stephen's Road, Bournemouth, Dorset, England, BH2 6LA.  VAT Registration No: 576 8795 61
Book a Property Valuation Update Cookies Preferences