Crimple Lane, Harrogate

Guide Price
£699,000

3 Bedroom Semi-Detached House for sale in Harrogate

3 2

A fantastic opportunity to purchase this individual and attractive cottage situated in a delightful and peaceful position with extensive gardens extending to approximately one acre.

This attractive cottage provides deceptively spacious accommodation now in need of some general modernisation, with three bedrooms, generous living space and integral double garage. The property is surrounded by extensive and attractive gardens which include formal lawned gardens, woodland and orchard, and borders a stream, where there is a summerhouse providing an excellent outdoor sitting area and entertaining space.

This individual property is situated in an idyllic position yet is convenient for the excellent nearby amenities within Harrogate, which include shops, bars, restaurants and popular schools. Also convenient for motorways and Leeds Bradford International Airport. 

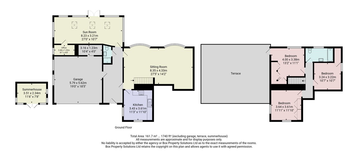
ACCOMMODATION GROUND FLOOR
RECEPTION HALL

SITTING ROOM
A large reception room with space for sitting and dining areas, with bay windows overlooking the garden. Attractive brick fireplace with open fire.

KITCHEN
A fitted kitchen with wall and base units, worktop and sink. Electric hob, integrated double oven and space for appliances.

GUEST SHOWER ROOM
With shower, washbasin and WC.

SUNROOM
A superb additional reception room with vaulted ceiling and skylight windows and double-glazed windows and doors leading to the garden. Log-effect gas stove.

OFFICE
Providing a useful workspace.

FIRST FLOOR
BEDROOMS
There are three good-sized double bedrooms on the first floor, two of which have fitted wardrobes. There is access from the main bedroom via a door leading to a large sun terrace.

BATHROOM
With WC, washbasin and bath. 

OUTSIDE The property stands within most impressive and attractive gardens and grounds extending to approximately one acre. To the side of the garage is a sloping garden planted with fruit trees. There is a log shed, coal store and garden tool shed.

To the rear of the property is an attractive lawned garden with planted borders, sitting areas and two useful stone storage sheds. Beyond the lawned back garden, steps lead to a woodland area and bog garden, from which there are steps (some uneven) leading to a further natural grassed area and the Crimple Beck. This, and a good size timber summerhouse, provide an excellent tranquil space for sitting and relaxing. 

AGENT'S NOTE The property has a recently installed modern sewage treatment plant. 

DIRECTIONS From Rudding Lane turn into Crimple Lane (Verity Frearson sign) beyond The Travellers Rest PH and beyond Crimple Cottages. Continue down Crimple Lane signed 'Private Road' for approximately 100 yards, then turn left at the Verity Frearson sign down cul-de-sac. 2 Mill Cottages is the last property. Parking on garage forecourt or at the side of the house.

 

Property Ref: 56568_100470028573

Share:

Similar Properties

Hungate, Bishop Monkton, Harrogate

4 Bedroom Detached House | Offers Over £695,000

A stunning and most individual four-bedroom detached house built to an exceptional standard. This superb home offers dec...

St Catherine's Road, Harrogate

5 Bedroom Semi-Detached House | Guide Price £695,000

A substantially extended five bedroomed semi-detached house occupying a substantial plot with good sized and attractive...

Hill Rise Avenue, Harrogate

4 Bedroom Semi-Detached House | Guide Price £695,000

A spacious four-bedroom double-fronted semi-detached family home with a large and attractive garden, situated on a quiet...

Queens Gate, Harrogate

4 Bedroom Mews House | Guide Price £700,000

* 360 3D Virtual Walk-Through Tour *An immaculately presented 3 /4 bedroom modern town house with light and airy accommo...

Aspen Close, Harrogate

6 Bedroom Detached House | Offers Over £700,000

* 360 3D Virtual Walk-Through Tour *A most impressive five / six-bedroom detached house enjoying an attractive position...

Belgrave Crescent, Harrogate

4 Bedroom Detached Bungalow | Guide Price £700,000

A very spacious four-bedroom detached bungalow with garage and attractive southwest-facing garden, situated in this desi...

Verity Frearson (Harrogate)

Harrogate, North Yorkshire, HG1 1JT

01423 562 531

How much is your home worth?

Use our short form to request a valuation of your property.

Request a Valuation

Mortgage Calculator

Amount Borrowed: £
Total Amount Repayable: £
Total Monthly Payment: £
©2025 The Guild of Property Professionals. All rights reserved. Terms and Conditions | Privacy Policy | Cookie Policy | Complaints Policy | Members Login
The Guild of Property Professionals Trading Address: 121 Park Lane, London W1K 7AG. GPEA Limited. Registered in England & Wales.  Company No: 02819824.  Registered Office Address: 2 St. Stephen's Court, St. Stephen's Road, Bournemouth, Dorset, England, BH2 6LA.  VAT Registration No: 576 8795 61
Book a Property Valuation Update Cookies Preferences