Haven Bank, Exeter

Guide Price
£325,000

2 Bedroom Flat for sale in Haven Bank

1 2 2

Directions

From Exeter city centre proceed along Western Way passing the Hotel Du Vin on your left. Continue on towards Exe Bridge, staying in the left lane and continue towards Alphington Road. At the traffic lights on the A377, take the first exit onto Haven Road and continue until you see the gated entrance to Waterside, on your left hand side.

What3Words: ///pull.juices.sculpture

Situation

Set within a highly desirable residential development near Exeter’s historic Quayside, this property enjoys an enviable location with The Quay right on your doorstep. Here, you’ll find an array of restaurants, cafés, shops, and pubs, along with a variety of water sports facilities.

The area also boasts scenic cycle paths that follow the Riverside Valley, leading towards Countess Wear, Double Locks, and beyond to The Turf, where you can catch a ferry across to the charming town of Topsham.

Description

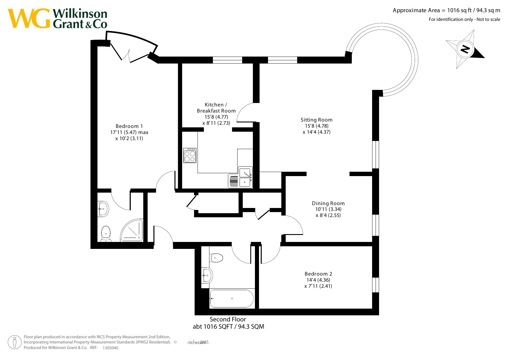
Enjoying a highly sought-after position at the heart of Exeter Quayside, this two-bedroom terraced home offers characterful accommodation extending to approximately 1,016 sq ft, ideally suited to those looking to embrace waterside living within the city.

The property makes excellent use of space, creating a home that feels both practical and inviting. Living areas are well proportioned with natural light and lend themselves to modern lifestyles, whether for relaxed day-to-day living or entertaining, while the two bedrooms provide comfortable retreats, complemented by well-planned bathroom facilities. The overall layout offers a sense of balance and versatility, appealing equally to owner-occupiers and those seeking a low-maintenance city base.

Waterside is perfectly positioned for those drawn to the unique atmosphere of the Quayside, with its independent cafés, restaurants, riverside walks and cycle routes quite literally on the doorstep. The city centre is easily accessible on foot, while Exeter St David’s station and major road links are within straightforward reach. This is an opportunity to secure a home in one of Exeter’s most distinctive and desirable locations, offering a lifestyle that blends urban convenience with the charm of waterside living.

SERVICES:    The vendors advise the following: Mains electricity (serving the central heating and hot water), mains water and drainage. Telephone landline not currently under Contract. Broadband: Estimated Standard speed 11 Mbps, Superfast speed 80 Mbps and Ultrafast speed 1800 Mbps. Mobile signal: Several networks currently showing as available at the property including 02, EE, Three and Vodafone.

AGENTS NOTE:    The property sits within the Riverside Conservation Area. The vendor has advised that the property has the benefit of a 999 year Lease from 1 December 1989. Vendor advises he has a share of the Haven Banks Management company, who is the freeholder. Ground rent: peppercorn. 2024/25 Management/service charges to include buildings insurance approx. £3,000 p.a.

AGENTS NOTE:    NOTE 1: As to the part tinted blue on the filed plan, only the second
floor flat is included in the title.

NOTE 2: As to the part tinted pink on the filed plan, only the lower
ground floor parking space is included in the title.

50.717510 -3.532102

Important Information

  • This is a Leasehold property.

Property Ref: SOU250352

Share:

Similar Properties

St Leonards, Exeter

3 Bedroom Terraced House | Guide Price £325,000

GUIDE PRICE £325,000 - £350,000A WELL-PRESENTED MODERN TOWNHOUSE enjoying a ST LEONARDS LOCATION in a beautiful ‘leafy s...

Russell Way, Exeter, Devon

3 Bedroom Detached House | Guide Price £325,000

A three bedroom DETACHED HOUSE with PRIVATE GARDEN, COMMUNAL GARDENS and OFF ROAD PARKING. CONVENIENTLY POSITIONED close...

St Leonards, Exeter

3 Bedroom Terraced House | Guide Price £325,000

Fantastic potential for this three bedroom property in the HEART OF ST LEONARDS. Within minutes of St Leonards Primary S...

Dinneford Street, Thorverton, Exeter

2 Bedroom Bungalow | Guide Price £350,000

DETACHED two double bedroom BUNGALOW offering a fantastic opportunity to create your perfect home in the desirable villa...

Heavitree, Exeter

3 Bedroom Terraced House | Guide Price £350,000

TASTEFULLY MODERNISED and VERY WELL-PRESENTED PERIOD HOME enjoying a central location close to MAGDALEN ROAD and the R,D...

St Leonards, Exeter

3 Bedroom Terraced House | Guide Price £350,000

GUIDE PRICE £350,000 - £375,000A THREE BEDROOM townhouse situated in sought after ST LEONARDS, close to the HOSPITAL, CI...

Wilkinson Grant & Co (Exeter)

1 Castle Street, Southernhay West, Exeter, Devon, EX4 3PT

01392 427500

How much is your home worth?

Use our short form to request a valuation of your property.

Request a Valuation

Mortgage Calculator

Amount Borrowed: £
Total Amount Repayable: £
Total Monthly Payment: £
©2026 The Guild of Property Professionals. All rights reserved. Terms and Conditions | Privacy Policy | Cookie Policy | Complaints Policy | Members Login
The Guild of Property Professionals Trading Address: 121 Park Lane, London W1K 7AG. GPEA Limited. Registered in England & Wales.  Company No: 02819824.  Registered Office Address: 2 St. Stephen's Court, St. Stephen's Road, Bournemouth, Dorset, England, BH2 6LA.  VAT Registration No: 576 8795 61
Book a Property Valuation Update Cookies Preferences