Havant Road, Hayling Island

Offers Over
£695,000

4 Bedroom Detached House for sale in Hayling Island

2 4 2
  • Detached Family Home
  • No Forward Chain
  • Dual Aspect Lounge/Diner
  • Rear Library overlooking Garden
  • Generous Kitchen with Island
  • Separate Utility Room
  • Four Double Bedrooms
  • Large Primary with Ensuite
  • Large Mature Rear Garden
  • Double Depth Garage

**PURCHASER INCENTIVE AVAILABLE - PLEASE CALL FOR FURTHER INFORMATION**
Available with NO FORWARD CHAIN, this four-bedroom detached family home offers an abundance of features with plenty of potential to add your own decorative style. Close to local amenities and coastal pathways, this property offers a substantial footprint, generous room sizes and a beautifully mature easterly facing garden.

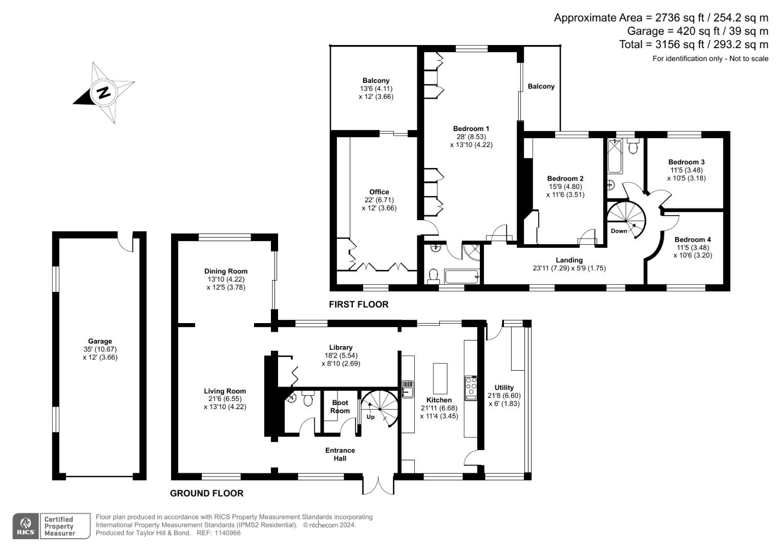
The sizeable entrance hallway offers generous spiral feature staircase providing access to first floor. A WC and boot room from the hall provide everyday practicality. The kitchen is a traditional shaker style with a central island. With the added benefit of space for breakfast/dining table, the kitchen offers a fantastic working room with spaces for freestanding appliances. Leading on from the kitchen, the utility room can be found with all relevant services in place for practical functionality. The large sliding doors offer access to rear patio and garden. A versatile library/home office is located with views across the established garden which is flooded with natural light and could work well as a playroom for growing families. The living room offers an expansive space, complete with rear dining room, dual aspect and substantial character feature fireplace.

To the first floor, an architecturally featured curved wall mirrors the spiral staircase to lead you round to the family bathroom, bedrooms three and bedroom four both of which are comfortable doubles. The bathroom is a good size, offering scope to modernise. The landing continues round across to bedroom two which benefits from built in storage & views of the garden. The primary bedroom is truly spectacular, complete with balcony, en-suite and further built in storage, this space has a real wow factor and has to be seen to be admired. Adjacent to the primary, a substantial home office provides ample versatility.

The garden is a substantial plot and laid to lawn with mature borders and established planting.

Living Room - 6.55 x 4.22 (21'5" x 13'10") -

Dining Room - 4.22 x 3.78 (13'10" x 12'4") -

Library - 5.54 x 2.69 (18'2" x 8'9") -

Kitchen - 6.68 x 3.45 (21'10" x 11'3") -

Utility Room - 6.60 x 1.83 (21'7" x 6'0") -

Bedroom One - 8.53 x 4.22 (27'11" x 13'10") -

Office/Dressing Room - 6.71 x 3.66 (22'0" x 12'0") -

Bedroom Two - 4.80 x 3.51 (15'8" x 11'6") -

Bedroom Three - 3.48 x 3.18 (11'5" x 10'5") -

Bedroom Four - 3.48 x 3.20 (11'5" x 10'5") -

Garage - 10.67 x 3.66 (35'0" x 12'0") -

Council Tax Band G -

Mortgage Service - We offer financial services here at Bernards. If you would like to review your current Agreement in Principle or are yet to source a lender then we can certainly help.

Offer Check - If you are considering making an offer for this or any other property Bernards Estate Agents are marketing, please contact your local office so we can verify your financial/Mortgage situation.

Removals - Also here at Bernards we like to offer our clients the complete service. In doing so, we have taken the time to source a reputable removal company to ensure that your belongings are moved safely. Please ask in office for further details and quotes.

Solicitors - Bernards appreciate that picking a trustworthy solicitor can be difficult, so we have teamed up with a select few local solicitors to ensure your sale is dealt with in a professional and timely manner. Please ask a member of staff for further details.

Property Ref: 327484_34075419

Share:

Similar Properties

North Close, Havant

3 Bedroom Detached House | Guide Price £625,000

Located in a highly desirable and requested position within a quaint secluded suburb central to Havant, this charming de...

Hollybank Lane, Emsworth

3 Bedroom Chalet | Guide Price £600,000

Positioned in a desirable and popular locality within Emsworth, this three-bedroom detached chalet bungalow boasts an im...

Monks Hill, Westbourne

3 Bedroom Detached Bungalow | Guide Price £550,000

Kingsbury Gardens is a unique and exclusive new development of just nine, 2 and 3 bedroom detached and link detached bun...

Manor Close, Havant

5 Bedroom Detached House | Guide Price £725,000

Located in a desirable position within central Havant, this five-bedroom detached property offers a high specification o...

Oyster Close, Hayling Island

5 Bedroom Detached House | Offers Over £744,500

Nestled in a desirable residential locality within Hayling Island, this well presented five-bedroom detached home offers...

Havant Road, Hayling Island

3 Bedroom Detached House | Guide Price £750,000

Positioned in a requested locality within Hayling Island, this charming, detached Grade II listed 16th Century cottage b...

Bernards Estate and Lettings Agents (Havant)

Havant, Hampshire, PO9 1PX

023 9200 3464

How much is your home worth?

Use our short form to request a valuation of your property.

Request a Valuation

Mortgage Calculator

Amount Borrowed: £
Total Amount Repayable: £
Total Monthly Payment: £
©2025 The Guild of Property Professionals. All rights reserved. Terms and Conditions | Privacy Policy | Cookie Policy | Complaints Policy | Members Login
The Guild of Property Professionals Trading Address: 121 Park Lane, London W1K 7AG. GPEA Limited. Registered in England & Wales.  Company No: 02819824.  Registered Office Address: 2 St. Stephen's Court, St. Stephen's Road, Bournemouth, Dorset, England, BH2 6LA.  VAT Registration No: 576 8795 61
Book a Property Valuation Update Cookies Preferences