Castlemans Lane, Hayling Island

Guide Price
£480,000

4 Bedroom Chalet for sale in Hayling Island

2 4 1
  • Semi-Detached Family Home
  • Three/Four Bedrooms
  • Versatile Living Accommodation
  • Vaulted Ceiling in Kitchen/Dining
  • Uninterrupted Views over Rear Fields
  • Local Walking Routes/Coastal Paths
  • Two Ground Floor Bedrooms
  • Beautifully Established Rear Garden
  • Private Driveway & Carport
  • Large Garage

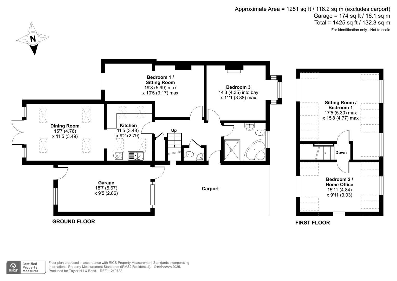
Located in a desirable position within Hayling Island, just a short distance from the coast, this charming three/four-bedroom semi-detached property boasts incredibly adaptable living accommodation designed to suit a variety of lifestyles with an expansive driveway complete with carport and garage. The beautifully established East facing rear garden is another fantastic feature overlooking the rear fields making the most of an abundance of morning sun into the evening.

The living room is currently situated upstairs, offering elevated views and a warm, inviting living environment. This naturally light room is perfect for family gatherings or quiet evenings at home. The heart of the home lies in the open-plan kitchen and dining area, where stunning architectural vaulted ceilings create a sense of grandeur and space. The kitchen is well-equipped with a great amount of functional worksurface, whilst the dining area offers the perfect setting for both casual meals and more formal dinner parties. Whether you're looking for room to grow or a retreat that blends comfort with modern living, this family home offers limitless potential. A practical downstairs WC to and good size family bathroom services the two rooms currently purposed as bedrooms.

Upstairs, bedroom two offers an amazing additional space with versatility to suit requirements. Currently used as a home office, this room is naturally light benefiting from its dual aspect orientation and would make a comfortable double bedroom. With the further two bedrooms currently on the ground floor, the primary boasts a generous dressing area as an extension of the space that accommodates plenty of storage & freestanding furniture. Bedroom three offers a feature fireplace and charming bay fronted window overlooking the private frontage.

The rear garden is fenced surround offering a paved patio area & zoned areas of lawn. Several sheds provide ample storage and seating is cleverly distributed to take advantage of the sun.

Sitting Room/Bedroom One - 5.30 x 4.77 (17'4" x 15'7") -

Kitchen - 3.48 x 2.79 (11'5" x 9'1") -

Dining Room - 4.76 x 3.49 (15'7" x 11'5") -

Bedroom Two/Three - 5.99 x 3.17 (19'7" x 10'4") -

Home Office/Bedroom Two - 4.84 x 3.03 (15'10" x 9'11") -

Bedroom Three/Four - 4.35 x 3.38 (14'3" x 11'1") -

Garage - 5.67 x 2.86 (18'7" x 9'4") -

Council Tax Band C -

Mortgage Services - We offer financial services here at Bernards. If you would like to review your current Agreement in Principle or are yet to source a lender then we can certainly help.

Offer Check - If you are considering making an offer for this or any other property Bernards Estate Agents are marketing, please contact your local office so we can verify your financial/Mortgage situation.

Removals - Also here at Bernards we like to offer our clients the complete service. In doing so, we have taken the time to source a reputable removal company to ensure that your belongings are moved safely. Please ask in office for further details and quotes.

Solicitors - Bernards appreciate that picking a trustworthy solicitor can be difficult, so we have teamed up with a select few local solicitors to ensure your sale is dealt with in a professional and timely manner. Please ask a member of staff for further details.

Property Ref: 327484_34191296

Share:

Similar Properties

Fushia Close, Denvilles

4 Bedroom Detached House | Offers Over £475,000

Positioned within the charming and popular neighbourhood of Denvilles, Fushia Close presents a great opportunity to acqu...

Astrid Close, Hayling Island

3 Bedroom Chalet | Guide Price £475,000

**PURCHASER INCENTIVE AVAILABLE - PLEASE CONTACT US FOR MORE INFORMATION **Located in a popular and quiet position withi...

Scant Road West, Hambrook, Chichester

3 Bedroom Detached Bungalow | Guide Price £475,000

Nestled in the tranquil area of Scant Road West, Hambrook, Chichester, this delightful three-bedroom detached bungalow p...

Glenleigh Park, Denvilles

4 Bedroom Chalet | Guide Price £525,000

Nestled in the sought-after area of Glenleigh Park, Denvilles, this charming four-bedroom detached chalet bungalow offer...

Cross Way, Havant

3 Bedroom Chalet | Guide Price £525,000

Situated in a popular locality within Havant, this three-bedroom detached chalet bungalow is beautifully presented throu...

Havant Road, Hayling Island

3 Bedroom Semi-Detached House | Guide Price £540,000

Conveniently positioned along Havant Road in the charming locality of Hayling Island, this beautifully extended semi-det...

Bernards Estate and Lettings Agents (Havant)

Havant, Hampshire, PO9 1PX

023 9200 3464

How much is your home worth?

Use our short form to request a valuation of your property.

Request a Valuation

Mortgage Calculator

Amount Borrowed: £
Total Amount Repayable: £
Total Monthly Payment: £
©2025 The Guild of Property Professionals. All rights reserved. Terms and Conditions | Privacy Policy | Cookie Policy | Complaints Policy | Members Login
The Guild of Property Professionals Trading Address: 121 Park Lane, London W1K 7AG. GPEA Limited. Registered in England & Wales.  Company No: 02819824.  Registered Office Address: 2 St. Stephen's Court, St. Stephen's Road, Bournemouth, Dorset, England, BH2 6LA.  VAT Registration No: 576 8795 61
Book a Property Valuation Update Cookies Preferences