Hillcrest, Helston

Guide Price
£475,000

5 Bedroom Detached House for sale in Helston

1 5 2
  • FIVE BEDROOM DETACHED HOME ARRANGED OVER THREE LEVELS
  • PRESTIGIOUS AND HIGHLY SOUGHT AFTER LOCATION
  • ENERGY EFFICIENT - WARM AND ECONOMICAL TO RUN
  • VERSATILE AND FLEXIBLE ACCOMMODATION
  • LOWER GROUND FLOOR WITH INDEPENDENT ACCESS
  • IDEAL FOR MULTI GENERATIONAL LIVING OR HOME WORKING
  • STYLISH CONTEMPORARY KITCHEN/DINING SPACE
  • GARDENS WITH ELEVATED TOWN AND RURAL VIEWS
  • COUNCIL TAX E FREEHOLD
  • EPC B82

Tucked away within one of Helston's most prestigious and sought after residential addresses, this exceptional detached home offers something genuinely different - a stylish, energy efficient and highly versatile living space that adapts beautifully to modern life.

Set just moments from the town centre and within easy reach of well regarded schooling, the property enjoys a rare balance of convenience and privacy, occupying a generous plot with a sense of seclusion and a lovely townscape and rural outlook.

Arranged over three thoughtfully designed levels, the accommodation is anything but conventional. The layout flows effortlessly, creating a home that feels both spacious and welcoming, with flexibility to suit a wide range of lifestyles.

At its heart, the contemporary kitchen/dining space is a sociable hub for everyday living and entertaining, while the separate lounge provides a cosy retreat. Carefully improved with energy efficiency in mind, the property is notably warm, comfortable and economical to run.

The bedroom accommodation is adaptable, offering options for additional reception space, home working or guest rooms. The master bedroom suite enjoys a private position on the upper floor.
A real highlight is the lower ground floor with independent access, ideal as a guest suite, workspace, studio or teenage retreat, offering separation while remaining connected to the main home.
Outside, the gardens wrap around the property and are designed for both enjoyment and ease of maintenance. Elevated seating areas take full advantage of far reaching views towards open countryside, with more private areas for relaxing or entertaining.

Driveway parking and a garage complete the practical elements.

A home that stands apart - individual, versatile and energy efficient, in one of Helston's most desirable locations.

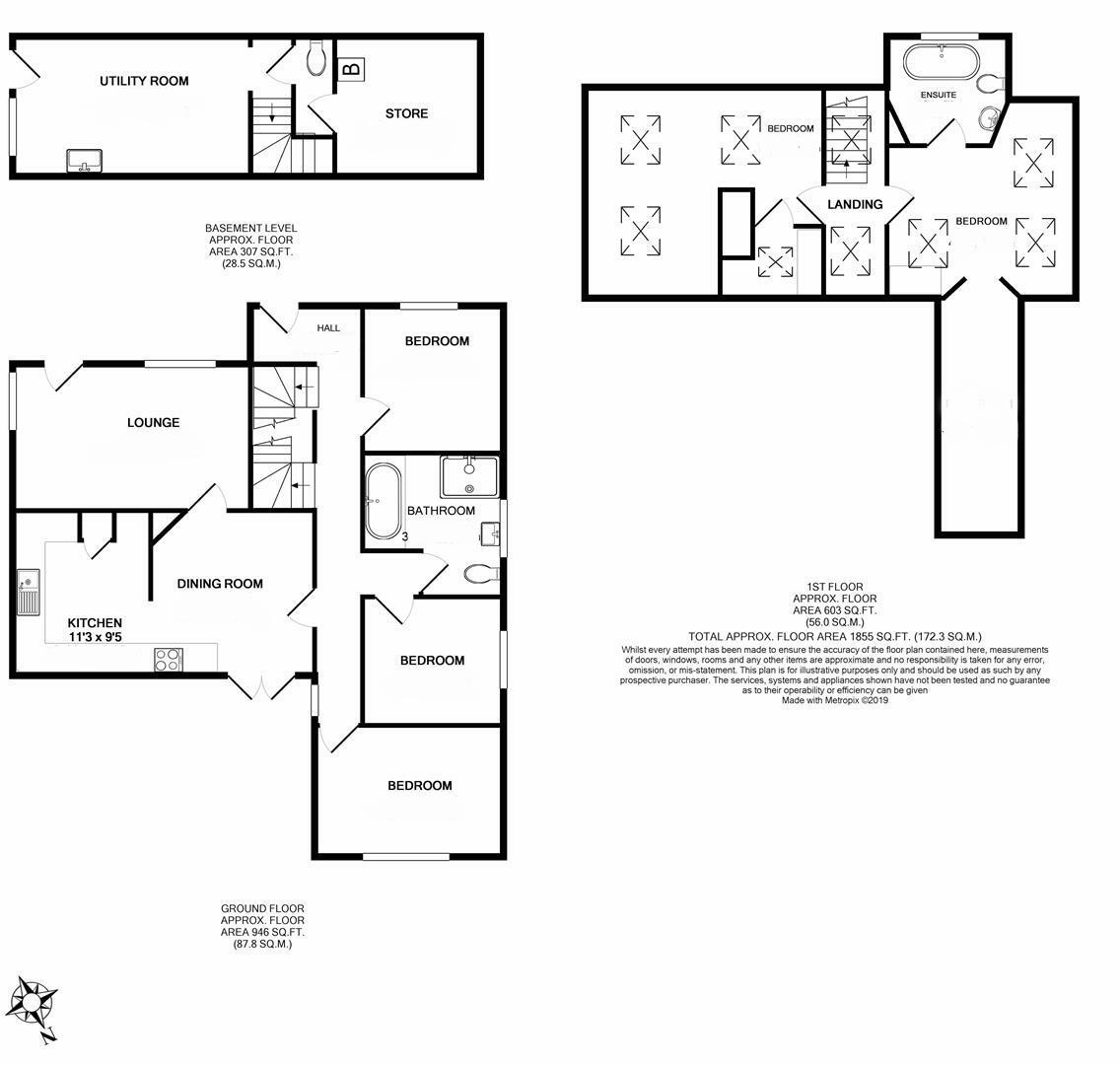
The Accommodation Comprises (Dimensions Approx) -

Steps Up And Door To -

Hall - With doors to various rooms, stairs down to the lower ground floor and stairs up to the first floor.

Kitchen/Diner - 6.17m x 3.43m (irregular shaped room) (20'3 x 11'3 - With French doors opening onto the rear garden. KITCHEN AREA comprising of working top surfaces incorporating a sink unit with drainer, mixer tap over and cupboards and drawers under. There are built-in appliances incorporating an oven with hob and hood over and a dishwasher. There is also space for a washing machine in the dining area.

Lounge - 4.95m x 3.05m (16'3 x 10') - A dual aspect room with outlook to the front and side, enjoying views over the town and open countryside in the distance.

Bathroom - A wet room style bathroom comprising of a bath with mixer tap over, pedestal wash hand basin with mixer tap over and close coupled w.c. There is a shower area with tiled floor with both flexible and rain shower heads over, tiled walls and an obscured window to the side.

Bedroom Three - 3.89m x 2.74m (12'9" x 9') - With outlook to the rear garden.

Bedroom Four - 3.05m x 2.90m (10' x 9'6") - With outlook to the front and over the town.

Bedroom Five - 2.82m x 2.67m (9'3" x 8'9") - With outlook to the side.

Stairs And Landing - Stairs extend to the first floor landing with doors to two bedrooms.

Master Bedroom - 3.81m x 4.11m (narrowing to 3.20m) (12'6 x 13'6 (n - Having skylights and having access to good size eaves storage areas. Some areas of the room have limited headroom and there is a door to

En Suite - Comprising of a free standing bath, close coupled w.c. and a pedestal a wash hand basin. There is access to eaves storage and a port hole style window with outlook over the town.

Bedroom Two - 4.88m x 4.34m (narrowing to 2.67m) (16' x 14'3" (n - Having skylights and door to a built-in cupboard which we are advised has plumbing for an ensuite if someone wishes to put that in in the future.

Lower Ground Floor -

Lower Hall - With door to the W.C. and door to

Utility Room - 4.88m x 2.90m (16' x 9'6") - This room is currently utilised as an occasional bedroom and has its own independent access to the outside. Viewers should be advised that the ceiling height in this room is 5'9".

W.C. - Comprising of a close couple W.C., wall mounted wash basin with mixer tap over and access to a large storage room.

Outside - The property is cradled by its gardens with large lawned areas and well established plants and shrubs. There is driveway parking and the driveway leads to a garage. To the rear of the property is a pleasant decked area which would seem ideal for alfresco dining and entertaining.

Directions - What three words - palaces.grasp. wheels.

Services - Mains water, electricity and drainage.

Agents Note - There is extant planning permission for a single storey extension to the rear of the property. Details of this can be viewing on the online planning register under reference number PA17/01546.

Mobile And Broadband - To check the broadband coverage for this property please visit -
https://www.openreach.com/fibre-broadband
To check the mobile phone coverage please visit -
https://checker.ofcom.org.uk/

Council Tax - Council Tax Band E.

Anti-Money Laundering - We are required by law to ask all purchasers for verified ID prior to instructing a sale

Proof Of Finance - Purchasers - Prior to agreeing a sale, we will require proof of financial ability to purchase which will include an agreement in principle for a mortgage and/or proof of cash funds.

Viewing - To view this property, or any other property we are offering for sale, please call the number on the reverse of these details.

Date Details Prepared. - 21st October 2025.

Property Ref: 34626619

Share:

Similar Properties

Shrubberies Hill, Porthleven

4 Bedroom Detached Bungalow | Guide Price £475,000

Situated in the well regarded residential area of Shrubberies Hill is this four bedroom, detached bungalow. The property...

Commercial Road, St. Keverne

4 Bedroom Detached House | Guide Price £475,000

An elegant, detached period residence with four bedrooms and off road parking conveniently situated moments from the hea...

Mounts Road, Porthleven

2 Bedroom Cottage | Guide Price £475,000

Beautifully presented throughout, this stunning coastal home boasts a fabulous open-plan living space featuring a stylis...

Trevingey Crescent, Redruth

3 Bedroom Detached Bungalow | Guide Price £485,000

An exceptional, deceptively spacious, open plan three bedroom detached bungalow, situated at the head of a residential c...

Hellis Wartha, Helston

4 Bedroom Detached House | Guide Price £485,000

Impressive home, exceptional gardenThis stylish 4-bedroom detached property boasts a stunning refitted kitchen/diner wit...

Porthallow

1 Bedroom Cottage | Guide Price £490,000

BEACHFRONT BEAUTY IN PICTURESQUE PORTHALLOW.Perfectly positioned right on the beach in this sought-after Cornish fishing...

Christophers Estate Agents Porthleven (Porthleven)

Fore St, Porthleven, Cornwall, TR13 9HJ

01326 573737

How much is your home worth?

Use our short form to request a valuation of your property.

Request a Valuation

Mortgage Calculator

Amount Borrowed: £
Total Amount Repayable: £
Total Monthly Payment: £
©2026 The Guild of Property Professionals. All rights reserved. Terms and Conditions | Privacy Policy | Cookie Policy | Complaints Policy | Members Login
The Guild of Property Professionals Trading Address: 121 Park Lane, London W1K 7AG. GPEA Limited. Registered in England & Wales.  Company No: 02819824.  Registered Office Address: 2 St. Stephen's Court, St. Stephen's Road, Bournemouth, Dorset, England, BH2 6LA.  VAT Registration No: 576 8795 61
Book a Property Valuation Update Cookies Preferences