Hellis Wartha, Helston

Guide Price
£450,000

4 Bedroom Detached House for sale in Helston

1 4 2
  • SUPERBLY SPACIOUS FOUR BEDROOM FAMILY HOME
  • DUAL ASPECT LOUNGE WITH LOG BURNER
  • LARGE KITCHEN DINING ROOM WITH DIRECT ACCESS TO THE GARDEN
  • INTEGRAL GARAGE
  • ENCLOSED LEVEL LAWNED GARDEN
  • CONVENIENT AND POPULAR LOCATION
  • WELL MAINTAINED WITH SCOPE TO PUT YOUR OWN STAMP AND CREATE YOUR OWN FOREVER HOME
  • EPC C79
  • COUNCIL TAX D
  • FREEHOLD

This detached four bedroom house offers exceptional space and versatility, the kind of layout that simply works for family life. From the moment you step inside, the generous and welcoming hallway sets the tone, with an immediate sense of light and flow.

Glazed oak effect double doors open into a superb dual aspect lounge, a room that feels both spacious and inviting. The bay window to the front draws in natural light, while the contemporary log burner creates a stylish focal point and the perfect setting for cosy winter evenings and relaxed family time. A further set of glazed oak effect doors leads through to the dining area, seamlessly connecting the reception space with the heart of the home.

The kitchen dining room is impressive in both size and design. Fitted with a contemporary range of units and integrated appliances, it features a central island that provides additional seating and storage, ideal for busy mornings or sociable gatherings. Overlooking the rear garden, this room enjoys direct access outside and also links conveniently to the integral garage.

Upstairs, the feeling of space continues with four well proportioned bedrooms. The master bedroom is particularly generous, benefiting from extensive built in storage and a generous en suite shower room. The remaining bedrooms are all of good size, served by a family bathroom.

Outside, to the front, a low maintenance area provides for additional parking, alongside a driveway leading to the garage, which benefits from an electric remote door and incorporates a practical utility area. The rear garden is level, lawned and fully enclosed, planted with mature trees and shrubs along with a variety of young fruit trees, creating a secure and family friendly environment.

Spacious, well maintained and full of potential, this is a wonderful modern family home that offers the opportunity to settle in and, over time, shape it into a forever home tailored exactly to your own style and needs.

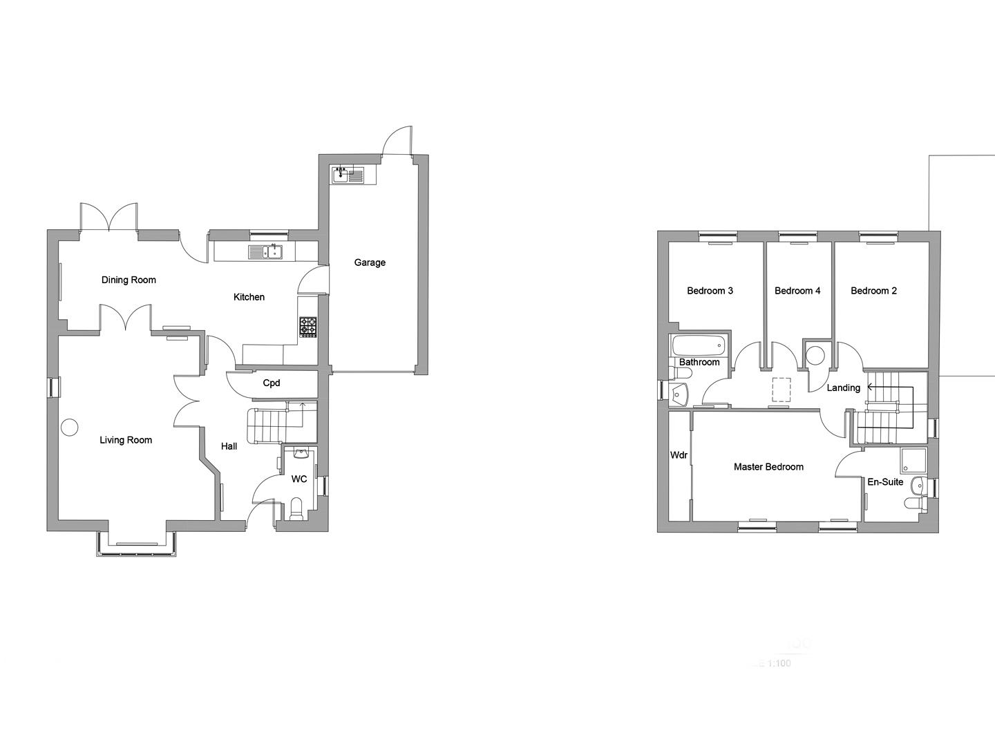
The Accommodation Comprises (Dimensions Approx) -

Door To -

Enrance Hallway - A lovely spacious and welcoming hallway with useful storage cupboard with light, turning staircase rising to the first floor and doors to various rooms.

Cloakroom - 2.18m x 0.97m (7'2" x 3'2") - With low level W.C., wall mounted wash hand basin, radiator, obscured window to the side.

Lounge - 6.55m (max in bay window) x 4.14m (21'6" (max in b - A lovely spacious room accessed via glazed oak effect double doors from the hallway and connecting to the dining area by another pair of glazed oak doors. Being dual aspect with a bay window to front and window to side, stylish log burner set on slate hearth providing a lovely focal point and warmth in the winter months, two radiators, ceiling light and two wall lights.

Kitchen/Dining Room - 8.08m x 3.73m (maximum reducing to 2.62m minimum) - A wonderful spacious room perfect for busy family life or those that love to entertain.

Kitchen Area - fitted with a comprehensive range of contemporary base and wall units including deep pan drawers with roll top work surfaces over with one and a half bowl stainless steel sink and drainer with mixer tap, integrated appliances to include eye level Bosch oven and grill, microwave, gas hob with stainless steel splashbacks, filter and light above, integrated fridge/freezer. Free standing island unit providing for additional storage and work surface space as well as a seating area, door to garage, window to rear overlooking the garden and a open plan to

Dining Area - with two radiators, exterior door and patio doors accessing the rear garden offering plenty of space to dine. Oak glazed double doors connecting to the lounge.

First Floor -

Landing - With radiator, loft access, airing cupboard and doors to various rooms.

Master Bedroom - 4.98m x 3.23m (16'4" x 10'7" ) - A wonderfully spacious master bedroom providing for a relaxing retreat at the end of a busy day with two windows to the front, two radiators, generous built-in storage and door to

En Suite Shower Room - 2.21m x 1.85m (7'3" x 6'1") - A spacious en suite with a tiled cubicle housing the chrome effect domestic hot water shower, pedestal wash hand basin, low level W.C., ladder style radiator, obscure window to side and extractor.

Bedroom Two - 3.71m x 2.77m (12'2" x 9'1") - With window to rear offering a lovely open outlook with rural views across surrounding property. Radiator.

Bedroom Three - 2.79m x 2.57m (minimum measurement) (9'2" x 8'5" ( - With radiator and window to rear again offering an attractive outlook.

Bedroom Four - 2.84m x 1.91m (9'4" x 6'3") - With radiator and window to rear again offering an attractive rural outlook across surrounding property.

Family Bathroom - 2.18m x 1.70m (7'2" x 5'7") - Suite comprising of a bath with tiled surround and feature wall mounted mirror with lights above, low level W.C., pedestal wash hand basin, obscured window to side and radiator.

Outside - To the front of the property is a low maintenance paved area providing for additional parking. To the side of the property is a driveway leading to

Garage - 5.89m x 2.62m (19'4" x 8'7") - With remote electric roller door, pedestrian access door to rear accessing the garden, a utility area with base unit with work surfaces over, stainless steel sink drainer, space and plumbing for washing machine, space and point for condenser tumble dryer and wall mounted Glowworm boiler, pedestrian door to the kitchen, power and light.

Gardens - The gardens lie mainly to rear of the property they are predominantly laid to lawn and level with a patio accessed from the dining area, they are planted with mature shrubs and trees and a variety of young fruit trees. The garden is fully enclosed by walling and fencing providing a good degree of privacy and a safe environment for children and pets. There is a gated pedestrian access path to the side of the property leading to the front. There are useful external power points and an outside tap.

Services - Mains water, electricity, drainage and gas central heating.

What3words - homelands.officers.closer

Anti-Money Laundering - We are required by law to ask all purchasers for verified ID prior to instructing a sale

Council Tax - Council Tax Band D.

Date Details Prepared. - 4th March 2026.

Mobile And Broadband - To check the broadband coverage for this property please visit -
https://www.openreach.com/fibre-broadband
To check the mobile phone coverage please visit -
https://checker.ofcom.org.uk/

Proof Of Finance - Purchasers - Prior to agreeing a sale, we will require proof of financial ability to purchase which will include an agreement in principle for a mortgage and/or proof of cash funds.

Property Ref: 34512065

Share:

Similar Properties

Loe Bar Road, Porthleven

4 Bedroom Detached House | Guide Price £450,000

Located within one of Porthleven's most sought after areas of Loe Bar Road these two, two bedroom apartments, enjoy sea...

Penwerris Rise, Praa Sands

4 Bedroom Detached Bungalow | Guide Price £450,000

Tucked away in a peaceful and secluded spot within this highly sought-after coastal village, this detached four bedroom...

Methleigh Parc, Porthleven

3 Bedroom Detached Bungalow | Guide Price £450,000

Situated in the highly regarded residential cul-de-sac of Methleigh Parc in the sought after Cornish fishing village of...

Parc Eglos, Helston

4 Bedroom Detached Bungalow | Guide Price £460,000

An opportunity to acquire this beautifully presented 4 bedroom detached bungalow, perfectly positioned for Helston's exc...

Gwealhellis Warren, Helston

4 Bedroom Detached House | Guide Price £465,000

This fabulous property has so much to offer prospective buyers with flexible accommodation with the potential to accommo...

Shrubberies Hill, Porthleven

4 Bedroom Detached Bungalow | Guide Price £475,000

Situated in the well regarded residential area of Shrubberies Hill is this four bedroom, detached bungalow. The property...

Christophers Estate Agents Porthleven (Porthleven)

Fore St, Porthleven, Cornwall, TR13 9HJ

01326 573737

How much is your home worth?

Use our short form to request a valuation of your property.

Request a Valuation

Mortgage Calculator

Amount Borrowed: £
Total Amount Repayable: £
Total Monthly Payment: £
©2026 The Guild of Property Professionals. All rights reserved. Terms and Conditions | Privacy Policy | Cookie Policy | Complaints Policy | Members Login
The Guild of Property Professionals Trading Address: 121 Park Lane, London W1K 7AG. GPEA Limited. Registered in England & Wales.  Company No: 02819824.  Registered Office Address: 2 St. Stephen's Court, St. Stephen's Road, Bournemouth, Dorset, England, BH2 6LA.  VAT Registration No: 576 8795 61
Book a Property Valuation Update Cookies Preferences