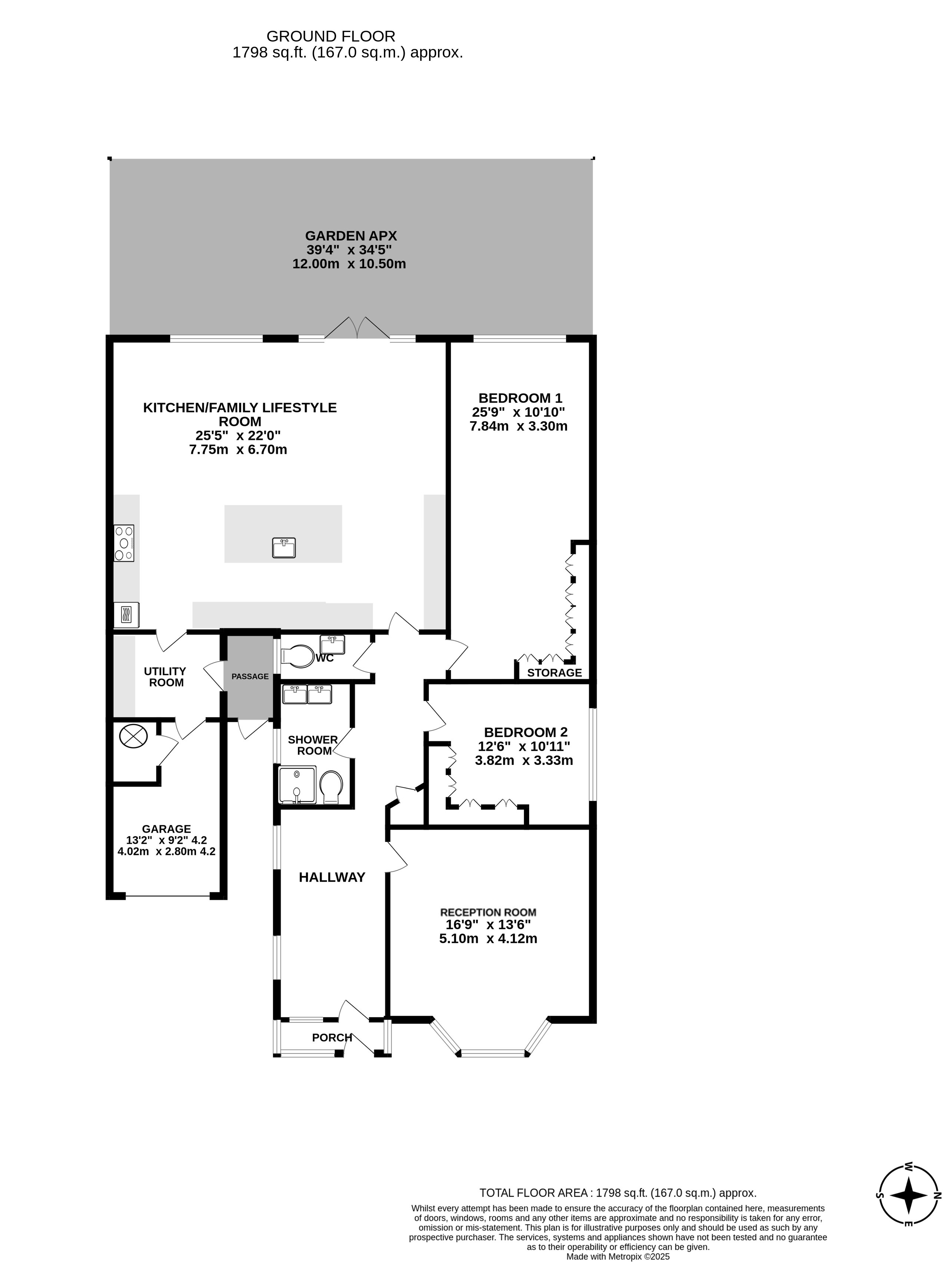
This beautifully presented bungalow on Links Drive, Radlett, offers spacious and versatile accommodation extending to approximately 1,798 sq.ft. (167 sq.m.) and is in excellent condition throughout. Designed with modern living in mind, the property features a generous open-plan kitchen/family lifestyle room measuring over 25 ft in length, complete with stylish fittings and direct access to the garden, creating a wonderful hub for both everyday living and entertaining.
There is also a further reception which is bay fronted, ideal for a TV room.The home provides two well-proportioned bedrooms, including a principal bedroom of impressive size with ample natural light. Bedroom two is ideally positioned with fitted storage. A well-appointed shower room and additional WC complement the layout, ensuring convenience for family and guests alike.The property also benefits from a utility room, integral garage and further storage options, maximising practicality. To the rear, the delightful garden extends to approximately 39 ft by 34 ft and provides a private outdoor retreat.Positioned in one of Radletts sought-after residential roads, Links Drive, the bungalow is within easy reach of local amenities, excellent schools and Radletts mainline station with direct links to central London. This is a rare opportunity to acquire a home offering both generous space and modern comforts in a prime Radlett location.
Important Information
Property Ref: 603603_LUM210193
Cowley Hill, Borehamwood, Hertfordshire, WD6
4 Bedroom Semi-Detached House | £1,195,000
Located on the sought-after Cowley Hill, this beautifully presented and substantially extended three-bedroom semi-detach...
5 Bedroom Semi-Detached House | Offers Over £1,150,000
Situated on the sought-after Page Street in Mill Hill, this recently modernised five-bedroom semi-detached home offers a...
Bucknalls Lane, Watford, Hertfordshire, WD25
3 Bedroom Detached House | Offers Over £1,150,000
Situated on a generous 0.26-acre plot in the heart of Garston, this three-bedroom detached residence offers a unique ble...
5 Bedroom Detached House | £1,250,000
Set in the sought-after location of Mill Hill, this impressive five-bedroom detached family home, built circa 10 years a...
Middle Down, Aldenham, Watford, Hertfordshire, WD25
4 Bedroom House | £1,275,000
This magnificent four double bedroom family home forms part of the award winning Wall Hall development, located in the r...
The Close, Radlett, Hertfordshire, WD7
3 Bedroom Detached House | Guide Price £1,300,000
Tucked away in the peaceful cul-de-sac of The Close in the sought-after village of Radlett, this impressive and spacious...
 
                            Lumley Estates (Radlett)
72 Watling Street, Radlett, Hertfordshire, WD7 7NP
Use our short form to request a valuation of your property.
Request a Valuation