Gills Hill Lane, Radlett, Hertfordshire, WD7

Guide Price
£760,000

3 Bedroom Semi-Detached House for sale in Hertfordshire

2 3 2

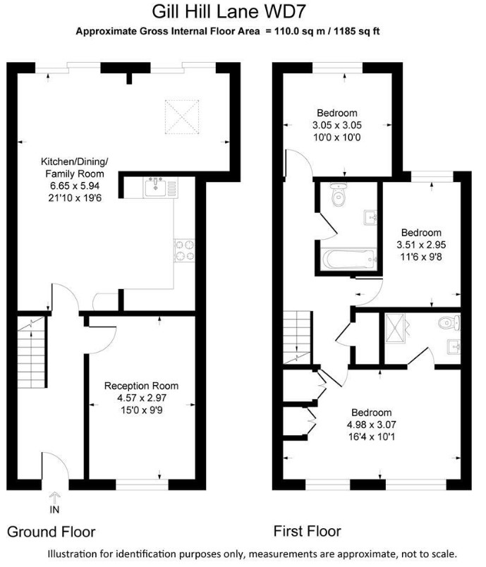
This centrally located three bedroom semi detached property has been thoughtfully designed to provide spacious living accommodation

The accommodation comprises; welcoming entrance hall, large front facing living room, modern fully fitted kitchen / dining room / family room with 2 sets of sliding doors leading to the rear garden.

Upstairs benefits from a large principle bedroom with en-suite shower room, two further bedrooms & a family bathroom.

Externally the property has off-street parking along with a sunny rear garden with large patio area ideal for summer entertainment.

The property is located just a short walk from Radlett Village Centre and the Mainline Station with direct trains into the city. There is also an excellent selection of both state & private schools within easy reach.

Important Information

  • This is a Freehold property.

Property Ref: 603603_LUM230085

Share:

Similar Properties

Heyford Road, Radlett, Hertfordshire, WD7

3 Bedroom Semi-Detached House | £760,000

Located on the sought-after Heyford Road in Radlett, this delightful semi-detached home offers a harmonious mix of comfo...

Shakespeare Drive, Borehamwood, Hertfordshire, WD6

4 Bedroom Detached House | Offers Over £750,000

**CLOSE TO TRAIN STATION AND SCHOOLS** Lumley Estates are proud to present this stunning four bedroom DETACHED home in t...

Glendevon Close, Edgware, HA8

4 Bedroom Detached House | £750,000

Lumley Estates are proud to present this stunning four-bedroom detached home in the ever desirable location of Edgware.

Aldenham Road, Radlett, Hertfordshire, WD7

3 Bedroom Semi-Detached House | £800,000

Situated in the heart of Radlett, this stunning and recently renovated three-bedroom family home combines elegant modern...

Watling Street, Radlett, Hertfordshire, WD7

4 Bedroom End of Terrace House | Guide Price £800,000

This lovely 4 bedroom character property is situated in a fantastic location, at the end of Radlett's bustling high stre...

Common Lane, Radlett, Hertfordshire, WD7

2 Bedroom Terraced House | Offers in excess of £800,000

A beautifully presented two-bedroom home, situated in the highly sought-after Manor Court development in Radlett, offeri...

Lumley Estates (Radlett)

72 Watling Street, Radlett, Hertfordshire, WD7 7NP

01923 853366

How much is your home worth?

Use our short form to request a valuation of your property.

Request a Valuation

Mortgage Calculator

Amount Borrowed: £
Total Amount Repayable: £
Total Monthly Payment: £
©2025 The Guild of Property Professionals. All rights reserved. Terms and Conditions | Privacy Policy | Cookie Policy | Complaints Policy | Members Login
The Guild of Property Professionals Trading Address: 121 Park Lane, London W1K 7AG. GPEA Limited. Registered in England & Wales.  Company No: 02819824.  Registered Office Address: 2 St. Stephen's Court, St. Stephen's Road, Bournemouth, Dorset, England, BH2 6LA.  VAT Registration No: 576 8795 61
Book a Property Valuation Update Cookies Preferences