Common Lane, Radlett, Hertfordshire, WD7

Guide Price
£4,250,000
SSTC
This property listing is now SSTC

5 Bedroom Detached House for sale in Hertfordshire

6 5 5

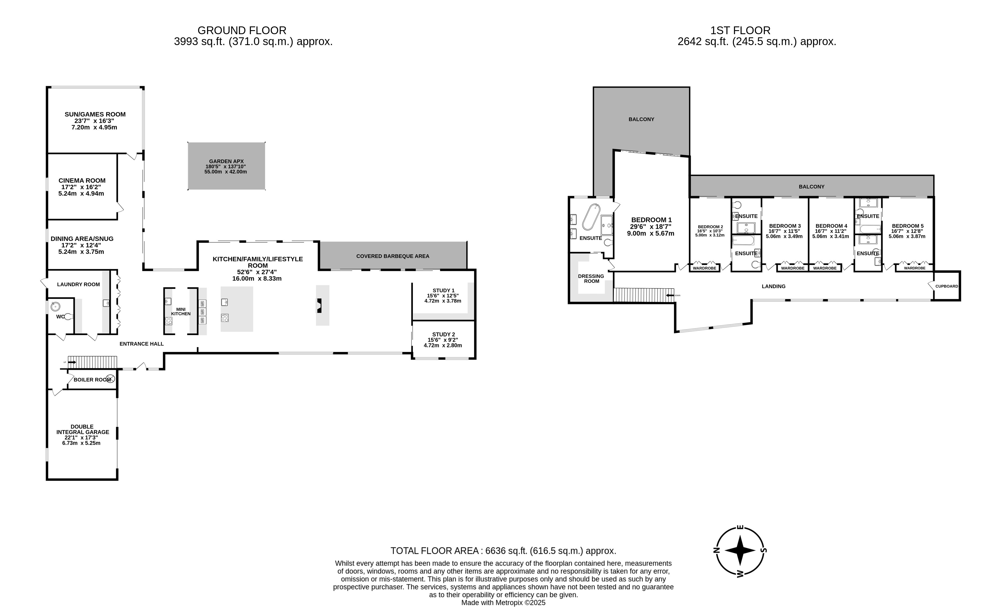
Highview is an exceptional and expansive residence situated on Common Lane in the highly sought-after Radlett. This stunning home boasts an impressive total floor area of approximately 6,636 sq. ft. offering a wealth of luxurious living space that seamlessly combines modern comfort with elegant architectural design.

Upon entering the property, you are greeted by a spacious entrance hall that provides access to the heart of the home. The open-plan kitchen, family and lifestyle room is a breathtaking space, measuring an incredible 52’6” by 27’4”. This beautifully designed area is perfect for entertaining and everyday family life, featuring a high-end kitchen with state-of-the-art appliances, a generous island and sleek contemporary finishes all flooded with natural light from the large floor to ceiling windows and sliding doors. Adjacent to this space, a covered barbecue area allows for seamless indoor-outdoor living, ideal for hosting guests or enjoying tranquil evenings.

For those who work from home or require additional quiet spaces, the property offers two dedicated studies, providing a private and comfortable setting for productivity. The ground floor also features a cinema room, creating the ultimate home entertainment experience and a sun/games room that extends the home’s leisure offerings. A dining/snug area provides an additional intimate space for family gatherings, while a well-equipped laundry room and guest WC ensure practical functionality. The ground floor is completed by a double integral garage, providing ample secure parking and storage space.

The first floor of High View is just as impressive, with five generously sized bedrooms, each boasting its own ensuite bathroom for ultimate privacy and convenience. The primary suite is a magnificent retreat, spanning 29’6” by 18’7” and featuring a luxurious en-suite, a dedicated dressing room and access to a private balcony, perfect for enjoying serene views. Bedrooms two through to five all offer spacious layouts with built-in wardrobes and elegant ensuites, ensuring comfort and style for all residents.

One of the key highlights of the upper floor is the extensive balcony, which extends across multiple bedrooms, providing a beautiful outdoor space to enjoy morning coffee or evening relaxation. A well-appointed landing and additional storage cupboards add to the home’s practicality.

Highview is located in Radlett, one of Hertfordshire’s most prestigious and affluent locations. This highly desirable village offers an idyllic blend of countryside charm and urban convenience, making it a prime destination for families and professionals alike. Radlett boasts an array of boutique shops, fine dining restaurants, and excellent transport links, including Radlett Station, which provides direct train services to London St Pancras in under 30 minutes. The area is also home to outstanding schooling options, both state and private, making it an attractive choice for families seeking top-tier education for their children.

Surrounded by stunning Hertfordshire countryside, Highview offers an exceptional opportunity to enjoy a luxurious lifestyle in a prime location. With its vast living spaces, high-end features, and unbeatable setting, this extraordinary home presents a rare chance to acquire one of Radlett’s finest residences.

Important Information

  • This is a Freehold property.

Property Ref: LUM250034

Share:

Similar Properties

Newlands Avenue, Radlett, Hertfordshire, WD7

6 Bedroom Detached House | £4,000,000

Situated on the highly desirable Newlands Avenue in Radlett, this impressive detached family home offers substantial acc...

Loom Lane, Radlett, Hertfordshire, WD7

5 Bedroom Detached House | £3,795,000

Occupying an exceptional plot on the highly regarded Loom Lane in Radlett, this detached residence presents an ideal opp...

The Green, Letchmore Heath, Watford, Hertfordshire, WD25

7 Bedroom Detached House | £3,750,000

*** Chain Free***A charming farmhouse with a completely separate 2-bedroom barn & outbuildings, located in the highly so...

The Leys, Loom Lane, Radlett, Hertfordshire, WD7

7 Bedroom Detached House | £5,500,000

This impressive detached family home is situated on a spacious plot of nearly 1 acre. It offers ancillary accommodation...

Newlands Avenue, Radlett, Hertfordshire, WD7

7 Bedroom Detached House | Guide Price £7,000,000

Situated behind private gates on one of Radlett's most coveted roads, this remarkable family home is a true masterpiece...

Theobald Street, Radlett, Hertfordshire, WD7

6 Bedroom Detached House | Guide Price £9,950,000

***Chain Free***   Nestled in the desirable village of Radlett, this exceptional home spans just under 8,000 sq. ft. and...

Lumley Estates (Radlett)

72 Watling Street, Radlett, Hertfordshire, WD7 7NP

01923 853366

How much is your home worth?

Use our short form to request a valuation of your property.

Request a Valuation

Mortgage Calculator

Amount Borrowed: £
Total Amount Repayable: £
Total Monthly Payment: £
©2026 The Guild of Property Professionals. All rights reserved. Terms and Conditions | Privacy Policy | Cookie Policy | Complaints Policy | Members Login
The Guild of Property Professionals Trading Address: 121 Park Lane, London W1K 7AG. GPEA Limited. Registered in England & Wales.  Company No: 02819824.  Registered Office Address: 2 St. Stephen's Court, St. Stephen's Road, Bournemouth, Dorset, England, BH2 6LA.  VAT Registration No: 576 8795 61
Book a Property Valuation Update Cookies Preferences