West Wycombe Road, Imperial Court, HP12

£185,000
SSTC
This property listing is now SSTC

1 Bedroom Flat for sale in High Wycombe

1 1 1
  • Located West of High Wycombe Centre
  • Master Bedroom Stunning White Bathroom
  • Spacious Living Room Open to Modern Kitchen
  • Top Floor Apartment with Balcony
  • Gas Central Heating Double Glazing Parking

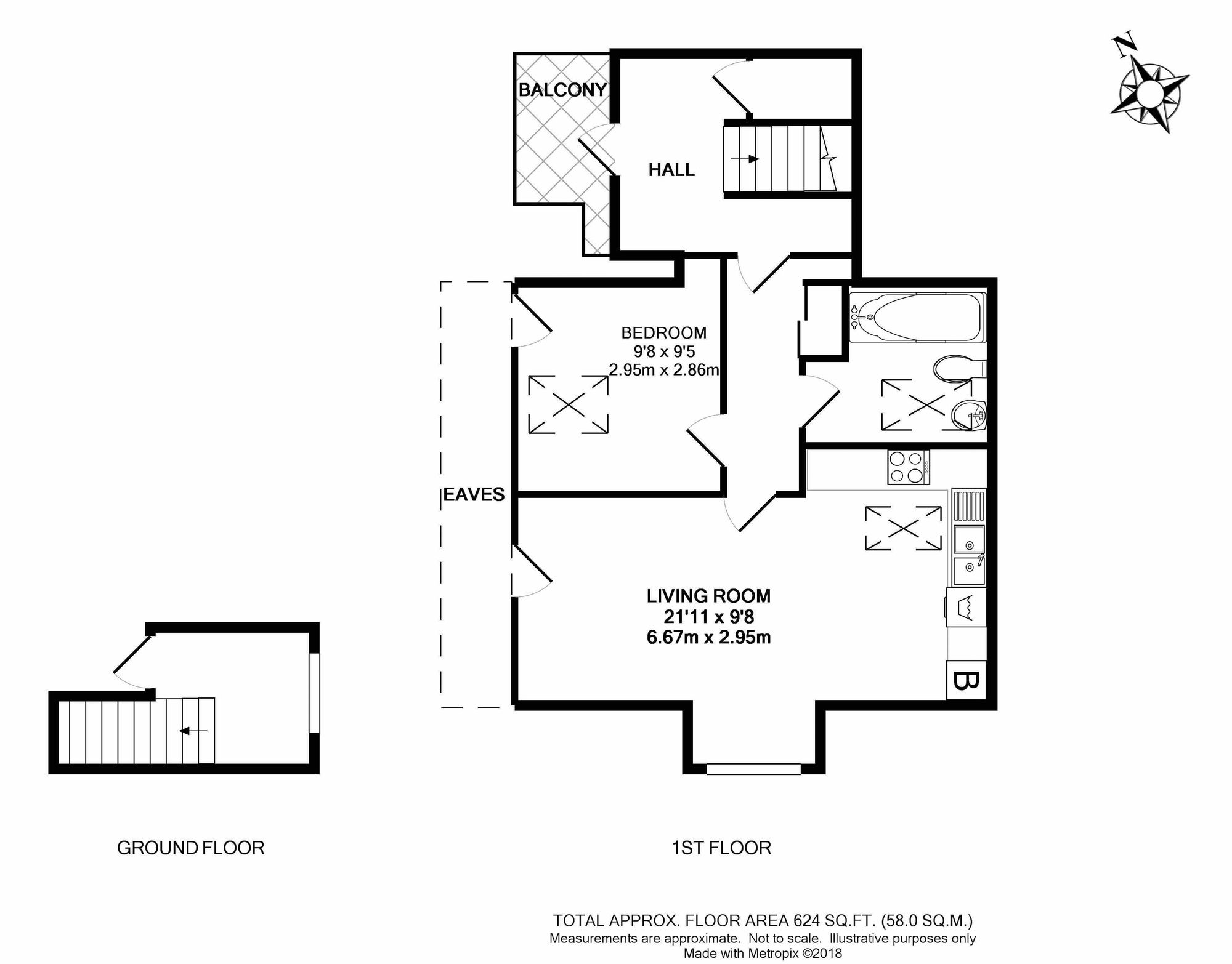
A well presented top floor apartment which incorporates its own stairwell, with a large storage cupboard and balcony giving it a spacious feel. Located to the West of High Wycombe offering convenient access to the town centre and all of its amenities. In brief the accommodation comprises; communal entrance hall, entrance hall, open-plan living room/kitchen, bedroom, bathroom, gas radiator heating, double glazing, large residents car park, communal gardens. Viewing highly recommended.

Energy Efficiency Current: 79.0
Energy Efficiency Potential: 79.0

Important Information

  • This is a Leasehold property.
  • The annual cost for the ground rent on this property is £200
  • The annual service charges for this property is £1500
  • This Council Tax band for this property is: B

Property Ref: a052fcbc-5d8e-476c-bc7b-d26a6bb9bf9c

Share:

Similar Properties

St. Hughs Avenue, High Wycombe, HP13

1 Bedroom Flat | £185,000

A well presented first floor apartment with balcony in a popular location to the East of High Wycombe

Princes Gate, High Wycombe, HP13

1 Bedroom Flat | £180,000

A well-presented one bedroom first floor partment in a popular development within walking distance of High Wycombe town...

Princes Gate, High Wycombe, HP13

1 Bedroom Flat | £179,950

A well presented one bedroom second floor apartment in this highly regarded residential development close to the town ce...

Whitelands Road, High Wycombe, HP12

1 Bedroom Flat | £189,950

A spacious ground floor one-bedroom apartment with private garden area and garage

Corporation Street, Bankside Corporation Street, HP13

1 Bedroom Flat | £199,500

We are delighted to offer for sale this immaculate and well maintained one-bedroom first floor apartment with undergroun...

Wellesbourne Crescent, High Wycombe, HP13

1 Bedroom Flat | £199,950

Available with no onward chain a spacious and well-presented modern top floor apartment in a popular location.

Wye Partnership (High Wycombe)

15 Crendon Street, High Wycombe, Buckinghamshire, HP13 6LE

01494 451300

How much is your home worth?

Use our short form to request a valuation of your property.

Request a Valuation

Mortgage Calculator

Amount Borrowed: £
Total Amount Repayable: £
Total Monthly Payment: £
©2025 The Guild of Property Professionals. All rights reserved. Terms and Conditions | Privacy Policy | Cookie Policy | Complaints Policy | Members Login
The Guild of Property Professionals Trading Address: 121 Park Lane, London W1K 7AG. GPEA Limited. Registered in England & Wales.  Company No: 02819824.  Registered Office Address: 2 St. Stephen's Court, St. Stephen's Road, Bournemouth, Dorset, England, BH2 6LA.  VAT Registration No: 576 8795 61
Book a Property Valuation Update Cookies Preferences