Netherley Road, Hinckley

Offers in region of
£230,000
SSTC
This property listing is now SSTC

3 Bedroom Semi-Detached House for sale in Hinckley

2 3 1
  • Entrance Porch Leading To Hall
  • Dining Room To Front
  • Rear Lounge
  • Well Fitted Kitchen
  • Two Double Bedrooms & Single Bedroom
  • Family Bathroom
  • Off Road Parking
  • Sizeable Private South Facing Rear Garden
  • Popular & Convenient Town Centre Location
  • NO CHAIN - VIEWING ESSENTIAL

** NO CHAIN ** This well appointed semi detached residence is situated in a popular and convenient residential location, within easy distance of Hinckley town centre with its shops, schools and amenities. Commuting via the A47, A5, and M69 junctions makes travelling to Leicester, Coventry, Birmingham and surrounding urban areas very good indeed.

The accommodation enjoys entrance porch to hall, lounge, separate dining room and a well fitted kitchen. To the first floor there are three bedrooms and a family bathroom. Outside the property has off road parking, well tended gardens to front and a sizeable south facing rear garden. Viewing is essential.

Council Tax Band & Tenure - Hinckley and Bosworth Borough Council - Band B (Freehold).

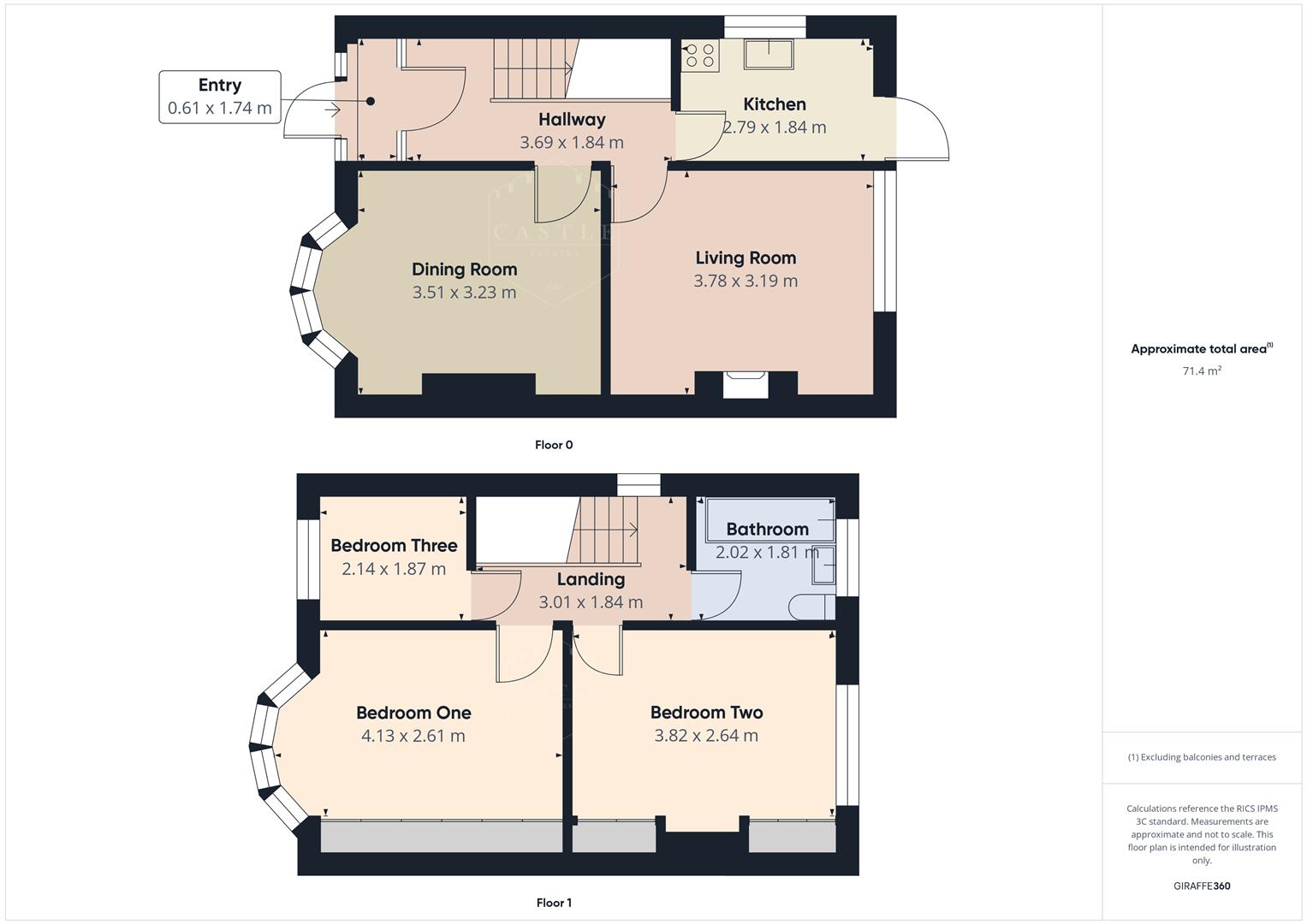
Entrance Porch - having upvc double glazed front door and side windows. Wooden door with obscure glass to Hall.

Hall - 3.69m x 1.84m (12'1" x 6'0" ) - having central heating radiator. Staircase to First Floor Landing with storage cupboard beneath.

Dining Room - 3.51m x 3.23m (11'6" x 10'7" ) - having upvc double glazed bay window to front, original fireplace with fire, tv aerial point, coved ceiling and central heating radiator.

Lounge - 3.78m x 3.19m (12'4" x 10'5" ) - having feature fireplace with fire, wood panelled wall, tv aerial point and upvc double glazed window to rear.

Kitchen - 2.79m x 1.84m (9'1" x 6'0" ) - having range of fitted units including base units, drawers and wall cupboards, contrasting work surfaces and ceramic tiled splashbacks, inset sink with mixer tap, space for cooker with cooker hood over, space and plumbing for washing machine, upvc double glazed window to side and door opening onto Garden.

First Floor Landing - having upvc double glazed window with obscure glass to side, central heating radiator and access to the roof space.

Bedroom One - 4.13m x 2.61m (13'6" x 8'6" ) - having upvc double glazed bay window to front, range of mirrored front sliding wardrobes and central heating radiator.

Bedroom Two - 3.82m x 2.64m (12'6" x 8'7" ) - having upvc double glazed window to rear, range of fitted wardrobes with cupboards over and central heating radiator.

Bedroom Three - 2.14m x 1.87m (7'0" x 6'1" ) - having upvc double glazed window to front and central heating radiator.

Bathroom - having panelled bath with shower over and glass screen, low level w.c., vanity unit with wash hand basin, easy clean panelled walls, white heated towel rail and upvc double glazed window with obscure glass.

Outside - There is direct vehicular access over a block paved driveway and a foregarden with mature shrubs. Double gates leading to a good sized and generally private south facing rear garden with BRICK OUTBUILDING with plumbing and LARGE METAL STORE/SHED, patio area, two artificial lawns, further seating area, mature flower borders and shrubs and well fenced boundaries.

Property Ref: 475887_34216130

Share:

Similar Properties

Outlands Drive, Hinckley

3 Bedroom Terraced House | £230,000

** VIEWING ESSENTIAL ** A well appointed end townhouse standing on a good sized plot with parking and garage en bloc sit...

Twycross Road, Burbage, Hinckley

3 Bedroom Townhouse | Offers Over £230,000

** NO CHAIN ** This semi detached property benefits from rear parking and garage. The accommodation enjoys entrance hall...

Charnwood Road, Barwell

3 Bedroom Semi-Detached House | Offers Over £230,000

** VIEWING ESSENTIAL ** Charnwood Road in Barwell, this delightful semi-detached house presents an excellent opportunity...

Twycross Road, Burbage, Hinckley

2 Bedroom Semi-Detached Bungalow | Offers in region of £240,000

** NO CHAIN ** This well presented semi detached bungalow must be viewed to fully appreciate its wealth of features incl...

Seaforth Drive

3 Bedroom Semi-Detached House | Offers in region of £240,000

** NO CHAIN - VIEWING ESSENTIAL ** A well presented semi detached family residence situated in a popular and convenient...

Crofter Vale, Main Street, Barlestone

2 Bedroom Park Home | £240,000

This is a rare opportunity to purchase a freehold detached park home in the sought after village of Barlestone, with its...

Castle Estates (Hinckley)

Hinckley, Leicestershire, LE10 1DD

01455617997

How much is your home worth?

Use our short form to request a valuation of your property.

Request a Valuation

Mortgage Calculator

Amount Borrowed: £
Total Amount Repayable: £
Total Monthly Payment: £
©2025 The Guild of Property Professionals. All rights reserved. Terms and Conditions | Privacy Policy | Cookie Policy | Complaints Policy | Members Login
The Guild of Property Professionals Trading Address: 121 Park Lane, London W1K 7AG. GPEA Limited. Registered in England & Wales.  Company No: 02819824.  Registered Office Address: 2 St. Stephen's Court, St. Stephen's Road, Bournemouth, Dorset, England, BH2 6LA.  VAT Registration No: 576 8795 61
Book a Property Valuation Update Cookies Preferences