6 Glen Road, Holywood

Asking Price
£995,000

5 Bedroom Detached House for sale in Holywood

3 5 4



A stunning fully refurbished home in the heart of Cultra offering luxury & practicality
Impressive entrance hall with tiled flooring throughout the ground floor
Elegant lounge with a multi-fuel stove and refined interior décor
Recently fitted walnut kitchen with a large central island, open plan dining and a bar area
Large range of integrated appliances including three ovens and a Quooker tap
Double set of patio doors open directly to the landscaped rear garden and patio
Cosy second living room, ideal as a snug or office
Spacious ground-floor double bedroom with a luxury en-suite shower room
Additional versatile fifth bedroom or dining room on the ground floor
Large fully fitted utility room with a boot area and access to the car port
Very spacious master bedroom upstairs with walk in wardrobe and lovely garden views
Luxury fully tiled ensuite with a feature bath alcove with built in TV and a separate walk-in shower
Two further double bedrooms and a luxury fully tiled shower room upstairs
Spacious eves storage room on first floor for additional storage
Detached private gym or versatile space for hobbies that is fully insulated
Secure electric gates and expansive driveway with carport parking
Landscaped front and rear gardens that are fully enclosed and private
Gas-fired central heating and fully double glazing throughout
Alarm system and CCTV security in place
Walking distance to the beach and train station
Only 15 minutes to Belfast City Centre and 5 minutes to Holywood town
Chain free and ready to move into
Some furniture can be included by way of separate negotiation including hot tub and gym equipment

Ground Floor:



Entrance Hall



Lounge



Living Room



Kitchen / Dining / Living Area



Bedroom 4



Walk in Wardrobe



En-suite



Bedroom 5



Bathroom



Storage Cupboard



Utility Room



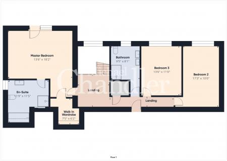
First Floor:



Landing



Master Bedroom



Walk in Wardrobe



Master En-Suite



Bedroom 2



Bedroom 3



Bathroom



Outside:



Covered Car Port



Home Gym



Outdoor Storage





Michael Chandler Estate Agents have endeavoured to prepare these sales particulars as accurately and reliably as possible for the guidance of intending purchasers or lessees. These particulars are given for general guidance only and do not constitute any part of an offer or contract. The seller and agents do not give any warranty in relation to the property/ site. We would recommend that all information contained in this brochure is verified by yourself or your professional advisors. Services, fittings and equipment referred to in the sales details have not been tested and no warranty is given to their condition. All measurements contained within this brochure are approximate. Site sizes are approximate and have not been verified.



Please note that the vendor of this property is associated with Michael Chandler Estate Agents.

Property Ref: 27676_34217860

Share:

Similar Properties

145c Saintfield Road, Lisburn

5 Bedroom Detached House | Asking Price £795,000

Dreams Do Come True! This new build offers an exceptional opportunity to purchase a truly remarkable five bedroom detach...

16 Ballymacrea Road, Portrush

4 Bedroom Detached House | Asking Price £750,000

Serenity Awaits!This stunning home offers a luxurious and special lifestyle, positioned to make the most of the ocean vi...

41 Lisleen Road South, Moneyreagh

6 Bedroom Detached House | Asking Price £750,000

Superb Family Home!Set on the outskirts of Moneyreagh, 41 Lisleen Road South presents an exceptional opportunity for tho...

28a Craigdarragh Road, Helens Bay

4 Bedroom Detached House | Asking Price £1,795,000

A Masterpiece of Luxury Living!Introducing an extraordinary upcoming residence that is set to redefine luxury living in...

Kilmore Road, Crossgar

Plot | Asking Price £2,000,000

Prime Development Opportunity in CrossgarThis is a superb opportunity to acquire approximately seven acres of zoned land...

Michael Chandler Estate Agents (Belfast)

Belfast, County Down, BT7 3GU

02890 450 550

How much is your home worth?

Use our short form to request a valuation of your property.

Request a Valuation

Mortgage Calculator

Amount Borrowed: £
Total Amount Repayable: £
Total Monthly Payment: £
©2025 The Guild of Property Professionals. All rights reserved. Terms and Conditions | Privacy Policy | Cookie Policy | Complaints Policy | Members Login
The Guild of Property Professionals Trading Address: 121 Park Lane, London W1K 7AG. GPEA Limited. Registered in England & Wales.  Company No: 02819824.  Registered Office Address: 2 St. Stephen's Court, St. Stephen's Road, Bournemouth, Dorset, England, BH2 6LA.  VAT Registration No: 576 8795 61
Book a Property Valuation Update Cookies Preferences