2 Seahill Road

Guide Price
£850,000
SSTC
This property listing is now SSTC

6 Bedroom Detached House for sale in HOLYWOOD

4 6 3

Located in one of North Down's most desirable coastal settings, 2 Seahill Road is an impressive six-bedroom detached home, lovingly refurbished to an exceptional standard. This substantial property offers generous, flexible accommodation ideal for modern family living, multigenerational needs, or working from home.
Approached via a private gated driveway, the home boasts a timeless façade and generous landscaped gardens. Inside, it blends classic charm with contemporary design, featuring multiple reception areas, a bespoke high-spec kitchen, and six spacious bedrooms. The principal suite includes a stylish en suite and fitted wardrobes, while other bedrooms cater perfectly to family or guests. Every room reflects the quality and attention to detail that defines this home.
A standout feature is the self-contained annex, accessed via its own front door, offering an independent living space with kitchen, bathroom, and a private decked garden- ideal for a relative, older child, au pair, or guests.
Further enhancing the property is a detached garden entertainment room- perfect as a home office, gym, creative studio, or playroom, offering superb flexibility for evolving lifestyles. The home sits on a generous site with well-maintained front and rear gardens, including a sun-soaked decked area perfect for entertaining or relaxing.
Just a short stroll from the North Down Coastal Path, this location is a haven for walkers and nature lovers. Families benefit from proximity to top local schools, while commuters enjoy excellent transport links including Seahill Railway Halt and Belfast City Airport, only 15 minutes away.
Rarely does a home of this calibre come to market in such a prime location. Offering space, style, and versatility, 2 Seahill Road is a must-see for discerning buyers.

.Impressive Detached 4400sq ft Six Bedroom Home Beautifully Renovated by Current Owners
.Generous and flexible accommodation ideal for modern family living
.Gracious Reception Hall
.Drawing Room with Patio Doors Leading to Rear Courtyard
.Family Room with Outlook to Front
.Bespoke Hand Painted Oak Kitchen with Granite Worksurface and a Range of Integrated Appliances open to the Dining Area with Patio Door to Rear Courtyard
.Ground Floor WC
.Utility Room
.Self-contained annex with private entrance, kitchen, bathroom & garden - perfect for a live-in relative or guest suite
.Six Bedrooms, Elegant Primary with En Suite Bathroom
.Separate Family Bathroom
.Detached garden entertainment room - ideal for home office, gym, studio, or children's playroom
.Landscaped gardens with decked entertaining area and enclosed Courtyard
.Driveway parking for several cars
.EV charger point
.Gas Fired Central Heating
.K Rend Facade
.Moments from the North Down Coastal Path and close to highly regarded schools
.Excellent connectivity: Seahill Railway Halt within walking distance and 15-minute drive to Belfast City Airport

Entrance - Composite front door, double glazed side light and double glazed front light through to reception hall.

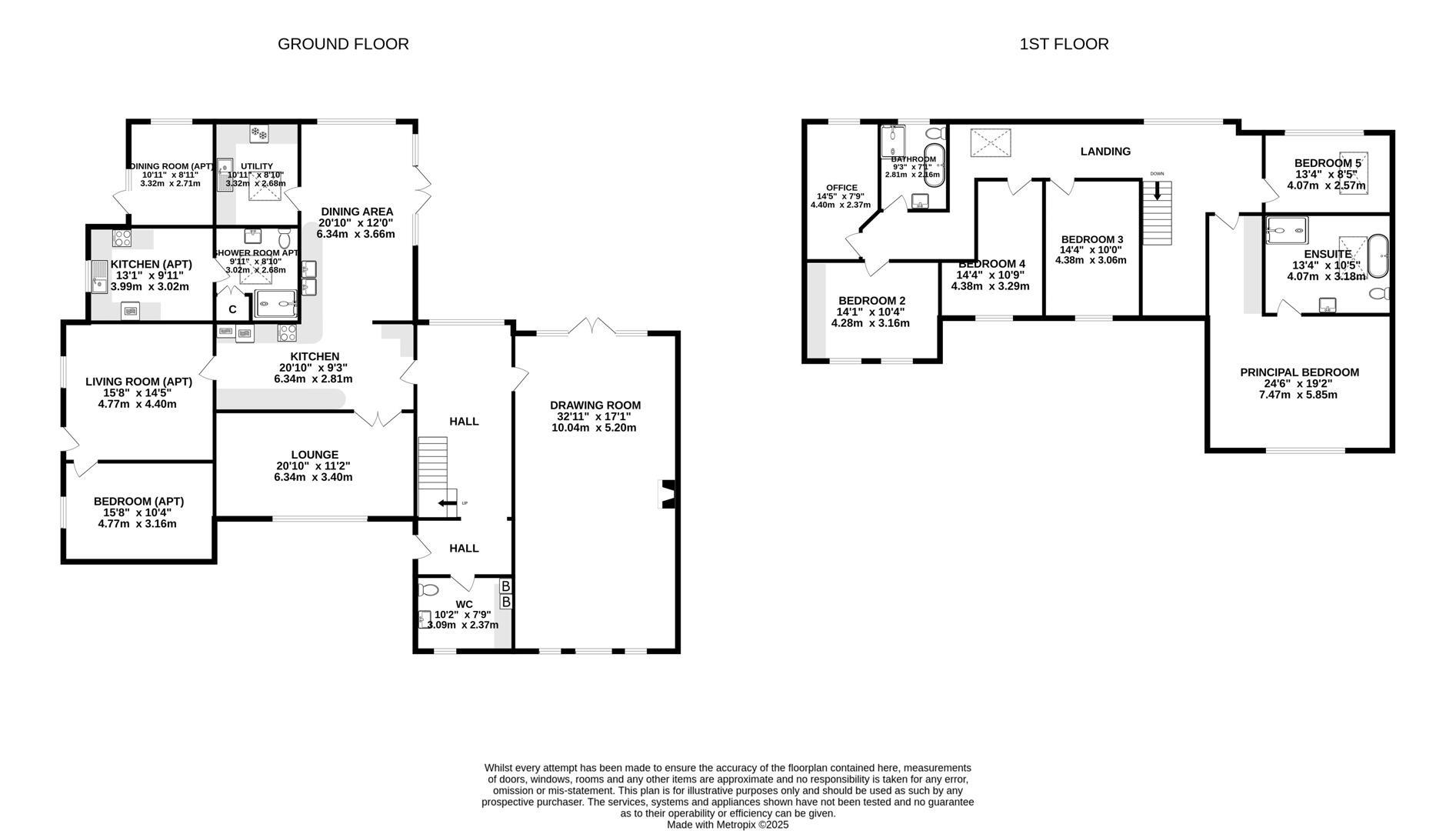
Ground Floor -

Reception Hall - With Victorian style tiled floor, partially panelled walls to hallway.

Double Height Entrance Hall - With laminate herringbone effect wood floor, central ceiling rose, partially panelled walls, outlook to rear garden.

Downstairs Wc - 10'2" x 7'9" - With low flush WC, wall hung wash hand basin, chrome mixer taps, vanity storage below, integrated storage units with dual Worcester gas fired boilers and access to roofspace via Slingsby ladder, partially tiled walls.

Drawing Room - 32'11" x 17'1" - With feature central wood burning stove with mock granite fireplace surround and slate effect back and inset with granite hearth, outlook to front and side, patio doors to rear garden, hardwood floor, cornice bordering and ceiling rose.

Family Room/ Lounge - 20'10" x 11'2" - With outlook to front, dual double doors through to family room, cornice bordering, partially panelled walls.

Kitchen/Dining - 20'10" x 9'3" - With granite work surface, space for fridge freezer, integrated dual oven, integrated microwave, bespoke fitted cabinetry and glazed display cabinetry, double ceramic sink with mixer taps, granite splashback and sills, integrated dishwasher, peninsula island unit, ample space for dining, laminate wood effect floor, patio doors to rear patio and glazed atrium, dual Velux windows. The dining area measures 20'10" x 12'0"

Utility Room - 10'11" x 8'10" - With range of high and low level units, space for washing machine, space for tumble dryer, space for fridge freezer, dual sink with mixer taps and hosepipe attachment, laminate marble effect work surface and splashback.

Access To Separate Living/Relative Accommodation -

Living Room (Apt) - 15'8" x 14'5" - With its own front door, laminate wood effect floor.

Bedroom (Apt) - 15'8" x 10'4" - Outlook to side and range of built-in robes, built-in glazed display cabinetry, open to kitchen.

Kitchen (Apt) - 13'1" x 9'11" - With range of high and low level units, integrated oven, matt black Blanco sink and drainer with chrome mixer taps, outlook to side, uPVC splashback, laminate wood effect work surface, four ring hob, space for washing machine.

Dining Room (Apt) - 10'11" x 8'11" - With uPVC and double glazed access door to decking and garden and laminate wood effect floor.

Shower Room (Apt) - 9'11" x 8'10" - White suite comprising of low flush WC, wall hung wash hand basin, chrome mixer taps, vanity storage below, walk-in thermostatically controlled shower, telephone handle attachment, drencher above, Velux window, extractor fan, hotpress cupboard.

First Floor Landing - Air circulation system, partially panelled walls, Velux window, inset spotlights.

First Floor -

Principal Bedroom - 24'6" x 19'2" - With access to roofspace, range of built-in robes, laminate wood effect floor, outlook to front.

En Suite Shower Room - White suite comprising of low flush WC, wall hung wash hand basin, antique style mixer taps, vanity storage below, free standing bath with antique style mixer taps and telephone handle attachment, walk-in thermostatically controlled shower with antique style fittings and telephone handle attachment, drencher above, glazed shower screen, uPVC panelling, partial wood panelling to walls, chrome and radiator heated towel rail.

Bedroom 4 - 14'4" x 10'9" - With Velux window and outlook to rear

Bedroom 2 - 14'1" x 10'4" - Outlook to front, built-in robes.

Bedroom 3 - 14'4" x 10'0" - Outlook to front.

Office - 14'5" x 7'9" - With outlook to rear.

Bedroom 5 - 13'4" x 8'5" - Outlook to front, range of built-in robes, feature panelled wall.

Bathroom - 9'3" x 7'1" - White suite comprising of low flush WC, wall hung wash hand basin, chrome mixer tap, vanity storage below, free standing bath with mixer taps, telephone handle attachment, walk-in electric shower, telephone handle attachment, glazed shower screen, uPVC partially panelled walls, laminate wood effect floor, extractor fan.

Outside - Ample driveway parking laid in tarmac, EV charging unit, 3 phase, extensive gardens to rear with beautiful mature planting winding down to outside entertainment cabin.

Entertainment Cabin - With installed chemical loo and patio doors with raised decking above, ideal for outdoor entertaining.

Aml - As part of our obligations under the Money Laundering, Terrorist Financing and Transfer of Funds (Information on the Payer) Regulations 2017, all Estate Agents are required to verify the identity of purchasers involved in a property transaction.
To comply with these obligations, all purchasers will be required to complete Customer Due Diligence (AML) identity checks. These checks are carried out on our behalf by our trusted third-party provider, Thirdfort.
A charge will apply of £20 + VAT per purchaser.

Holywood, named Best Place to Live in Northern Ireland 2023 by the Sunday Times, is located conveniently close to Belfast on the coast of North Down. Holywood is known for its beautiful beaches, trendy cafés and for being a foodie heaven! Holywood is home to many leading secondary and primary schools.

Property Ref: 34030065

Share:

Similar Properties

2 Kintyre Avenue

5 Bedroom Detached House | Offers in region of £699,950

Located in one of North Downs most coveted towns - Holywood, this is a cleverly and stylishly remodelled detached home o...

33 Demesne Road

4 Bedroom Detached House | Offers Over £699,950

Occupying a generous, mature site in the heart of Holywood, 33 Demesne Road represents a rare opportunity to acquire a h...

5 Plas Merdyn

3 Bedroom Detached Bungalow | Offers Over £650,000

Perched on an elevated site in one of Holywood's most sought-after locations, 5 Plas Merdyn offers breathtaking panorami...

12a Circular Road West

4 Bedroom Detached Bungalow | Offers in region of £875,000

A rare opportunity to acquire a substantial detached bungalow in the heart of Cultra, one of North Down's most prestigio...

22 Glen Road

5 Bedroom Detached House | Offers in region of £950,000

Occupying a mature site, 22 Glen Road is a 2900 square feet detached residence offering character, space, and exceptiona...

76 - 76B Ballymiscaw Road

3 Bedroom Detached Bungalow | Offers Over £999,950

The Holywood and Craigantlet Hills are a popular location where opportunities such as these rarely present themselves. T...

John Minnis Estate Agents (Holywood)

Holywood, County Down, BT18 9AD

028 9042 8888

How much is your home worth?

Use our short form to request a valuation of your property.

Request a Valuation

Mortgage Calculator

Amount Borrowed: £
Total Amount Repayable: £
Total Monthly Payment: £
©2026 The Guild of Property Professionals. All rights reserved. Terms and Conditions | Privacy Policy | Cookie Policy | Complaints Policy | Members Login
The Guild of Property Professionals Trading Address: 121 Park Lane, London W1K 7AG. GPEA Limited. Registered in England & Wales.  Company No: 02819824.  Registered Office Address: 2 St. Stephen's Court, St. Stephen's Road, Bournemouth, Dorset, England, BH2 6LA.  VAT Registration No: 576 8795 61
Book a Property Valuation Update Cookies Preferences