70 Downshire Road, Holywood

Asking Price
£350,000
SSTC
This property listing is now SSTC

6 Bedroom End of Terrace House for sale in Holywood

1 6 5



Prime Downshire Road location, within walking distance to Holywood Town
Full refurbishment and modernisation required throughout the property
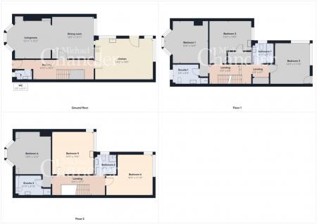
Substantial home set across three spacious floors
Six generous bedrooms, offering flexible living arrangements
Five bathrooms, providing scope for modern redesign and layout
Large entrance hall leading to multiple reception rooms
Extensive outdoor space with multiple sheds, garages and forecourt
Perfect for trades people needing storage for tools or vehicles
Fantastic renovation project with scope to add significant value
Level 2 Survey available upon request

Hallway



Livingroom



Dining room



Kitchen



Landing 1



Bedroom 1



Ensuite 1



Bedroom 2



Landing 2



Bathroom 1



Bedroom 3



Landing 3



Bedroom 4



Ensuite 2



Bedroom 5



Bathroom 2



Bedroom 6





Michael Chandler Estate Agents have endeavoured to prepare these sales particulars as accurately and reliably as possible for the guidance of intending purchasers or lessees. These particulars are given for general guidance only and do not constitute any part of an offer or contract. The seller and agents do not give any warranty in relation to the property/ site. We would recommend that all information contained in this brochure is verified by yourself or your professional advisors. Services, fittings and equipment referred to in the sales details have not been tested and no warranty is given to their condition. All measurements contained within this brochure are approximate. Site sizes are approximate and have not been verified.

Property Ref: 27676_34146918

Share:

Similar Properties

6 Glencroft Avenue, Comber

4 Bedroom Detached House | Asking Price £350,000

Glorious Glencroft! Nestled in the tranquil residential area of Comber, this stunning detached home in Glencroft Avenue...

5 Whinney Heights, Belfast

4 Bedroom Detached House | Asking Price £350,000

A Real Whinner!An impressive detached four bedroom property located in a very highly sought after location in a quiet cu...

63 Martinville Park, Belfast

4 Bedroom Semi-Detached House | Asking Price £350,000

More Than Meets The Eye!This exceptional semi-detached house, located in the charming Martinville Park in Belfast, is a...

25 Park Lane, Saintfield

4 Bedroom Detached House | Asking Price £365,000

Park Life!A beautifully presented four-bedroom detached home, ideally located in the desirable Park Lane development of...

1 Kings Road, Whitehead

Retail Property (High Street) | Asking Price £369,950

A Unique and Diverse Investment Opportunity!This is an exceptional investment opportunity in the heart of Whitehead whic...

73 Earlswood Road, Belfast

3 Bedroom Detached House | Asking Price £375,000

In the Heart Of It!A charming three bedroom detached property perfectly situated between the highly popular Belmont Road...

Michael Chandler Estate Agents (Belfast)

Belfast, County Down, BT7 3GU

02890 450 550

How much is your home worth?

Use our short form to request a valuation of your property.

Request a Valuation

Mortgage Calculator

Amount Borrowed: £
Total Amount Repayable: £
Total Monthly Payment: £
©2025 The Guild of Property Professionals. All rights reserved. Terms and Conditions | Privacy Policy | Cookie Policy | Complaints Policy | Members Login
The Guild of Property Professionals Trading Address: 121 Park Lane, London W1K 7AG. GPEA Limited. Registered in England & Wales.  Company No: 02819824.  Registered Office Address: 2 St. Stephen's Court, St. Stephen's Road, Bournemouth, Dorset, England, BH2 6LA.  VAT Registration No: 576 8795 61
Book a Property Valuation Update Cookies Preferences