Northwood Avenue, Elm Park, Hornchurch, Essex, RM12 4PU

Offers in excess of
£450,000
SSTC
This property listing is now SSTC

3 Bedroom Terraced House for sale in Hornchurch

3 2
  • NO ONGOING CHAIN
  • EXTENDED TO REAR
  • OFF STREET PARKING
  • GROUND FLOOR SHOWER ROOM
  • FIRST FLOOR BATHROOM
  • 0.3 MILES TO STATION

Council tax band: D

UNEXPECTEDLY BACK ON THE MARKET! Well presented extended three/four bedroom terraced property offered with no ongoing chain benefitting from off street parking and ground floor shower room with a first floor bathroom located approximately 0.3 miles to District Line Station, local schools and amenities including Harrow Lodge Park

A superbly extended and immaculately presented three/four-bedroom terraced home, offered with no onward chain and ideally situated just 0.3 miles from the District Line station.

Combining generous living space, versatile accommodation, and exceptional convenience in one of the area"s most sought-after locations.

From the outset, this attractive property impresses with its smart frontage and the rare advantage of off-street parking, ensuring day-to-day practicality for busy households. Step inside and you"re welcomed into a thoughtfully configured interior that has been extended to maximise both space and flexibility, making it an ideal choice for growing families, professional couples, or those seeking multi-generational living.

The ground floor offers a seamless blend of comfort and functionality. A spacious entrance hall leads to a bright and inviting reception room, perfect for relaxing or entertaining.

The extended kitchen/dining area is a true hub of the home, featuring ample worktop space, modern cabinetry, and direct access to the rear garden, ideal for summer gatherings or quiet morning coffees.

A ground floor shower room adds further convenience, especially for guests or older family members, while an additional room provides the flexibility to be used as a fourth bedroom, home office, playroom, or snug depending on your lifestyle needs.
Upstairs, the first-floor hosts three well-proportioned bedrooms, each filled with natural light and offering comfortable accommodation for the whole family. A stylish family bathroom completes the upper level, fitted with contemporary fixtures and designed for ease and comfort.

Outside, the rear garden offers a private and low-maintenance space to unwind, with potential for landscaping or further enhancement. The front driveway ensures hassle-free parking, an asset in this well-connected location.

Positioned just a short stroll from the District Line station, the property enjoys excellent transport links into central London and beyond, making it ideal for commuters.

Families will appreciate the proximity to highly regarded local schools, while the nearby amenities, including shops, cafes, and leisure facilities which provide everything needed for day-to-day living. Harrow Lodge Park, located just moments away, offers expansive green space, scenic walking trails, and a tranquil lake that are perfect for weekend outings or evening strolls.

This chain-free home presents a rare opportunity to secure a spacious and adaptable property in a prime Hornchurch location. Whether you"re upsizing, relocating, or investing, this residence offers the perfect blend of lifestyle, location, and long-term potential.

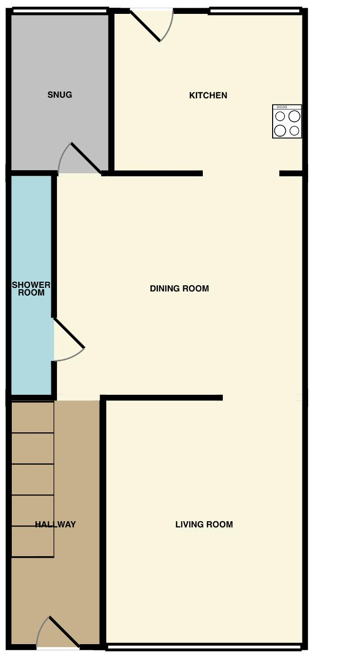
HALLWAY

LIVING ROOM

13'11 x 11'2

DINING ROOM

14' x 12'6

KITCHEN

9'8 x 9'7

BEDROOM FOUR/STUDY

9' x 5'7

GROUND FLOOR SHOWER ROOM

FIRST FLOOR LANDING

BEDROOM ONE

14' x 10'4

BEDROOM TWO

13'2 x 10'3

BEDROOM THREE

10'11 x 6'4

FIRST FLOOR BATHROOM

REAR GARDEN

approx 70ft

Important Information

  • This is a Freehold property.

Property Ref: 11521_710831

Share:

Similar Properties

Gray Gardens, South Hornchurch, Essex, RM13 7NH

3 Bedroom End of Terrace House | Guide Price £450,000

UNEXPECTEDLY BACK ON THE MARKET! GUIDE PRICE £450,000-£475,000 Stylish end of terrace property offered with no ongoing c...

Furness Way, Elm Park, Hornchurch, Essex, RM12 5JH

3 Bedroom Semi-Detached House | £450,000

Three bedroom semi-detached property offered with no ongoing chain with potential for rear extension (STP) benefitting f...

Ennnerdale Avenue, Elm Park, Essex, RM12 5JR

3 Bedroom Terraced House | Offers in excess of £450,000

Three bedroom EXTENDED Mid Terrace property benefitting from double glazing, gas central heating, Ground floor WC, conse...

Elm Park Avenue, Elm Park, Hornchurch, Essex, RM12 4DA

3 Bedroom Semi-Detached House | £455,000

Three bedroom extended semi detached property offered with no ongoing chain located approximately 0.3 miles to Elm Park...

South End Road, Hornchurch, Essex, RM12 5PA

3 Bedroom Semi-Detached House | Guide Price £475,000

GUIDE PRICE £475,000-£500,000 This extended property benefits from off street parking located approximately 0.4 miles to...

Locke Close, South Hornchurch, Essex, RM13 7LD

3 Bedroom Semi-Detached House | £475,000

Stunning double extended to rear three bed semi-detached property located in a quiet cul-de-sac within 1.1 miles of Elm...

Readings Property Services (Elm Park)

12 Elm Parade St Nicholas Avenue, Elm Park, Essex, RM12 4RH

01708 437766

How much is your home worth?

Use our short form to request a valuation of your property.

Request a Valuation

Mortgage Calculator

Amount Borrowed: £
Total Amount Repayable: £
Total Monthly Payment: £
©2025 The Guild of Property Professionals. All rights reserved. Terms and Conditions | Privacy Policy | Cookie Policy | Complaints Policy | Members Login
The Guild of Property Professionals Trading Address: 121 Park Lane, London W1K 7AG. GPEA Limited. Registered in England & Wales.  Company No: 02819824.  Registered Office Address: 2 St. Stephen's Court, St. Stephen's Road, Bournemouth, Dorset, England, BH2 6LA.  VAT Registration No: 576 8795 61
Book a Property Valuation Update Cookies Preferences