High Street, Huntingdon, Cambridgeshire.

£150,000

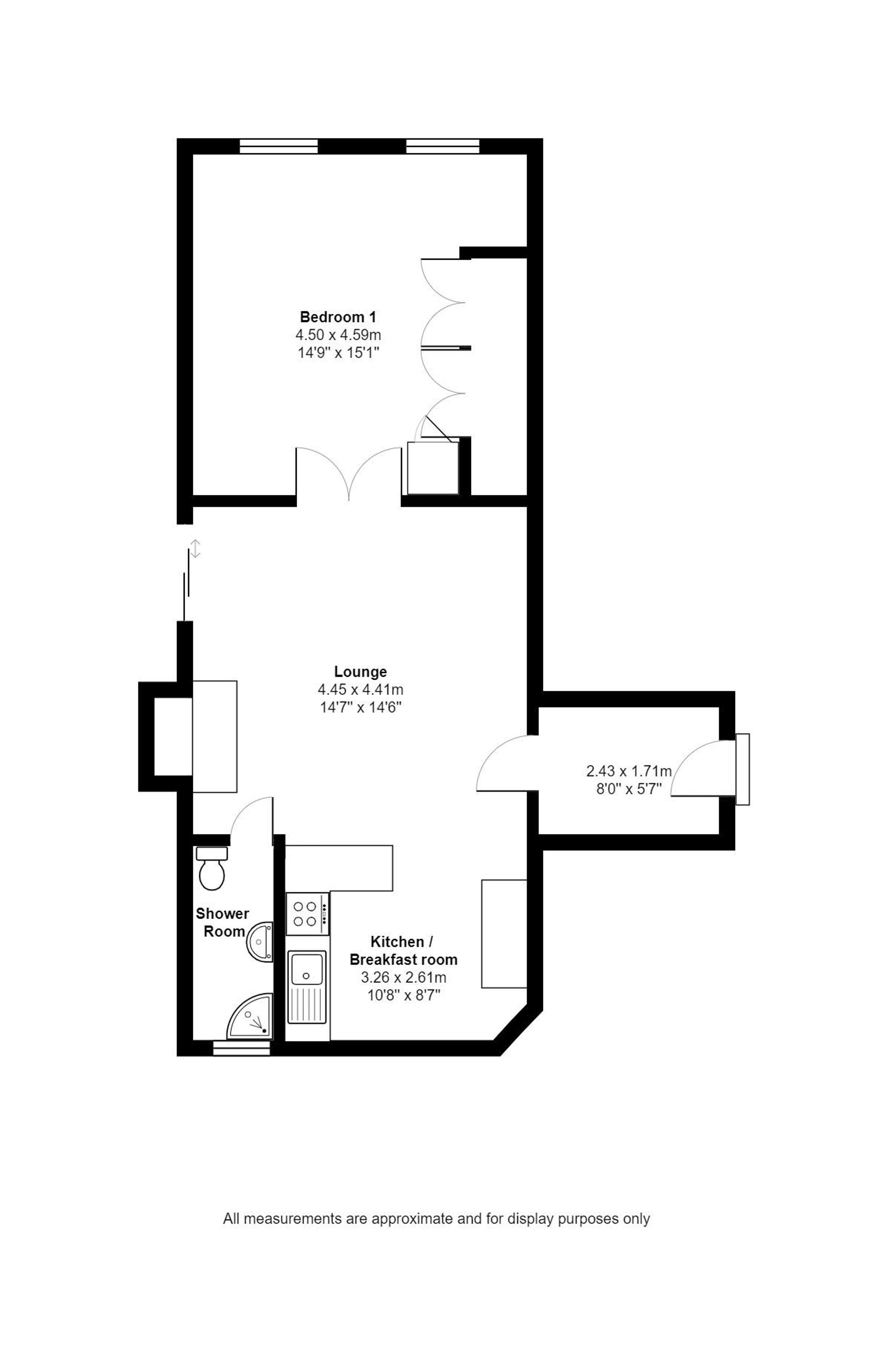
1 Bedroom Ground Floor Flat for sale in Huntingdon

1 1 1
  • Unique ground floor apartment situated within a prestigious historic building.
  • 1 bedroom / 1 reception room / 1 bathroom.
  • A short walk to the various shops, eateries and bars with the Town Centre.
  • Centrally located, Huntingdon Train Station just a 5 minute walk away.
  • A myriad of character and period features throughout.
  • A contemporary, sympathetically styled, kitchen and bathroom.
  • Communal garden area.
  • Offered with no forward chain.
  • Fully secondary glazed windows throughout.
  • EPC: D.

Sited in a Town Centre location, this deceptively spacious apartment is situated within a historic Grade II listed building which has an aesthetically pleasing front façade. The property itself enjoys a myriad of character features, decorated in a sympathetic styling throughout.

Bright and inviting, full-height sash windows pours light into every room making an excellent focal point whilst historic features are balanced with contemporary fixtures and fittings throughout.

All of the amenities, shops, bars and eateries within Huntingdon are a short stroll away with the Train Station just a 5 minute walk with fast lines into Kings Cross in under 50 minutes and Cambridge a 30 minute drive away.

The property is offered to the market with no forward chain and vacant possession.

Energy Efficiency Current: 62.0
Energy Efficiency Potential: 75.0

Important Information

  • The annual cost for the ground rent on this property is £150
  • The annual service charges for this property is £850
  • This Council Tax band for this property is: A

Property Ref: c0ae7c51-e38a-43dd-b30f-10e9d2641e95

Share:

Similar Properties

West Street, Godmanchester, Huntingdon.

1 Bedroom Maisonette | Offers Over £150,000

A charming Grade II listed ground floor maisonette with character features throughout, sited with central Godmanchester....

Ash Tree Avenue, Godmanchester, Cambridgeshire.

2 Bedroom Semi-Detached House | £150,000

Offered on a 50% shared ownership basis, a contemporary two double bedroom home with beautifully landscaped garden and t...

Bradbury Place, Huntingdon, Cambridgeshire.

1 Bedroom Apartment | Offers in excess of £150,000

A unique penthouse apartment ideally located in the Town Centre just a short walk to the train station with a large balc...

Park Square, Brookside, Huntingdon.

1 Bedroom Apartment | Offers in region of £155,000

Framing a lovely communal central green, this one bedroom ground floor apartment is sited just a short walk from the tow...

Payne Road, Sawtry, Cambridgeshire.

3 Bedroom Semi-Detached House | £155,000

A modern 3 bedroom / 2.5 bathroom home with driveway parking offered on a 50% shared ownership basis.

Griffin Road, Brampton, Huntingdon.

3 Bedroom Semi-Detached House | £157,500

Offered on a 50% shared ownership basis, a modern semi-detached three bedroom / two bathroom home with two parking space...

Oliver James Property Sales & Lettings (Huntingdon)

1 George Street, Huntingdon, Cambridgeshire, PE29 3AD

01480 458762

How much is your home worth?

Use our short form to request a valuation of your property.

Request a Valuation

Mortgage Calculator

Amount Borrowed: £
Total Amount Repayable: £
Total Monthly Payment: £
©2025 The Guild of Property Professionals. All rights reserved. Terms and Conditions | Privacy Policy | Cookie Policy | Complaints Policy | Members Login
The Guild of Property Professionals Trading Address: 121 Park Lane, London W1K 7AG. GPEA Limited. Registered in England & Wales.  Company No: 02819824.  Registered Office Address: 2 St. Stephen's Court, St. Stephen's Road, Bournemouth, Dorset, England, BH2 6LA.  VAT Registration No: 576 8795 61
Book a Property Valuation Update Cookies Preferences