Pellon Terrace, Idle,

£225,000
Under Offer
This property listing is now Under Offer

3 Bedroom Semi-Detached House for sale in Idle

3 1
  • EXTENDED 3 BEDROOM SEMI-DETACHED
  • BUILT CIRCA 1958 BY TOM FEATHER HOMES
  • LOUNGE THROUGH TO THE DINING ROOM
  • KITCHEN
  • FITTED FURNITURE TO THE MAIN TWO BEDROOMS
  • BATHROOM
  • UPVC DG WINDOWS & GCH WITH AN IDEAL CONDENSING COMBI-BOILER
  • ALARMED
  • FRONT BLOCKED GARDEN AREA WITH DRIVE PARKING
  • DETACHED GARAGE


EXTENDED 3 BEDROOM BRICK BUILT SEMI-DETACHED PROPERTY CIRCA 1958 BY TOM FEATHER HOMES OF BRADFORD * NEEDS MODERNISATION INTERNALLY * THROUGH LOUNGE TO DINING ROOM * KITCHEN IN BEECH * UPSTAIRS ARE THE 3 BEDROOMS THE MASTER BEING EXTENDED WITH EXTENSIVE FITTED FURNITURE * BATHROOM * GCH WITH AN IDEAL CONDENSING COMBI-BOILER * UPVC DG WINDOWS * ALARMED * FRONT BLOCKED GARDEN AREA AND DRIVE PARKING PLUS SIDE DRIVE LEADING TO THE DETACHED GARAGE * REAR ENCLOSED SW FACING GARDEN * THIS IS AN IDEAL YOUNG FAMILY HOME * CLOSE TO ALL THE LOCAL SCHOOLS AND AMENITIES * NO UPWARD CHAIN SALE * PREVIOUSLY VALUED AT ?240,000 WITH AN RICS SURVEYOR * 

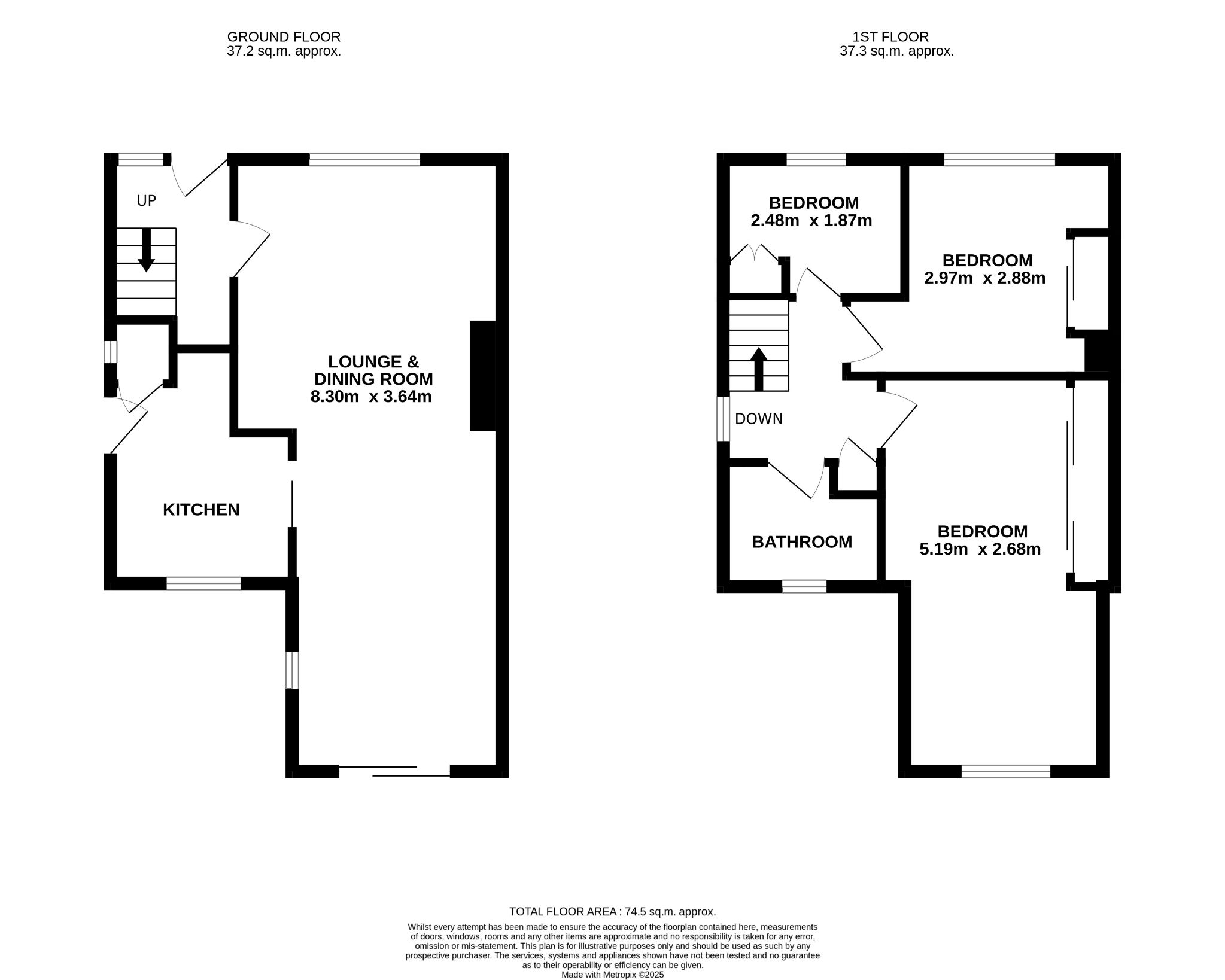
We are delighted to present to the market this extended three-bedroom semi-detached property. This property is situated on Pellon Terrace in Idle, offered at a competitive reduced asking price of ?225,000. Built in 1958 by the renowned Tom Feather Homes, this family-oriented property with 3 bedrooms the master having been extended, bathroom, loft access with a ladder and boarded.
The ground floor features a through lounge having been extended to create a dining room area with rear Upvc dg patio doors out to the garden, perfectly designed for family gatherings or entertaining guests. Adjoining this space is the kitchen in beech with a pantry cupboard.
The upstairs offers extensive bedroom space with bespoke fitted furniture in the primary two bedrooms. The property is fitted with UPVC double glazed windows, Gas Central Heating system accompanied by an Ideal condensing combi-boiler, perfect for those colder months, and alarmed.
Externally, the property offers ample room for parking with a blocked front garden area that includes driveway parking. Additionally, for those requiring more space for vehicles or storage, the property comes with a detached garage. To the rear, the property boasts a Southwest-facing garden which although in need of some attention, with the right touch, could easily be transformed into a sanctuary for a family to enjoy.
This family-friendly property offers potential to transform into a modern home - a perfect opportunity for a prospective buyer to put their personal touch on it. 

Benefitting from its close proximity to local schools and amenities, this house is an ideal choice for a young growing family. This property truly offers an opportunity to create an idyllic family living space in a prime location. Don't miss out on viewing this unique opportunity to turn this house into your dream home. NO UPWARD CHAIN. Previously valued by an RICS surveyor at ?240.000. 

Entrance: Front Upvc door into the hall, staircase, double radiator. 

Lounge through to the Dining Room: 8.30m x 3.64m (27'2 x 11'9). Upvc dg window to front, coving, double radiator, original tiled fireplace with a living flame coal effect gas fire, dining area has room for a good size table and chairs, double radiator, Upvc dg patio doors to the rear.   

Kitchen: 2.62m x 2.5m (8'6 x 8'2). Range of wall & base units in beech, work tops with tiling above, stainless steel sink with a mixer tap, built in double electric oven, 4 ring ceramic hob, double radiator, space for a tall boy fridge freezer, plumbed for an auto-washer, Upvc dg window to rear, part glazed Upvc side door, pantry cupboard.    

Landing & Stairs: Side Upvc dg window, access into the roof space which is boarded with a drop down ladder. 

Bedroom 1: 5.19m x 2.68m (17'0 x 8'8). Upvc dg window to rear, extensive fitted furniture and sliding mirror wardrobes, radiator.

Bedroom 2: 2.97m x 2.88m (9'7 x 9'4). Upvc dg window to front, radiator, built in fitted furniture with a sliding mirror wardrobe. 

Bedroom 3: 2.48m x 1.87m (8'1 x 6'1). Upvc dg window to front, radiator, built in cupboard storage which houses the Ideal Vogue C32 condensing combi-boiler. 

Bathroom: Three piece suite, fully tiled, rail and curtain with a chrome mixer tap, frosted Upvc dg window, radiator.

Externally: To the front is beech hedging, a blocked area and drive, steps and railings to the front door with a weather canopy over, side blocked drive leads to the detached garage with a roller door. To the rear is a flagged patio area, water tap, steps up with walling to the enclosed SW facing lawned garden, 

While we endeavour to make our sales particulars fair, accurate and reliable, they are only a general guide to the property and, accordingly, if there is any point which is of particular importance to you, please contact the office and we will be pleased to check the position for you, especially if you are contemplating travelling some distance to view the property.

3. The measurements indicated are supplied for guidance only and as such must be considered incorrect.

4. Services: Please note we have not tested the services or any of the equipment or appliances in this property, accordingly we strongly advise prospective buyers to commission their own survey or service reports before finalising their offer to purchase.

5. THESE PARTICULARS ARE ISSUED IN GOOD FAITH BUT DO NOT CONSTITUTE REPRESENTATIONS OF FACT OR FORM PART OF ANY OFFER OR CONTRACT. THE MATTERS REFERRED TO IN THESE PARTICULARS SHOULD BE INDEPENDENTLY VERIFIED BY PROSPECTIVE BUYERS OR TENANTS. NEITHER MARTIN LONSDALE ESTATES LIMITED NOR ANY OF ITS EMPLOYEES OR AGENTS HAS ANY AUTHORITY TO MAKE OR GIVE ANY REPRESENTATION OR WARRANTY WHATEVER IN RELATION TO THIS PROPERTY.  

Property Reference 0015390

Important Information

  • This is a Freehold property.
  • This Council Tax band for this property is: C

Property Ref: 0015390

Share:

Similar Properties

Stockhill Fold, Greengates,

2 Bedroom Cottage | £225,000

PERIOD 2 BEDROOM COTTAGE * LOTS OF COTTAGE FEATURES * SPACIOUS LOUNGE DINING ROOM * KITCHEN * STUDY ROOM PART CONVERSION...

Longroyd, Thackley, BD10

2 Bedroom End of Terrace House | £225,000

SUPERBLY PRESENTED EXTENDED 2 BEDROOM END TERRACE PROPERTY * CUL-DE-SAC POSITION ON THIS MUCH SOUGHT AFTER DEVELOPMENT O...

Cyprus Drive, Thackley,

3 Bedroom Semi-Detached House | £225,000

FULLY MODERNISED MATURE 3 BEDROOM PART BAY SEMI-DETACHED IN A MUCH SOUGHT AFTER PART OF THACKLEY * OPEN PLAN KITCHEN DIN...

Park Road, Thackley,

4 Bedroom Cottage | £229,950

3/4 BEDROOM EX WEAVERS COTTAGE ON THREE LEVELS * LOTS OF CHARACTER WITH MULLION WINDOWS AND BEAMS * FEATURE SPIRAL STAIR...

Lodge Road, Thackley,

4 Bedroom End of Terrace House | £229,950

SUPERB 3/4 BEDROOM END TERRACE PROPERTY * SPACIOUS ACCOMMODATION THROUGHOUT * THREE STOREY LIVING WITH WELL PROPORTIONED...

Baddeley Gardens, Thackley,

3 Bedroom Semi-Detached House | £229,950

GOOD SIZE SEMI-DETACHED WITH WELL PROPORTIONED ROOMS * UPVC DG * GCH & VOKERA CONDENSING BOILER * ALARMED * 2 RECEPTIONS...

Martin S Lonsdale Estate Agents (Bradford)

Thackley, Bradford, West Yorkshire, BD10 8JT

01274 622073

How much is your home worth?

Use our short form to request a valuation of your property.

Request a Valuation

Mortgage Calculator

Amount Borrowed: £
Total Amount Repayable: £
Total Monthly Payment: £
©2026 The Guild of Property Professionals. All rights reserved. Terms and Conditions | Privacy Policy | Cookie Policy | Complaints Policy | Members Login
The Guild of Property Professionals Trading Address: 121 Park Lane, London W1K 7AG. GPEA Limited. Registered in England & Wales.  Company No: 02819824.  Registered Office Address: 2 St. Stephen's Court, St. Stephen's Road, Bournemouth, Dorset, England, BH2 6LA.  VAT Registration No: 576 8795 61
Book a Property Valuation Update Cookies Preferences