Claydon, Ipswich, Suffolk

Offers in excess of
£275,000
SSTC
This property listing is now SSTC

3 Bedroom Semi-Detached Bungalow for sale in Ipswich

3 1
  • NO ONWARD CHAIN
  • SEMI-DETACHED BUNGALOW
  • 3 DOUBLE BEDROOMS
  • 2 RECEPTION ROOMS
  • KITCHEN
  • GAS CENTRAL HEATING
  • DOUBLE GLAZED THROUGHOUT
  • BATHROOM WITH SEPARATE SHOWER ROOM
  • SOLAR PANELS
  • WALKING DISTANCE TO SCHOOLS SHOPS AND BUS SERVICE

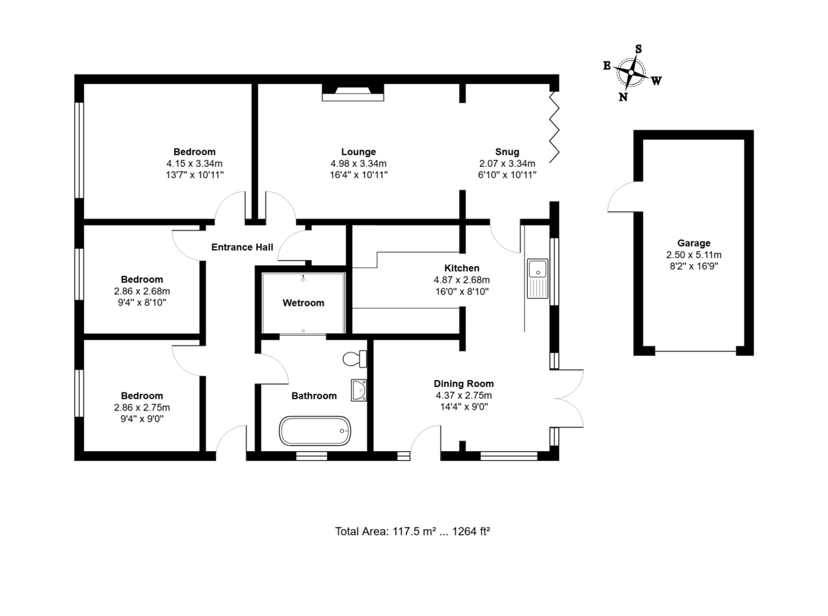
SUMMARY NO ONWARD CHAIN - Ipswich & Suffolk Estate Agents are delighted to offer for sale this modern 3 bedroom semi-detached family bungalow, located in the village of Claydon within walking distance to local schools, shops and bus service, also easy access to A14 trunk road. The bungalow comprises entrance hall, spacious lounge, snug kitchen, dining room, 3 double bedrooms, spacious bathroom and separate shower room. Outside there is ample parking for up to 6 cars, attached single garage and easy maintenance garden. Benefits include double glazing throughout, gas central heating and solar panels. EARLY INSPECTION RECOMMENDED. 

ENTRANCE HALL Ceramic tile flooring, slim line radiator, oak door into bedrooms, bathroom and sitting room, linen cupboard. 

BEDROOM 1 13' 7" x 10' 11" (4.14m x 3.33m) Hard wood flooring, slim line radiator, double glazed window to front aspect. 

BEDROOM 2 9' 2" x 9' 1" (2.79m x 2.77m) Hard wood flooring, radiator, double glazed window to side aspect. 

BEDROOM 3 9' 4" x 8' 10" (2.84m x 2.69m) Hard wood flooring, radiator, double glazed window to side aspect. 

BATHROOM 8' 11" x 7' 8" (2.72m x 2.34m) Comprising low level WC, wash hand basin with storage under, free standing bath with mixer tap, extractor fan, ceramic tile flooring, chrome heated towel rail opening into shower room. 

SHOWER ROOM 6' 10" x 5' (2.08m x 1.52m) Floor to ceiling tiled walls, shower, extractor fan. 

LOUNGE AREA 16' 4" x 10' 11" (4.98m x 3.33m) Hard wood flooring, slim line radiator, inset gas fire opening in to dining area. 

SNUG AREA 10' 11" x 6' 10" (3.33m x 2.08m) Hard wood flooring, slim line radiator, double glazed bi-fold doors out to rear garden, door through to kitchen. 

KITCHEN 16' 0" x 8' 10" (4.88m x 2.69m) Ceramic tiled flooring, white glossy base units with roll edge work tops, space for fridge/freezer, integrated dish washer & washing machine, inset stainless steel sink and drainer with swan neck mixer tap, 4 ring AEG induction hob and AEG wall oven and microwave, double glazed window to rear aspect, walk through to dining room. 

DINING ROOM 14' 4" x 9' (4.37m x 2.74m) Ceramic tiled flooring, slim line radiator, double glazed door to side aspect and double glazed window and door to rear aspect. 

GARAGE 16' 9" x 8' 2" (5.11m x 2.49m) Remote controlled roller door, side pedestrian door into garden, power & lighting connected. 

OUTSIDE Front garden with dwarf brick wall garden laid to lawn, block paved off road parking for up to 6 cars to front of property leading to garage, gate into rear garden with spacious raised patio area for entertaining, pergola, block paving to side, steps down to garage with further block paved area, gardens all enclosed by fencing. 

SERVICES We understand all mains services are connected. 

COUNCIL Mid Suffolk District Council, Tax Band (C) £1,963.00p. 

NEAREST SCHOOLS Claydon primary school & Claydon high school. 

DIGITAL MARKETS, COMPETITION AND CONSUMER ACT 2024 (DMCC) Your Ipswich Ltd has not tested any electrical items, appliances, plumbing or heating systems and therefore cannot testify that they are operational. These particulars are set out as a general outline only for the guidance of potential purchasers or tenants and do not constitute an offer or contract. Photographs are not necessarily comprehensive or current and all descriptions, dimensions, references to condition necessary permissions for use and occupation and other details are given in good faith and believed to be correct but should not be relied upon as statements of, or representations of, fact. Intending purchasers or tenants must satisfy themselves by inspection or otherwise as to the correctness of each of them. We have taken steps to comply with the Digital Markets, Competition and Consumer Act 2024 (DMCC), which require both the seller and their agent to disclose anything, within their knowledge, that would affect the buying decision of the average consumer. If there are any aspects of this property that you wish to clarify before arranging an appointment to view or considering an offer to purchase, please contact us and we will make every effort to be of assistance.

Your Ipswich Ltd, as part of their service to both vendor and purchaser, offer assistance to arrange mortgage and insurance policies, legal services, energy performance certificates, and the valuation and sale of any property relating to any purchaser connected to this transaction. Your Ipswich Ltd confirms they will not prefer one purchaser above another solely because he/she has agreed to accept the offer of any other service from Your Ipswich Ltd. Referral commission
 

AGENT’S STAMP DUTY NOTE Please be advised that as of the 1st of April 2025, the government is changing the stamp duty and land tax structure on all residential purchases, which may affect the cost of stamp duty and land tax for your property purchase.
As of the 1st of April 2025, stamp duty and land tax will become due on all residential purchases of £125,000 or more. First time buyers will be required to pay stamp duty and land tax on all purchases of £300,000 or more.
If you are purchasing a second home, you will also be required to pay an additional 5% stamp duty and land tax.
 

BROADBAND & MOBILE PHONE COVERAGE Broadband- To check the broadband coverage available in the area go to
https://checker.ofcom.org.uk/en-gb/broadband-coverage

Mobile Phone- To check mobile phone coverage in the area go to
https://checker.ofcom.org.uk/en-gb/mobile-coverage
 

Property Ref: 100138005488

Share:

Similar Properties

Eldred Close, Ipswich

2 Bedroom Semi-Detached Bungalow | Guide Price £275,000

CHAIN FREE - A Stylish and spacious two bedroom semi-detached bungalow of excellent proportions, desirably located in a...

Tranmere Grove, Ipswich, Suffolk

2 Bedroom Detached Bungalow | Guide Price £275,000

NO ONWARD CHAIN - We are delighted to be offering for sale this extended 2 bedroom detached bungalow located to the Nort...

Birchcroft Road, Ipswich

3 Bedroom Semi-Detached House | Guide Price £275,000

We are delighted to be offering for sale this 3 bedroom semi-detached property located to the North West of Ipswich on t...

Stevenson Road, Ipswich

3 Bedroom Detached House | £280,000

A 3 bedroom detached house. The property is situated close to the town centre and convenient to local schools and amenit...

Kirby Close, Ipswich

3 Bedroom Semi-Detached House | £280,000

A three bedroom semi-detached house situated to the popular East side of Ipswich, convenient to local schools and amenit...

Knightsdale Road, Ipswich

2 Bedroom Detached Bungalow | £280,000

CHAIN FREE - Cherished under it's current ownership for many years, and although a wrench to leave, the owners are now l...

Your Ipswich (Ipswich)

125 Dale Hall Lane, Ipswich, Suffolk, IP1 4LS

01473 289333

How much is your home worth?

Use our short form to request a valuation of your property.

Request a Valuation

Mortgage Calculator

Amount Borrowed: £
Total Amount Repayable: £
Total Monthly Payment: £
©2026 The Guild of Property Professionals. All rights reserved. Terms and Conditions | Privacy Policy | Cookie Policy | Complaints Policy | Members Login
The Guild of Property Professionals Trading Address: 121 Park Lane, London W1K 7AG. GPEA Limited. Registered in England & Wales.  Company No: 02819824.  Registered Office Address: 2 St. Stephen's Court, St. Stephen's Road, Bournemouth, Dorset, England, BH2 6LA.  VAT Registration No: 576 8795 61
Book a Property Valuation Update Cookies Preferences