Tattingstone, Suffolk

£900,000

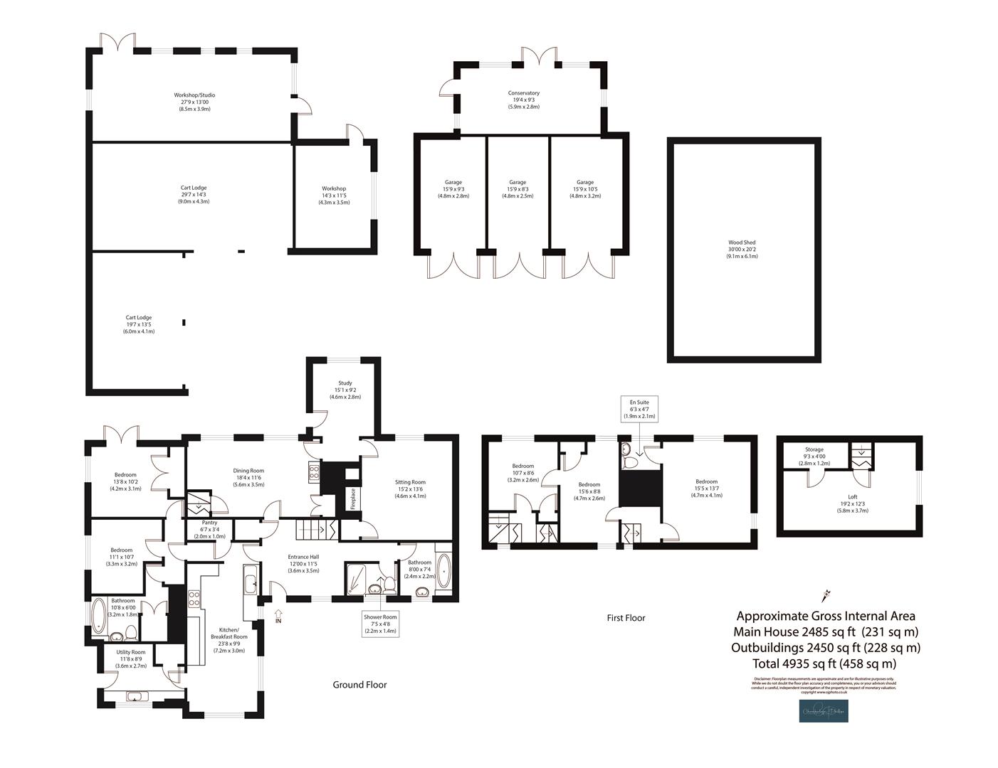
5 Bedroom Detached House for sale in Ipswich

3 5 3
  • ADJACENT TO ALTON WATER
  • PERIOD FARMHOUSE
  • PLOT OF 2.2 ACRES
  • CARTLODGES/BARN AND STUDIO
  • TRIPLE GARAGE
  • OUTBUILDING CONVERSION POTENTIAL
  • FIVE BEDROOMS
  • TWO BATHROOMS & CLOAKROOM
  • STUNNING LOCATION
  • VIIEWNG ESSENTIAL

Discover the idyllic charm of Cragpit Farm, a secluded 16th century Grade II listed farmhouse nestled within a generous 2.2-acre plot (stms), situated in the picturesque village of Tattingstone, Suffolk. With its boundaries adjoining the serene banks of Alton Water reservoir and open farmland, this exceptional property offers the perfect rural retreat for families seeking a tranquil lifestyle.

Cragpit Farmhouse has been thoughtfully extended in the early 2000's to combine the allure of its period features with the conveniences of modern living and requires some light modernisation in areas to better suit modern living styles. Spread across three floors, this enchanting family home presents versatile accommodation, including the potential to create a self-contained annexe or two-bedroom apartment within the main dwelling. The property comprises a welcoming reception hall, five spacious bedrooms, a family bathroom, shower room, three reception rooms, a delightful kitchen/dining area, utility/boot room, and two separate staircases.

This stunning property also boasts a wealth of additional outbuildings, including a triple garage complete with an attached conservatory, a four-bay cart lodge, hay barn, and a versatile pottery studio/office/play barn. These buildings offer excellent potential for further development, such as a detached annexe or holiday home, subject to relevant permissions.

Set within approximately 2.2 acres of beautifully maintained grounds, this exceptional garden is a true sanctuary for nature lovers. At its heart lies a mature 28-tree fruit orchard, offering a bountiful variety of seasonal produce. The landscape is thoughtfully designed to encourage biodiversity, with a rich tapestry of native and ornamental trees, flowering shrubs, and hedgerow borders that provide shelter and habitat for a wide array of birds and wildlife.

Winding grass paths and open glades create a sense of peaceful seclusion, while the surrounding hedges offer privacy and a natural boundary. Whether you're an avid gardener, a keen birdwatcher, or simply seeking a tranquil retreat, this garden offers a rare blend of cultivated beauty and natural charm - a haven where both people and wildlife thrive.

Location:
Nestled in the heart of the Suffolk countryside, the charming village of Tattingstone offers a quintessential rural lifestyle with excellent access to local amenities and transport links. This picturesque village is steeped in history and surrounded by rolling farmland, yet remains conveniently close to the vibrant county town of Ipswich, and Manningtree just a short drive away.

The property enjoys a truly enviable position on the banks of Alton Water, one of the region's most scenic and well-loved reservoirs. Alton Water offers a wide range of outdoor pursuits including sailing, fishing, cycling, and walking, making it a haven for nature enthusiasts and active lifestyles alike. The views across the water are ever-changing and provide a peaceful, natural backdrop throughout the seasons.

Tattingstone benefits from a strong sense of community, a well-regarded village primary school, and a traditional village pub. The nearby A137 offers easy access to Manningtree and Ipswich railway stations, both of which provide direct links to London Liverpool Street, making the location ideal for commuters seeking countryside living with excellent connectivity.

Important Information:
Tenure - Freehold (Grade II listed)
Council Tax Band - E
Services - Mains Electric, Mains Water & Private Drainage
Heating - Radiators via Oil boiler
Mobile Coverage Indoor: All networks outdoors are likely but only O2 offers limited coverage indoors
Broadband: Standard broadband is available at this address

Property Ref: 512123_33956550

Share:

Similar Properties

Colchester Road, Wix, Manningtree

5 Bedroom Detached House | £900,000

Nestled within the serene embrace of a quaint rural village, this stunning five-bedroom house presents an unparalleled o...

Whitehall Lane, Thorpe-Le-Soken

4 Bedroom Barn Conversion | £900,000

Nestled within the serene Essex countryside, this exquisite family abode presents an unparalleled fusion of rustic charm...

Mission Lane, East Bergholt

5 Bedroom Detached House | £850,000

Nestled in the idyllic serenity of East Bergholt, lies a home that defines modern luxury and family living. This exquisi...

St. Osyth, Essex

4 Bedroom Detached House | £925,000

Discover the perfect combination of space, elegance, and natural beauty in this stunning four-bedroom, three-bathroom fa...

Long Road West, Dedham

6 Bedroom Detached House | £950,000

Nestled within the bucolic splendour of the Dedham Vale, an area renowned for its outstanding natural beauty and artisti...

Samford Court, Tattingstone, Ipswich

5 Bedroom Detached House | Guide Price £950,000

Chamberlain Phillips is delighted to present this substantial five-bedroom family home, offering spacious accommodation...

Chamberlain Phillips (Manningtree)

Summers Park, Lawford, Manningtree, Essex, CO11 2BZ

01206 646479

How much is your home worth?

Use our short form to request a valuation of your property.

Request a Valuation

Mortgage Calculator

Amount Borrowed: £
Total Amount Repayable: £
Total Monthly Payment: £
©2025 The Guild of Property Professionals. All rights reserved. Terms and Conditions | Privacy Policy | Cookie Policy | Complaints Policy | Members Login
The Guild of Property Professionals Trading Address: 121 Park Lane, London W1K 7AG. GPEA Limited. Registered in England & Wales.  Company No: 02819824.  Registered Office Address: 2 St. Stephen's Court, St. Stephen's Road, Bournemouth, Dorset, England, BH2 6LA.  VAT Registration No: 576 8795 61
Book a Property Valuation Update Cookies Preferences