- CHAIN FREE
- GROUND FLOOR APARTMENT
- TWO DOUBLE BEDROOMS
- CLASSIC STYLE FITTED KITCHEN
- GENEROUS SITTING & DINING ROOM
- BATHROOM
- ENTRANCE HALL
- IN GOOD DECORATIVE ORDER
- WELL KEPT COMMUNAL AREAS
- GARAGE EN-BLOC
SUMMARY  CHAIN FREE - A well presented two double bedroom ground floor apartment located to the desirable North of Ipswich within close proximity to Christchurch Park and Ipswich town centre. The apartment offers convenient and comfortable living space of deceptively generous proportions and is in good decorative order, the accommodation briefly comprising; entrance hall, classic style fitted kitchen, sitting and dining room, two double bedrooms and bathroom. Further benefits include double glazing throughout, gas fired warm air heating, garage en-bloc and well maintained communal areas. Early viewing is highly recommended to fully appreciate this tidy well kept ground floor example, which are of limited availability, within this sought after development. 
COMMUNAL RECEPTION  Door to apartment. 
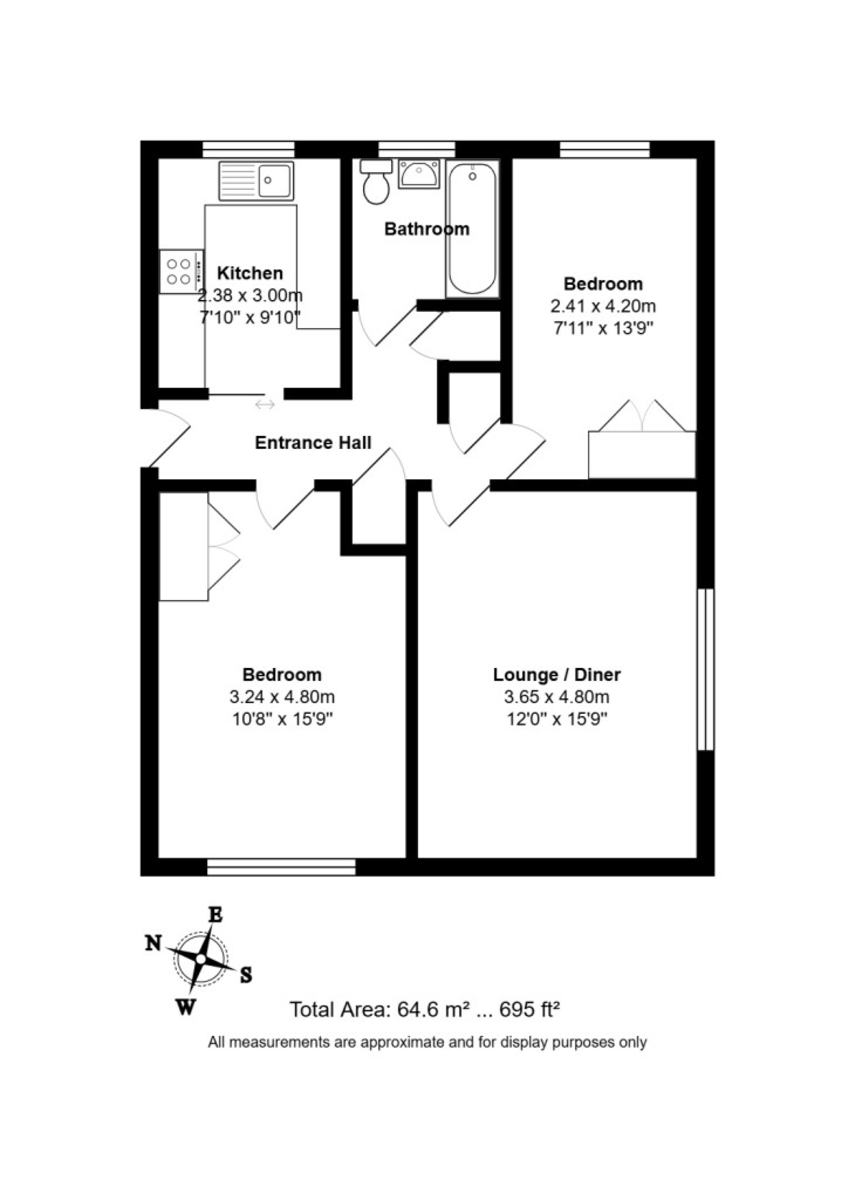
ENTRANCE HALL  Three built-in cupboards, one storage, one housing the gas fired warm air heater, and one airing housing the hot water tank, warm air vent, doors to. 
KITCHEN 7' 10" x 9' 10" approx. (2.39m x 3m) Double glazed window to side, a range of cream classic style base and eye level fitted cupboard and drawer units, wood effect work surfaces, inset stainless steel sink drainer unit with mixer tap, built-in electric oven and grill, inset electric hob with extractor over, tiled splash backs, under counter space for washing machine, space for fridge-freezer. 
SITTING & DINING ROOM 12' x 15' 9" approx. (3.66m x 4.8m) Double glazed window with additional secondary glazing to rear, two warm air vents, television point, Sky television point, Sky Broadband point. 
BEDROOM ONE 10' 8" x 15' 9" approx. (3.25m x 4.8m) Double glazed window with additional secondary glazing to side, built-in wardrobe with clothes rail and cupboard atop, two warm air vents, television point. 
BEDROOM TWO 7' 11" x 13' 9" approx. (2.41m x 4.19m) Double glazed window with additional secondary glazing to front, built-in wardrobe with clothes rail and cupboard atop. 
BATHROOM  Obscure double glazed window with additional secondary glazing to front, wall mounted electric fan heater, panel bath with mixer tap and shower attachment, pedestal hand-wash basin, close coupled WC, tiled splash backs. 
OUTSIDE  Well kept surrounding communal gardens and garage en-bloc. 
LEASE DETAILS  Lease Remaining - Approximately 88 Years.
Ground Rent - Peppercorn.
Service Charge - Approximately £1,200 PA (2025-2026), £600 payable every 6 months. 
IPSWICH BOROUGH COUNCIL  Tax band B - Approximately £1,834.42 PA (2025-2026). 
NEAREST SCHOOLS (.GOV ONLINE)  Dale Hall primary and Northgate secondary. 
BROADBAND AND MOBILE PHONE COVERAGE  Broadband- To check the broadband coverage available in the area go to
https://checker.ofcom.org.uk/en-gb/broadband-coverage
Mobile Phone- To check mobile phone coverage in the area go to
https://checker.ofcom.org.uk/en-gb/mobile-coverage 
STAMP DUTY LAND TAX (SDLT)  On all property and land transactions, the buyer needs to be aware that there is potentially a stamp duty land tax amount to pay on their completed purchase.
The link below will take you to the government online calculator to assist you with working out the cost for this tax and if it is applicable to you.
www.tax.service.gov.uk/calculate-stamp-duty-land-tax/!/intro 
DIGITAL MARKETS, COMPETITION AND CONSUMER ACT 2024 (DMCC)  Your Ipswich Ltd has not tested any electrical items, appliances, plumbing or heating systems and therefore cannot testify that they are operational. These particulars are set out as a general outline only for the guidance of potential purchasers or tenants and do not constitute an offer or contract. Photographs are not necessarily comprehensive or current and all descriptions, dimensions, references to condition necessary permissions for use and occupation and other details are given in good faith and believed to be correct but should not be relied upon as statements of, or representations of, fact. Intending purchasers or tenants must satisfy themselves by inspection or otherwise as to the correctness of each of them. We have taken steps to comply with the Digital Markets, Competition and Consumer Act 2024 (DMCC), which require both the seller and their agent to disclose anything, within their knowledge, that would affect the buying decision of the average consumer. If there are any aspects of this property that you wish to clarify before arranging an appointment to view or considering an offer to purchase, please contact us and we will make every effort to be of assistance.
Your Ipswich Ltd, as part of their service to both vendor and purchaser, offer assistance to arrange mortgage and insurance policies, legal services, energy performance certificates, and the valuation and sale of any property relating to any purchaser connected to this transaction. Your Ipswich Ltd confirms they will not prefer one purchaser above another solely because he/she has agreed to accept the offer of any other service from Your Ipswich Ltd. Referral commission (where received) is in the range of £60 to £200. 
Property Ref: 58007_100138003455
1 Bedroom Apartment | Guide Price £150,000
CHAIN FREE - A rare investment opportunity to purchase a one bedroomed apartment located in a prime residential area, cl...
3 Bedroom Semi-Detached House | Shared Ownership £150,000
A beautifully presented and deceptively spacious three double bedroom 50% shared ownership modern family home in the fav...
3 Bedroom End of Terrace House | Offers in excess of £150,000
28 DOVER ROAD - HOME OPEN 1PM - 2PM WEDNESDAY AUGUST 27TH & FRIDAY 29TH AUGUST 12 NOON - 1PM. NO APPOINTMENT NEEDED.NO O...
2 Bedroom Terraced House | Guide Price £160,000
We are pleased to be offering for sale this delightful two bedroom mid-terraced house with OFF ROAD PARKING located to t...
3 Bedroom End of Terrace House | Guide Price £165,000
A delightful newly refurbished 2/3 end of terrace townhouse set to the South East side of Ipswich offered for sale with...
2 Bedroom Terraced House | Guide Price £168,000
A well presented and much improved two double bedroom attached house, located to the favourite West of Ipswich within ea...
 
                            Your Ipswich (Ipswich)
125 Dale Hall Lane, Ipswich, Suffolk, IP1 4LS
Use our short form to request a valuation of your property.
Request a Valuation