Bramford Road, Ipswich, Suffolk

Guide Price
£170,000

2 Bedroom Terraced House for sale in Ipswich

2 1
  • IDEAL FOR FTB
  • MID TERRACED HOUSE
  • 2 DOUBLE BEDROOMS
  • 2 RECEPTION ROOMS
  • EXTENDED KITCHEN
  • FIRST FLOOR BATHROOM
  • GAS CENTRAL HEATING
  • DOUBLE GLAZED THROUGHOUT
  • GRAVEL FRONT FOR PARKING
  • CLOSE TO LOCAL SHOPS, SCHOOLS AND BUS SERVICE

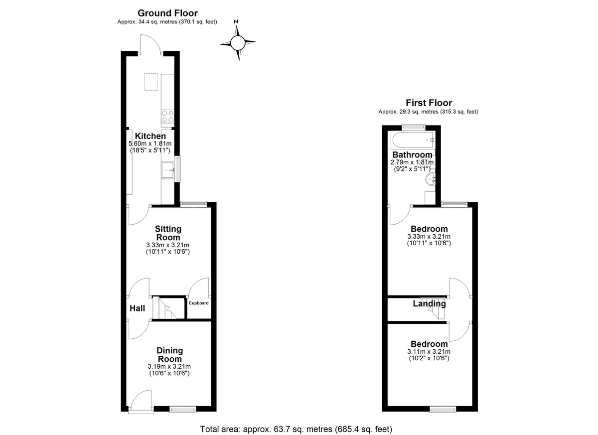
SUMMARY Ipswich & Suffolk Estate Agents are delighted to be offering for sale this 2 bedroom mid terraced property located to the West side of Ipswich close to local schools and bus service, the property is a short drive from local super store Morrisons & Aldi along with easy access to A14/A12 trunk roads. The property is arranged over two floors comprising entry into sitting room, dining room. extended kitchen, stairs leading to 2 double bedrooms and bathroom, further benefits include double glazed throughout, gas central heating, established rear garden, gravel off road parking to front. IDEAL FOR FTB.  

DINING ROOM 10' 6" x 10' 6" (3.2m x 3.2m) Entrance door into dining room, double glazed window to front aspect, radiator, laminate flooring, door to stairwell. 

STAIRWELL Stairs to first floor, door to dining room.  

SITTING ROOM 10' 11" x 10' 6" (3.33m x 3.2m) LVT flooring, storage cupboard under stairs, double glazed window to rear aspect, radiator, door to kitchen. 

KITCHEN 18' 5" x 5' 11" (5.61m x 1.8m) Steps down to kitchen matching base units with roll edge work tops, inset butler sink with swan neck mixer tap
plumbing for washing machine, space for American style fridge/freezer, slate style flooring, electric hob & oven, double glazed window to rear aspect, Velux sky light, stable door to rear garden. 

BEDROOM 1 10' 11" x 10' 6" (3.33m x 3.2m) Carpeted flooring, built in storage cupboard, radiator, double glazed window to rear aspect, original fireplace, door to bathroom. 

BATHROOM 9' 2" x 5' 11" (2.79m x 1.8m) Steps down to bathroom, comprising low level WC, wash hand basin and bath, double glazed window to rear aspect, LVT flooring, chrome heated towel rail, wall mounted Baxi boiler. 

BEDROOM 2 10' 6" x 10' 2" (3.2m x 3.1m) Carpeted flooring, double glazed window to front aspect, radiator, original fireplace. 

STAIRS TO FIRST FLOOR Carpeted stairs doors to bedrooms. 

OUTSIDE Gravel to front for off road parking, side flower border. Rear garden patio at top and bottom of garden, lawn all enclosed by fencing, gate with right of way access over neighbouring gardens. 

SERVICES We understand all mains services are connected. 

COUNCIL Ipswich borough Council
Council Tax Band (A) £1,645.50 

NEAREST SCHOOLS Springfield infant & junior schools, Westbourne Academy. 

DIGITAL MARKETS, COMPETITION AND CONSUMER ACT 2024 (DMCC) Your Ipswich Ltd has not tested any electrical items, appliances, plumbing or heating systems and therefore cannot testify that they are operational. These particulars are set out as a general outline only for the guidance of potential purchasers or tenants and do not constitute an offer or contract. Photographs are not necessarily comprehensive or current and all descriptions, dimensions, references to condition necessary permissions for use and occupation and other details are given in good faith and believed to be correct but should not be relied upon as statements of, or representations of, fact. Intending purchasers or tenants must satisfy themselves by inspection or otherwise as to the correctness of each of them. We have taken steps to comply with the Digital Markets, Competition and Consumer Act 2024 (DMCC), which require both the seller and their agent to disclose anything, within their knowledge, that would affect the buying decision of the average consumer. If there are any aspects of this property that you wish to clarify before arranging an appointment to view or considering an offer to purchase, please contact us and we will make every effort to be of assistance.

Your Ipswich Ltd, as part of their service to both vendor and purchaser, offer assistance to arrange mortgage and insurance policies, legal services, energy performance certificates, and the valuation and sale of any property relating to any purchaser connected to this transaction. Your Ipswich Ltd confirms they will not prefer one purchaser above another solely because he/she has agreed to accept the offer of any other service from Your Ipswich Ltd. Referral commission (where received) is in the range of £60 to £200.
 

AGENT’S STAMP DUTY NOTE Please be advised that as of the 1st of April 2025, the government is changing the stamp duty and land tax structure on all residential purchases, which may affect the cost of stamp duty and land tax for your property purchase.
As of the 1st of April 2025, stamp duty and land tax will become due on all residential purchases of £125,000 or more. First time buyers will be required to pay stamp duty and land tax on all purchases of £300,000 or more.
If you are purchasing a second home, you will also be required to pay an additional 5% stamp duty and land tax.
 

BROADBAND & MOBILE PHONE COVERAGE Broadband- To check the broadband coverage available in the area go to
https://checker.ofcom.org.uk/en-gb/broadband-coverage

Mobile Phone- To check mobile phone coverage in the area go to
https://checker.ofcom.org.uk/en-gb/mobile-coverage
 

Property Ref: 100138005453

Share:

Similar Properties

Saturn Road, Ipswich, Suffolk

2 Bedroom Coach House | Guide Price £170,000

NO ONWARD CHAIN - A spacious two bedroom freehold coach house with private entrance and garage, located within the popul...

Waveney Road, Ipswich

2 Bedroom Terraced House | Guide Price £168,000

A well presented and much improved two double bedroom attached house, located to the favourite West of Ipswich within ea...

Sirdar Road, Ipswich, Suffolk

3 Bedroom Terraced House | Guide Price £160,000

NO ONWARD CHAIN - An ideal opportunity to purchase this 3 bedroom mid terrace house with off road parking located to the...

Rosehill Road, Ipswich

3 Bedroom Semi-Detached House | £175,000

NO ONWARD CHAIN - THE PROPERTY REQUIRES REFURBISHMENT THROUGHOUT. Located to the east side of Ipswich in the Copleston h...

Bull Road, Ipswich

2 Bedroom Flat | £175,000

NO ONWARD CHAIN - Your Ipswich are pleased to be offering for sale this 2 bedroom coach house located to the East of Ips...

Roberts Close, Kesgrave

1 Bedroom Apartment | Guide Price £175,000

CHAIN FREE - A deceptively spacious double bedroom detached freehold coach house, nicely tucked at the end of a desirabl...

Your Ipswich (Ipswich)

125 Dale Hall Lane, Ipswich, Suffolk, IP1 4LS

01473 289333

How much is your home worth?

Use our short form to request a valuation of your property.

Request a Valuation

Mortgage Calculator

Amount Borrowed: £
Total Amount Repayable: £
Total Monthly Payment: £
©2026 The Guild of Property Professionals. All rights reserved. Terms and Conditions | Privacy Policy | Cookie Policy | Complaints Policy | Members Login
The Guild of Property Professionals Trading Address: 121 Park Lane, London W1K 7AG. GPEA Limited. Registered in England & Wales.  Company No: 02819824.  Registered Office Address: 2 St. Stephen's Court, St. Stephen's Road, Bournemouth, Dorset, England, BH2 6LA.  VAT Registration No: 576 8795 61
Book a Property Valuation Update Cookies Preferences