Saturn Road, Ipswich

Guide Price
£175,000
SSTC
This property listing is now SSTC

2 Bedroom Flat for sale in Ipswich

2 2
  • POPULAR BLAKENHAM PARK
  • NO ONWARD CHAIN
  • COACH HOUSE
  • TWO BEDROOMS
  • EN-SUITE
  • BATHROOM
  • LOUNGE-KITCHEN-DINER
  • GROUND FLOOR STORE ROOM
  • LOFT SPACE
  • GARAGE PARKING

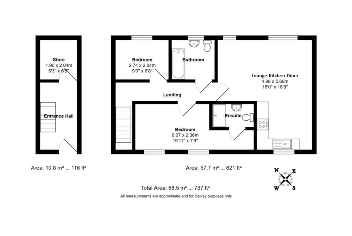
SUMMARY NO ONWARD CHAIN - A spacious two bedroom freehold coach house with private entrance and garage, located within the popular Blakenham Park development to the West of Ipswich, convenient to local shops, super stores and the A14. The ground floor accommodation comprises; entrance hall and store room, whilst the first floor accommodation comprises; landing, lounge-kitchen-diner, two bedrooms with en-suite to bedroom one, and a bathroom. The first floor is positioned over three garages, one of which belongs to the property and provides parking, further benefits include double glazing, gas fired central heating, and visitor parking spaces.  

SHELTERED ENTRANCE Double glazed private front door to hallway. 

HALLWAY Radiator, stairs rising to first floor, door to store room. 

STORE ROOM 6' 9" x 5' 9" approx. (2.06m x 1.75m) Electric meter. 

STAIRS RISING TO FIRST FLOOR  

LANDING Loft access, radiator, doors to. 

LOUNGE-KITCHEN-DINER 18' 8" narrowing to 10' 2" x 16' narrowing to 9' 4" approx. (5.69m x 4.88m) Double glazed window to front, two double glazed windows to rear, two radiators, a range of gloss fronted base and eye level fitted cupboard and drawer units, rolled edge work surfaces, built-in electric oven and grill, inset gas hob with extractor hood over, cupboard concealing wall mounted gas fired boiler, spaces for fridge-freezer and washing machine, television and telephone points. 

BEDROOM ONE 19' 11" narrowing to 12' x 7' 9" narrowing to 3' 7" approx. (6.07m x 2.36m) Two double glazed windows to front, radiator, television point, door to en-suite. 

EN-SUITE Radiator, double shower cubicle with thermostatic shower, pedestal hand-wash basin with mixer tap, low level WC, tiled splash backs, shaver socket, extractor fan. 

BEDROOM TWO 8' 11" x 6' 9" approx. (2.72m x 2.06m) Double glazed window to rear, radiator. 

BATHROOM Obscured double glazed window to rear, radiator, pedestal hand-wash basin with mixer tap, low level WC, panel bath with mixer tap and shower attachment, tiled splash backs, shaver socket, extractor fan. 

GARAGE 18' 8" x 8' 2" approx. (5.69m x 2.49m) Up and over entry door, mains power and lighting. 

SERVICE CHARGE For the maintenance of unadopted communal areas there is an annual service charge of approximately £300.00p (2025-2026). 

IPSWICH BOROUGH COUNCIL Tax band B. 

RESTRICTIVE COVENANTS Not to park any heavy goods vehicle on any part of the property or the development and not to park any light goods vehicle, caravan, boat, trailer or similar type of vehicle on the development or the property except within a garage or otherwise out of sight of the other properties on the development.

Full details of all restrictive covenants are available by request prior to viewing. 

NEAREST SCHOOLS (.GOV ONLINE) Springfield Primary & Westbourne Academy High. 

DIRECTIONS Leaving Ipswich town centre and heading in a North Westerly direction along Bramford Road/B1067, turn left onto Sproughton Road, at the roundabout take the third exit onto Europa Way, turn right onto Saturn Road, turn left through the underpass into the car parking area, the property is found ahead and to the right hand-side. 

BROADBAND & MOBILE PHONE COVERAGE Broadband- To check the broadband coverage available in the area go to
https://checker.ofcom.org.uk/en-gb/broadband-coverage

Mobile Phone- To check mobile phone coverage in the area go to
https://checker.ofcom.org.uk/en-gb/mobile-coverage  

DIGITAL MARKETS, COMPETITION AND CONSUMER ACT 2024 (DMCC) Your Ipswich Ltd has not tested any electrical items, appliances, plumbing or heating systems and therefore cannot testify that they are operational. These particulars are set out as a general outline only for the guidance of potential purchasers or tenants and do not constitute an offer or contract. Photographs are not necessarily comprehensive or current and all descriptions, dimensions, references to condition necessary permissions for use and occupation and other details are given in good faith and believed to be correct but should not be relied upon as statements of, or representations of, fact. Intending purchasers or tenants must satisfy themselves by inspection or otherwise as to the correctness of each of them. We have taken steps to comply with the Digital Markets, Competition and Consumer Act 2024 (DMCC), which require both the seller and their agent to disclose anything, within their knowledge, that would affect the buying decision of the average consumer. If there are any aspects of this property that you wish to clarify before arranging an appointment to view or considering an offer to purchase, please contact us and we will make every effort to be of assistance.

Your Ipswich Ltd, as part of their service to both vendor and purchaser, offer assistance to arrange mortgage and insurance policies, legal services, energy performance certificates, and the valuation and sale of any property relating to any purchaser connected to this transaction. Your Ipswich Ltd confirms they will not prefer one purchaser above another solely because he/she has agreed to accept the offer of any other service from Your Ipswich Ltd. Referral commission (where received) is in the range of £60 to £200. 

Property Ref: 58007_100138005013

Share:

Similar Properties

Highwood Manor, Constitution Hill, Ipswich

2 Bedroom Apartment | Guide Price £175,000

CHAIN FREE - A rare opportunity to acquire a totally refurbished two bedroomed apartment located in a prime residential...

Bull Road, Ipswich

2 Bedroom Flat | £175,000

NO ONWARD CHAIN - Your Ipswich are pleased to be offering for sale this 2 bedroom coach house located to the East of Ips...

Rosehill Road, Ipswich

3 Bedroom Semi-Detached House | £175,000

NO ONWARD CHAIN - THE PROPERTY REQUIRES REFURBISHMENT THROUGHOUT. Located to the east side of Ipswich in the Copleston h...

Little Bramford Lane, Ipswich

2 Bedroom Terraced House | Guide Price £180,000

A modern, well proportioned two double bedroom terraced house, conveniently located to the West of Ipswich within walkin...

Sirdar Road, Ipswich

3 Bedroom Terraced House | Guide Price £180,000

An immaculately presented three bedroom Edwardian attached home with off-road parking which has undergone thoughtful imp...

Churchmans House, Portman Road, Ipswich, Suffolk

2 Bedroom Apartment | £180,000

NO ONWARD CHAIN - Loft style living in the heart of Ipswich, this 2 bedroom 2nd floor apartment is currently being used...

Your Ipswich (Ipswich)

125 Dale Hall Lane, Ipswich, Suffolk, IP1 4LS

01473 289333

How much is your home worth?

Use our short form to request a valuation of your property.

Request a Valuation

Mortgage Calculator

Amount Borrowed: £
Total Amount Repayable: £
Total Monthly Payment: £
©2025 The Guild of Property Professionals. All rights reserved. Terms and Conditions | Privacy Policy | Cookie Policy | Complaints Policy | Members Login
The Guild of Property Professionals Trading Address: 121 Park Lane, London W1K 7AG. GPEA Limited. Registered in England & Wales.  Company No: 02819824.  Registered Office Address: 2 St. Stephen's Court, St. Stephen's Road, Bournemouth, Dorset, England, BH2 6LA.  VAT Registration No: 576 8795 61
Book a Property Valuation Update Cookies Preferences