- FAVOURITE NORTH WEST
- SEMI DETACHED FAMILY HOME
- THREE BEDROOMS
- TWO RECEPTIONS
- FIRST FLOOR BATHROOM
- ENTRANCE HALL
- OFF ROAD PARKING AND GARAGE
- ESTABLISHED GARDEN
- POTENTIAL TO IMPROVE
- CHAIN FREE
SUMMARY  CHAIN FREE - A three bedroom semi-detached family home with garage, located in the popular Castle Hill area to the favourite North West of Ipswich, fringing the Crofts. Offering scope for a degree of updating, the well appointed accommodation comprises; entrance hall, kitchen, sitting and dining rooms on the ground floor, with landing, three bedrooms and shower room on the first floor. To the outside, the frontage provides driveway off-road parking and access to a detached garage, whilst to the rear there is a lightly tiered established garden over two levels with greenhouse. Benefits include; predominant double glazing, gas fired central heating, and electric roller shutter garage door. We are advised that probate has been applied for but is yet to be granted, extraordinary delays with the deceased estate are not anticipated. Early viewing to fully appreciate this excellent opportunity is highly recommended. 
COMPOSITE FRONT DOOR TO   
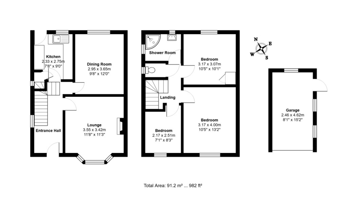
ENTRANCE HALL  Double glazed window to side, radiator, stairs rising to first floor, telephone point, under stairs cupboard, doors to. 
KITCHEN 7' 8" x 9' max. approx. (2.34m x 2.74m) Double glazed windows to side and rear, built-in corner pantry cupboard with window to side, a range of wood effect base and eye level cupboard and drawer fitted units, granite effect work surfaces, inset stainless steel sink drainer unit with mixer tap, built-in electric oven, inset gas hob with extractor over, integrated dish-washer and installed washing machine to remain, tiled splash backs, tile effect flooring, double glazed door to garden. 
SITTING ROOM 11' 8" x 11' 3" plus bay. approx. (3.56m x 3.43m) Double glazed bay window to front, radiator, television point, telephone point, enclosed gas fire with York stone surround. 
DINING ROOM 9' 8" x 12' approx. (2.95m x 3.66m) Double glazed window to rear, radiator, wall mounted gas fired boiler. 
STAIRS RISING TO FIRST FLOOR   
LANDING  Double glazed window to side, loft access, doors to. 
BEDROOM ONE 10' 5" x 13' 2" approx. (3.18m x 4.01m) Double glazed window to front, radiator. 
BEDROOM TWO 10' 5" x 10' 1" approx. (3.18m x 3.07m) Double glazed window to rear, radiator, built-in airing cupboard housing hot water tank. 
BEDROOM THREE 7' 1" x 8' 3" approx. (2.16m x 2.51m) Double glazed window to front, radiator, Virgin broadband point. 
SHOWER ROOM  Obscure double glazed windows to rear and side, chrome heated towel rail, pedestal hand-wash basin with mixer tap, shower cubicle with thermostatic shower, tiled walls, extractor fan. 
OUTSIDE  Nicely set back from the road, the frontage consists of hard stand off-road parking area and a shared driveway which leads to a detached garage, and stocked beds. The rear garden is lightly tiered over two levels, there is a patio, pathway, and greenhouse, with fencing to boundaries, wooden shed. 
DETACHED GARAGE 8' 1" x 15' 2" approx. (2.46m x 4.62m) Double glazed window to rear, galvanized lean-to style roof, two double glazed windows to side, personal door to garden, mains power and lighting, electric roller shutter door entry. 
IPSWICH BOROUGH COUNCIL  Tax band B - Approximately £1,834.42 PA (2026-2026). 
NEAREST SCHOOLS (.GOV ONLINE)  St Pancras Catholic primary and Westbourne Academy secondary. 
DIRECTIONS  Leaving Ipswich town centre, head west on Crown St/A1156, go through 1 roundabout, at the roundabout, take the 2nd exit onto Chevallier St/Norwich Rd/A1156/A1214, at the roundabout, take the 1st exit onto Norwich Rd/A1156, turn right onto Highfield Approach, turn left onto Highfield Rd, turn right onto Mansfield Ave, turn right onto Chesterfield Dr, the destination will be on the left. 
BROADBAND AND MOBILE PHONE COVERAGE  Broadband- To check the broadband coverage available in the area go to
https://checker.ofcom.org.uk/en-gb/broadband-coverage
Mobile Phone- To check mobile phone coverage in the area go to
https://checker.ofcom.org.uk/en-gb/mobile-coverage
 
STAMP DUTY LAND TAX (SDLT)  On all property and land transactions, the buyer needs to be aware that there is potentially a stamp duty land tax amount to pay on their completed purchase.
The link below will take you to the government online calculator to assist you with working out the cost for this tax and if it is applicable to you.
www.tax.service.gov.uk/calculate-stamp-duty-land-tax/!/intro 
DIGITAL MARKETS, COMPETITION AND CONSUMER ACT 2024 (DMCC)  Your Ipswich Ltd has not tested any electrical items, appliances, plumbing or heating systems and therefore cannot testify that they are operational. These particulars are set out as a general outline only for the guidance of potential purchasers or tenants and do not constitute an offer or contract. Photographs are not necessarily comprehensive or current and all descriptions, dimensions, references to condition necessary permissions for use and occupation and other details are given in good faith and believed to be correct but should not be relied upon as statements of, or representations of, fact. Intending purchasers or tenants must satisfy themselves by inspection or otherwise as to the correctness of each of them. We have taken steps to comply with the Digital Markets, Competition and Consumer Act 2024 (DMCC), which require both the seller and their agent to disclose anything, within their knowledge, that would affect the buying decision of the average consumer. If there are any aspects of this property that you wish to clarify before arranging an appointment to view or considering an offer to purchase, please contact us and we will make every effort to be of assistance.
Your Ipswich Ltd, as part of their service to both vendor and purchaser, offer assistance to arrange mortgage and insurance policies, legal services, energy performance certificates, and the valuation and sale of any property relating to any purchaser connected to this transaction. Your Ipswich Ltd confirms they will not prefer one purchaser above another solely because he/she has agreed to accept the offer of any other service from Your Ipswich Ltd. Referral commission (where received) is in the range of £60 to £200. 
Property Ref: 58007_100138005130
3 Bedroom Semi-Detached House | Guide Price £235,000
CHAIN FREE - A well presented three bedroom semi-detached family home with detached garage, located to the popular North...
Bramford Lane, Ipswich, Suffolk
3 Bedroom Semi-Detached House | Guide Price £235,000
CHAIN FREE - A rarely available and cherished three bedroom semi-detached family home, located in the popular West of Ip...
3 Bedroom End of Terrace House | £230,000
We are delighted to be offering for sale this spacious 3 bedroom end terraced property located to the West of Ipswich wi...
3 Bedroom Semi-Detached House | Guide Price £237,500
CHAIN FREE - A much improved three bedroom semi-detached family home of decent proportions, favourably positioned in a c...
Burdock Crescent, Henley Gate, Ipswich
2 Bedroom Terraced House | Offers in excess of £240,000
A stylish and well proportioned two double bedroom modern attached home with numerous superior upgrades, located in the...
3 Bedroom Semi-Detached House | £240,000
NO ONWARD CHAIN - An ideal opportunity to purchase this 3 bedroom semi-detached house requiring some updating located to...
 
                            Your Ipswich (Ipswich)
125 Dale Hall Lane, Ipswich, Suffolk, IP1 4LS
Use our short form to request a valuation of your property.
Request a Valuation