Ranelagh Road, Ipswich, Suffolk

Guide Price
£185,000
SSTC
This property listing is now SSTC

2 Bedroom Terraced House for sale in Ipswich

2 1
  • LIVING/WORKING 2 BEDROOM PROPERTY
  • NO ONWARD CHAIN
  • GROUND FLOOR WORK SPACE + CLOAKROOM & KITCHEN
  • BATHROOM ON FIRST FLOOR
  • OPEN PLAN LOUNGE/DINING/KITCHEN
  • DOUBLE GLAZED THROUGHOUT
  • GAS CENTRAL HEATING
  • 2 ALLOCATED PARKING SPACES
  • CLOSE TO RAIL STATION, T/C AND VIBRANT WATERFRONT
  • WALKING DISTANCE TO SCHOOLS AND BUS SERVICE

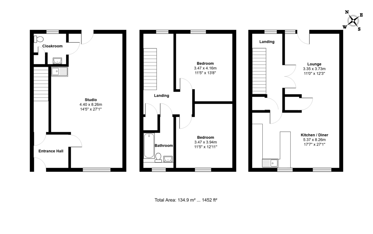
SUMMARY CHAIN FREE - An ideal opportunity to purchase this living/working freehold property, located just a short walk from Ipswich railway station for connection to London Liverpool Street, town centre and vibrant waterfront, schools and bus service are also close by. Arranged over 3 floors with work/living space on the ground floor with kitchen facilities, G/F cloakroom, stairs to first floor leading to 2 double bedrooms and bathroom. Further stairs lead to the second floor leading to open plan kitchen/dining/living room. Further benefits include gas central heating, wood framed double glazed windows, 2 allocated parking spaces bike storage area and communal gardens. Ideally suited for FTB or creating a business from home. 

ENTRANCE HALL Tiled flooring, stairs to first floor, door into living work space. 

STUDIO/ADDITIONAL LIVING SPACE 27' 1" x 14' 5" (8.25m x 4.39m) Tiled flooring, double glazed window to front and rear aspect, 2 radiators, kitchen space with stainless steel sink & drainer with mixer tap, door to rear communal gardens, door to cloakroom. 

CLOAKROOM Low level WC, wash hand basin, radiator, double glazed window to rear aspect, storage cupboard under stairs. 

STAIRS Leading to first floor, vinyl flooring, radiator, double glazed window to rear aspect over looking communal gardens, storage cupboard, doors to bedrooms and bathroom. 

BEDROOM 1 13' 8" x 11' 5" (4.17m x 3.48m) Floor tiles, radiator, double glazed window to rear aspect, recess with hanging space. 

BEDROOM 2 12' 11" x 11' 5" (3.94m x 3.48m) Floor tiles, radiator, double glazed window to front aspect, recess with hanging space. 

BATHROOM Comprising low level WC, wash hand basin and bath with shower over, double glazed window to front aspect, radiator, extractor fan. 

STAIRS TO SECOND FLOOR Vinyl floor tiles on landing, radiator, double glazed window to rear aspect overlooking communal gardens to rear, double doors into lounge area, storage cupboard, door into kitchen/dining. 

KITCHEN/DINING AREA 27' 1" x 17' 7" (8.25m x 5.36m) Matching wall & base units with roll edge worktops, 4 ring gas hob with extractor over, electric oven, plumbing for washing machine, space for fridge/freezer, vinyl floor covering, double glazed window to front aspect, wall mounted gas boiler. dining area Carpeted flooring, double glazed window to front aspect, radiator, opening to lounge area. 

LOUNGE AREA 12' 3" x 11' (3.73m x 3.35m) Carpeted flooring, radiator, double door to Juliette balcony with views over communal gardens, double doors out to landing. 

STUDIO/ADDITIONAL LIVING SPACE Versatile studio for various uses including, hairdressers, barbers, nail salon, home office, online web shop, massage, Airbnb, or separate rental unit (subject to the necessary planning permissions). 

BIKE STORE Locked under cover bike and tripper storage. 

ALLOCATED PARKING 2 - Allocated parking spaces in front of property. 

MAINTENACE CHARGE £27.00 Per Month for maintaining parking, communal gardens, recycling and bike stores. 

COUNCIL Ipswich Borough Council
Council Tax Band (B) £1,919.75 

SERVICES We understand all mains services are connected. 

NEAREST SCHOOLS Ranelagh Road Primary School & Chantry Academy. 

DIGITAL MARKETS, COMPETITION AND CONSUMER ACT 2024 (DMCC) Your Ipswich Ltd has not tested any electrical items, appliances, plumbing or heating systems and therefore cannot testify that they are operational. These particulars are set out as a general outline only for the guidance of potential purchasers or tenants and do not constitute an offer or contract. Photographs are not necessarily comprehensive or current and all descriptions, dimensions, references to condition necessary permissions for use and occupation and other details are given in good faith and believed to be correct but should not be relied upon as statements of, or representations of, fact. Intending purchasers or tenants must satisfy themselves by inspection or otherwise as to the correctness of each of them. We have taken steps to comply with the Digital Markets, Competition and Consumer Act 2024 (DMCC), which require both the seller and their agent to disclose anything, within their knowledge, that would affect the buying decision of the average consumer. If there are any aspects of this property that you wish to clarify before arranging an appointment to view or considering an offer to purchase, please contact us and we will make every effort to be of assistance.

Your Ipswich Ltd, as part of their service to both vendor and purchaser, offer assistance to arrange mortgage and insurance policies, legal services, energy performance certificates, and the valuation and sale of any property relating to any purchaser connected to this transaction. Your Ipswich Ltd confirms they will not prefer one purchaser above another solely because he/she has agreed to accept the offer of any other service from Your Ipswich Ltd. Referral commission (where received) is in the range of £60 to £200.

 

AGENT’S STAMP DUTY NOTE Please be advised that as of the 1st of April 2025, the government is changing the stamp duty and land tax structure on all residential purchases, which may affect the cost of stamp duty and land tax for your property purchase.
As of the 1st of April 2025, stamp duty and land tax will become due on all residential purchases of £125,000 or more. First time buyers will be required to pay stamp duty and land tax on all purchases of £300,000 or more.
If you are purchasing a second home, you will also be required to pay an additional 5% stamp duty and land tax.
 

BROADBAND & MOBILE PHONE COVERAGE Broadband- To check the broadband coverage available in the area go to
https://checker.ofcom.org.uk/en-gb/broadband-coverage

Mobile Phone- To check mobile phone coverage in the area go to
https://checker.ofcom.org.uk/en-gb/mobile-coverage
 

Property Ref: 100138005464

Share:

Similar Properties

Spring Road, Ipswich

2 Bedroom Terraced House | Offers in excess of £185,000

CHAIN FREE - A charming, over-passage cottage style attached home of larger proportions located to the favourite East of...

Churchmans House, Portman Road, Ipswich, Suffolk

2 Bedroom Apartment | £180,000

NO ONWARD CHAIN - Loft style living in the heart of Ipswich, this 2 bedroom 2nd floor apartment is currently being used...

Camden Road, Ipswich

3 Bedroom Terraced House | Guide Price £180,000

CHAIN FREE - A three bedroom attached house located to the favourite East side of Ipswich, convenient to the popular Bri...

Blackheath Avenue, Ipswich, Suffolk

2 Bedroom Apartment | Guide Price £190,000

A spacious, light and airy modern apartment offering a large open plan living space comprising the contemporary gloss ki...

Bramford Road, Ipswich, Suffolk

3 Bedroom End of Terrace House | Guide Price £190,000

CHAIN FREE - A three double bedroom Edwardian attached home of larger proportions with garage and parking to the popular...

Kitchener Road, Ipswich

3 Bedroom Terraced House | Guide Price £195,000

CHAIN FREE - A well maintained three bedroom Edwardian attached home of larger proportions, conveniently located to the...

Your Ipswich (Ipswich)

125 Dale Hall Lane, Ipswich, Suffolk, IP1 4LS

01473 289333

How much is your home worth?

Use our short form to request a valuation of your property.

Request a Valuation

Mortgage Calculator

Amount Borrowed: £
Total Amount Repayable: £
Total Monthly Payment: £
©2026 The Guild of Property Professionals. All rights reserved. Terms and Conditions | Privacy Policy | Cookie Policy | Complaints Policy | Members Login
The Guild of Property Professionals Trading Address: 121 Park Lane, London W1K 7AG. GPEA Limited. Registered in England & Wales.  Company No: 02819824.  Registered Office Address: 2 St. Stephen's Court, St. Stephen's Road, Bournemouth, Dorset, England, BH2 6LA.  VAT Registration No: 576 8795 61
Book a Property Valuation Update Cookies Preferences