Hill Street, Jarrow, Tyne and Wear, NE32

Offers in excess of
£140,000

2 Bedroom Terraced House for sale in Jarrow

1 2 1
  • Terraced House
  • Two Bedrooms
  • Beautifully Presented
  • No Upper Chain
  • Great Location
  • Excellent first Time Buy

This beautifully maintained two-bedroom terraced property is perfect for first-time buyers or anyone seeking a ready-to-move-into home. Offered with no upper chain, this charming home offers comfort and convenience in a great location.
Step inside to find a bright and welcoming reception room with tasteful, neutral décor, an ideal space to relax or entertain. The well-appointed kitchen provides ample storage and workspace, while the modern bathroom features a clean, contemporary finish to meet your everyday needs.
Upstairs, two generously sized bedrooms benefit from excellent natural light and versatile layouts – perfect for double beds and additional furnishings.
In an excellent location within walking distance to Jarrow town centre with supermarkets, shops and Jarrow Metro with links to Newcastle and South Shields.
Call today to arrange your appointment to view!
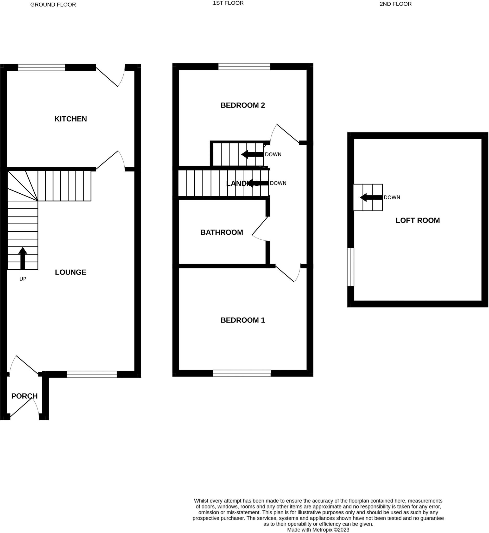
Entrance Porch With radiator, tiled floor, UPVC double glazed door.
Lounge (5.41m x 3.54m)With stairs to first floor landing, radiator, understairs storage cupboard, laminate floor, UPVC double glazed window.
Kitchen (3.51m x 2.68m)With range of wall and floor units with complementary work surfaces, hob, extractor hood, oven, sink with mixer tap, integrated dishwasher, integrated washing machine, integrated fridge/ freezer, tiled floor, led lighting, radiator, UPVC double glazed window, UPVC double glazed door to rear.
LandingWith stairs leading to loft room.
Bedroom Two (3.55m x 1.86m)With UPVC double glazed window, radiator, laminate wood flooring.
Bathroom (2.44m x 1.67m)White three piece suite with panelled bath with overhead shower, low level wc, vanity sink unit, spotlights to ceiling, 
Bedroom One (2.52m x 3.56m)With UPVC double glazed window, radiator,laminate wood floor.
Loft Room (2.52m x 3.56m)With velux window, radiator.
Front External Forecourt garden with low maintenance pebbled area.
Rear External Fully Decked with built in seating
Material Information• Tenure - Freehold• Length of lease - N/A• Annual ground rent amount - N/A• Ground rent review period - N/A• Annual service charge amount - N/A• Service charge review period - N/A• Council tax band - B• EPC - C

Important Information

  • This is a Freehold property.
  • This Council Tax band for this property is: A

Property Ref: 800_452758

Share:

Similar Properties

Douglass Close, Hebburn

2 Bedroom End of Terrace House | Offers in region of £140,000

Offered with no upper chain, this lovely two bedroom end of terrace home in Hebburn is perfect for first-time buyers or...

South Parade, Gateshead, Tyne and Wear, NE10

3 Bedroom Terraced House | Offers in region of £140,000

Find your next home in this terraced house located on South Parade, Gateshead. Featuring three generously sized bedrooms...

The Cornfields, Hebburn, Tyne and Wear, NE31

2 Bedroom Terraced House | Offers in region of £139,950

Nestled within the sought-after area of The Cornfields in Hebburn, this two-bedroom terraced house presents a great oppo...

Tyne View, Hebburn, Tyne and Wear, NE31

2 Bedroom Semi-Detached House | Offers in region of £145,000

Don't miss the chance to own this beautiful semi-detached house with a driveway, rear garden, and access to scenic river...

Jarrow, Tyne And Wear, NE32

3 Bedroom Semi-Detached House | Offers in region of £145,000

Three bedroom semi-detached property, perfect for first-time buyers or young families. This well-proportioned home boast...

Ridgeway, Gateshead, Tyne and Wear, NE10

3 Bedroom Semi-Detached House | Offers in region of £150,000

Welcome to this inviting semi-detached house in Ridgeway, Gateshead. With its spacious layout, lovely features, and idea...

Chase Holmes (Hebburn)

73 Station Road, Hebburn, North East England, NE31 1LA

0191 4245555

How much is your home worth?

Use our short form to request a valuation of your property.

Request a Valuation

Mortgage Calculator

Amount Borrowed: £
Total Amount Repayable: £
Total Monthly Payment: £
©2025 The Guild of Property Professionals. All rights reserved. Terms and Conditions | Privacy Policy | Cookie Policy | Complaints Policy | Members Login
The Guild of Property Professionals Trading Address: 121 Park Lane, London W1K 7AG. GPEA Limited. Registered in England & Wales.  Company No: 02819824.  Registered Office Address: 2 St. Stephen's Court, St. Stephen's Road, Bournemouth, Dorset, England, BH2 6LA.  VAT Registration No: 576 8795 61
Book a Property Valuation Update Cookies Preferences