Upper Wood Lane, Kingswear

Guide Price
£975,000

4 Bedroom Detached House for sale in Kingswear

2 4 3
  • Lovely Detached House
  • Peaceful Elevated Position
  • Immaculately Presented Throughout
  • Superb River & Countryside Views
  • 4 Double Bedrooms
  • Home Office Potential
  • 3 Bathrooms
  • Pretty Terraced Gardens
  • Double Garage & Further Parking
  • Mains Electricity Water & Drainage

Woodside is an immaculately presented detached home, with spectacular views across the River Dart with Dartmouth beyond and the beautiful surrounding countryside.

Nestled in a wonderful quiet position on Upper Wood Lane, the property has a large garage with further parking in front and a pretty mature terraced garden.

The flexible accommodation is spacious throughout with well-proportioned light-filled rooms, all designed to maximise the position and stunning vista enjoyed from much of the house.

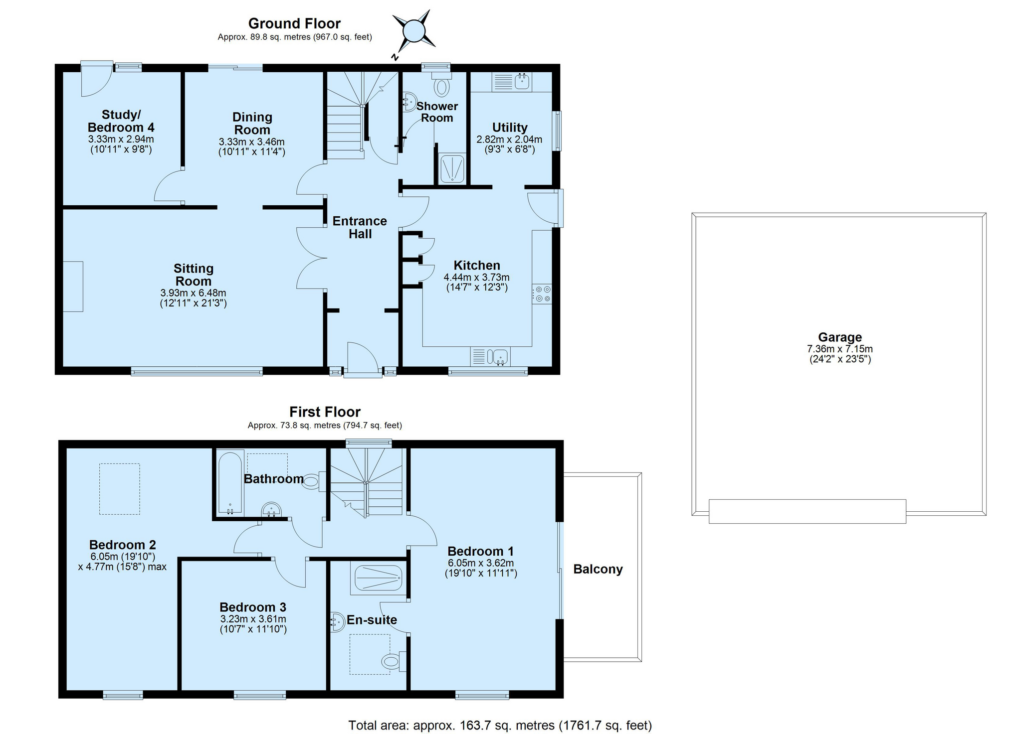
The accommodation is arranged over two floors comprising on the ground floor of a large welcoming entrance hall, a stunning sitting room with wood burning stove and large picture window, a dining room, the ground floor bedroom 4 which is currently used as study, a shower room and the kitchen/breakfast room with a most useful utility room off. The kitchen is well fitted and equipped with an excellent range of wall and base cupboards and integrated appliances. On the first floor there are three double bedrooms. The two guest rooms share a family bathroom and the main bedroom has an en suite shower room and double doors out to a wonderful balcony from where you can sit with your morning coffee and appreciate the gorgeous surroundings.

Outside the terraced gardens are well designed for both ease of maintenance and to be able to enjoy the outdoor living spaces to the full. The garden is bursting with mature planting, there is a good sized lawned area and a paved terrace perfect for al fresco dining. Accessed from the road is an excellent large garage with additional parking to the front.

Kingswear sits on the east bank of the River Dart opposite the historic port of Dartmouth and home to the Britannia Royal Naval College. The village is popular with the sailing community and offers excellent marina facilities, deep-water moorings, local shops and the Royal Dart Yacht Club. A seasonal steam train service operates to Torbay and the village is linked to Dartmouth by passenger and car ferry services operating continuously throughout the year. Churston Golf course and sandy beaches are within four miles.

Across the River Dart is Dartmouth, a beautiful waterside town, particularly well known as a sailing centre with excellent facilities for yachtsmen and its famous annual Royal Regatta. The town provides a good range of shops, restaurants and galleries and is surrounded by stunning countryside.

Tenure
Freehold

Services
Mains electricity water and drainage. Air source heat pump heating

Viewing
Strictly by appointment with the Sole Agents, Marchand Petit, Dartmouth. Telephone: 01803 839190

Fixtures & Fittings
All items in the written text of these sales particulars are included in the sale. Other items are expressly excluded, regardless of inclusion in any photograph. Purchasers must satisfy themselves that any equipment included in the sale of the property is in satisfactory working order

Important Information

  • This is a Freehold property.

Property Ref: 1357_TSJ825322

Share:

Similar Properties

The Hoe, Lockyer Street

5 Bedroom Terraced House | Guide Price £975,000

Occupying a prestigious position on Plymouth Hoe, this exquisite Grade II listed residence is moments from the waterfron...

Furzehill Road, Heybrook Bay

5 Bedroom Not Specified | Guide Price £975,000

This is a rare offering: a beautifully presented coastal home with exceptional sea views, generous accommodation, and th...

Ford, Kingsbridge, Devon, TQ7

4 Bedroom Barn Conversion | Guide Price £950,000

A beautifully presented semi-detached barn conversion in a picturesque setting. 4-bedrooms, Oak framed garden room, gara...

Bittaford, Ivybridge

6 Bedroom Detached House | Guide Price £990,000

A substantial contemporary home arranged over three imaginative levels, offering six double bedrooms, outstanding open-p...

Loring Road, Salcombe

4 Bedroom Detached House | Guide Price £995,000

Charming 4 bedroom detached house with off street parking. Boasting stunning water, coastal, and country views. A perfec...

Ware Hill, Ugborough

5 Bedroom Detached House | Guide Price £995,000

An exquisite Grade II Listed detached barn conversion, renovated and upgraded to an exceptional standard by the current...

Marchand Petit (Kingsbridge)

94 Fore Street, Kingsbridge, Devon, TQ7 1PP

01548 857 588

How much is your home worth?

Use our short form to request a valuation of your property.

Request a Valuation

Mortgage Calculator

Amount Borrowed: £
Total Amount Repayable: £
Total Monthly Payment: £
©2025 The Guild of Property Professionals. All rights reserved. Terms and Conditions | Privacy Policy | Cookie Policy | Complaints Policy | Members Login
The Guild of Property Professionals Trading Address: 121 Park Lane, London W1K 7AG. GPEA Limited. Registered in England & Wales.  Company No: 02819824.  Registered Office Address: 2 St. Stephen's Court, St. Stephen's Road, Bournemouth, Dorset, England, BH2 6LA.  VAT Registration No: 576 8795 61
Book a Property Valuation Update Cookies Preferences