South Petherwin, Launceston - Cornwall

£1,100,000

4 Bedroom Detached House for sale in Launceston

4 3
  • Victorian Farmhouse
  • 4 Bedrooms
  • 3 Reception Rooms
  • Barns with planning consent
  • 33 Acres
  • Pasture Paddocks
  • Woodland
  • Pond
  • Wildlife Haven

Quietly located 33 acre smallholding. Well presented Victorian 4 bedroom, 3 reception room farmhouse providing comfortable and flexible family living in lawned and landscaped gardens. Extensive traditional barns with consent. Pasture paddocks, woodland and stream. Far reaching countryside views.

Burdown Farm is situated in a quiet rural hamlet of Tregada in the parish of South Petherwin. Lezant and Tre Pol Pen farm shop, caf� and restaurant are 1 mile to the southeast. The A30 and Launceston are 3 miles to the north offering day to day facilities, individual shops, supermarkets, recreational facilities, private and state schools. The coastal resort of Bude is 28 miles to the northwest and Tavistock is 13 miles to the southeast. Exeter to the east and Plymouth to the south, offer a more comprehensive range of educational, cultural, recreational and shopping facilities.

Burdown Farm is a quietly located 33 acre smallholding with a well presented Victorian 4 bedroom, 3 reception room farmhouse providing comfortable and flexible family living in lawned and landscaped gardens. There are extensive traditional barns with consent for a main dwelling and attached annexe. Pasture paddocks, woodland and stream. Far reaching countryside views.

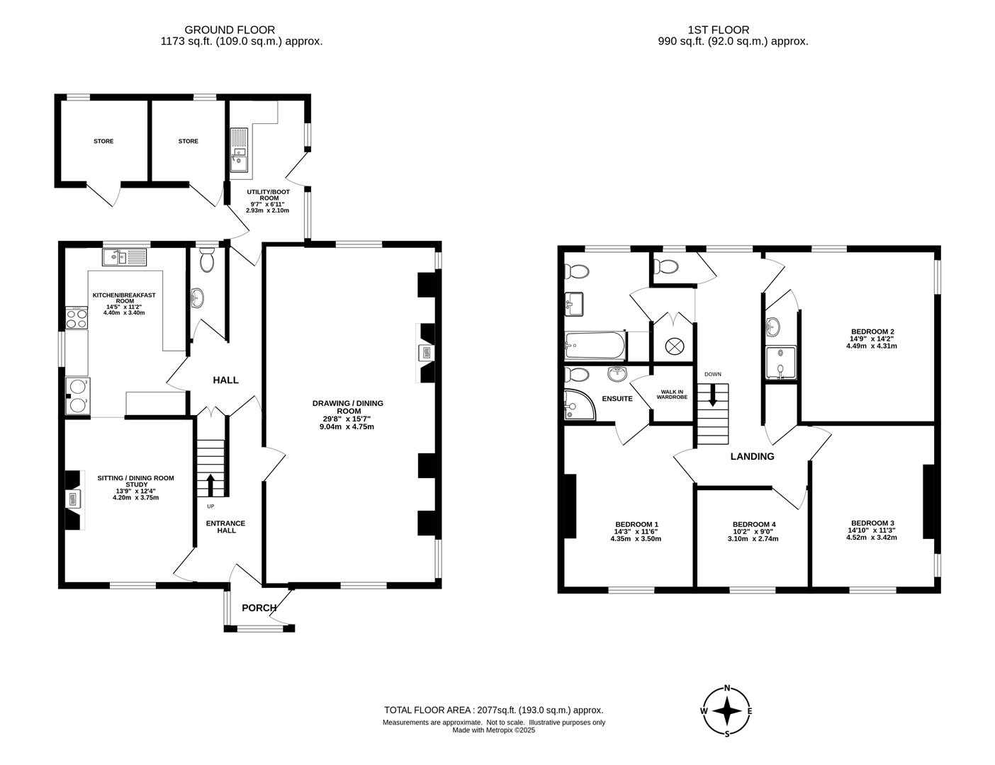
Burdown farmhouse is a substantial, characterful Victoria country residence which has retained many of its original features including open fire places, slate flagstone floors with the addition of oil fired central heating and partial timber framed double glazed windows. The well presented accommodation provides comfortable and flexible family living and briefly comprises, Porch; double aspect with slate shelves, Entrance Hall; large, bright and airy, staircase rises to the first floor. Drawing / dining room; a triple aspect room with windows to the rear, side and front overlooking the garden and surrounding farmland. Slate flagstone floor, open fireplace. Exposed ceiling beam, sitting room a double aspect room overlooking the front terrace, garden and surrounding countryside, fireplace with Morso woodburning stove, exposed wooden floor. Kitchen / Breakfast room; a double aspect room, fitted wall and base units under granite effect roll top worksurfaces, oil fired Rayburn, electric cooker with extractor hood above, inset 1 ? bowl stainless steel sink and drainer, space and plumbing for washing machine, dishwasher, fridge and freezer, slate flagstone floor. Inner Hall; understairs storage. Cloakroom; w/c, wash basin, slate flagstone floor, window to the rear. Utility / Boot Room; fitted base units with black granite effect roll top worksurface, 1 ? bowl stainless steel sink and drainer, slate flagstone floor, windows overlooking the front terrace and door to the front and rear. On the First Floor; light and airy landing, with window to the rear overlooking the farmland, airing cupboard with water cylinder and fitted shelves. Bedroom 2; a double aspect room with views overlooking the land and surrounding countryside. En suite; shower, heated towel rail, wash basin. Cloakroom; w/c, window to the rear. Family Bathroom; bath with shower above, wash basin, w/c, heated towel rail, fitted storage shelves, window to the rear. Bedroom 1; window to the front overlooking the terrace garden and surrounding countryside, en suite shower enclosure, w/c, wash basin, heated towel rail, walk in wardrobe / store room. Bedroom 4; a double room, window to the front. Bedroom 3; a double aspect room overlooking the garden and surrounding countryside.

Outside - Burdown Farm is accessed from the road over a long drive which is flanked on either side by tree lined hedges and the pasture paddocks opening to a gravel parking area at the side of the house. Along the front, southerly aspect of the house is a stone paved patio which is ideal for alfresco dining and entertaining whilst enjoying the views over the surrounding countryside. At the side, is a lawned garden with low level box hedging and interspersed with a variety of evergreen and flowering shrubs leading to the middle lawned terrace with well established low level beech hedging. Granite steps descend to the lower lawn terrace which is bordered by mature deciduous and evergreen trees. At the rear is a gravel seating area bordered by well stocked flowerbed borders. From the rear courtyard a gate opens into the walled garden with ornamental flower and vegetable beds, fruit canes and bushes, an orchard with apple and plumb trees and two storage buildings to the rear of the house.

Buildings - The extensive complex of traditional stone barns has planning consent granted for conversion to residential dwelling and an annexe. The barns are currently used for storage, stabling with the original Victorian stable stalls / looseboxes and cobble tiled floors. The barns are of traditional stone construction with brick quoins and opening reveals under local slate roofs with decorative terracotta ridges. The barns are arranged over two floors and extend to approximately 735.23sq/m (7915sq/ft).

Outside the upper level is a large, enclosed courtyard which will provide garden and parking area and on the lower level is a large, enclosed area which is currently grassed over but has the original cobbles below.

The Land - The farm extends to approximately 33 acres which is divided into 9 easily manageable fields. A small area of deciduous woodland with a natural stream which runs along the southern boundary. The woodland and wildlife pond provide a haven for many difference species of wildlife including Deer, Foxes, Squirrels and Rabbits to name but a few. The land is accessed off the main access drive and is enclosed within traditional treelined Cornish bank hedges with post and wire fencing.

Services & Information - Water - Mains
Drainage - Septic Tank
Electricity - Mains
Heating - Oil fired central heating and woodburning stoves
Telephone & Broadband - Open Reach Connection checker.ofcom.org.uk
Mobile Availability - checker.ofcom.org.uk
Council Tax Currently Band - E
EPC - F37
Construction - Stone

Local Authority - Cornwall Council, County Hall, Treyew Road, Truro, Cornwall, TR1 3AY
0300 1234 100

Tenure - The property is offered for sale freehold with vacant possession on completion.

Viewing Arrangements - Strictly by appointment with D. R. Kivell Country Property 01822 810810. All viewings are to be accompanied without exception.

Agent's Notes - None of the services or appliances, plumbing, heating or electrical installations have been tested by the selling agent. Any maps used on the details are to assist identification of the property only and are not an indication of the actual surroundings, which may have changed since the map was printed. None of the statements contained in these particulars as to this property are to be relied on as statements or representations of fact. There are numerous power points throughout the property although not individually listed. All figures, measurements, floor plans and maps are for guidance purposes only. They are prepared and issued in good faith and are intended to give a fair description of the property but do not constitute any part of any offer or contract. The property is sold subject to and with the benefit of all outgoings, rights of way, easements and wayleaves there may be, whether mentioned in these general remarks and stipulations or particulars of sale or not.

Property Ref: 9200_34167250

Share:

Similar Properties

Thornbury, Holsworthy - Devon

4 Bedroom Detached House | £1,100,000

Impressive and very well presented 4 bedroom house, 3 popular holiday letting cottages, 3 fishing / wildlife lakes in 13...

Hatt, Saltash - Cornwall

5 Bedroom Country House | £1,000,000

The Owner said - "Extraordinary Country Property Agent, I am an extremely happy, satisfied client of D.R. Kivell Country...

Peter Tavy , Tavistock - Devon

5 Bedroom Detached House | £1,000,000

In a magnificent location within the Dartmoor National Park with unspoilt far reaching views. 5 bedroom, 4 reception roo...

North Tamerton, Cornwall

5 Bedroom Detached House | £1,200,000

Superb quietly located country property, boasting a most impressive 5 bedroom barn conversion, modern luxury 2 bedroom h...

Bray Shop, Callington - Cornwall

4 Bedroom Detached House | £1,200,000

Secluded 20 acre residential farm, with a character 4 bedroom house, impressive courtyard of traditional barns with pote...

Doddiscombsleigh, Exeter - Devon

4 Bedroom Equestrian | £1,200,000

The Owners said - "Outstanding professional service from D. R. Kivell country property agent. After deciding to sell our...

D. R. Kivell Country Property (Tavistock)

Tavistock, Devon, PL19 0NW

01822 810810

How much is your home worth?

Use our short form to request a valuation of your property.

Request a Valuation

Mortgage Calculator

Amount Borrowed: £
Total Amount Repayable: £
Total Monthly Payment: £
©2026 The Guild of Property Professionals. All rights reserved. Terms and Conditions | Privacy Policy | Cookie Policy | Complaints Policy | Members Login
The Guild of Property Professionals Trading Address: 121 Park Lane, London W1K 7AG. GPEA Limited. Registered in England & Wales.  Company No: 02819824.  Registered Office Address: 2 St. Stephen's Court, St. Stephen's Road, Bournemouth, Dorset, England, BH2 6LA.  VAT Registration No: 576 8795 61
Book a Property Valuation Update Cookies Preferences