Primley Park Crescent, Leeds

£750,000

4 Bedroom Detached House for sale in Leeds

3 4 1
  • 4-BED DETACHED HOUSE SPANNING OVER 2500 SQFT
  • GREAT OPPORTUNITY TO PUT YOUR OWN STAMP ON THE HOUSE
  • PROMINENT POSITION
  • LARGE GARAGE
  • THREE RECEPTION ROOMS
  • ALL DOUBLE BEDROOMS
  • EPC - D
  • COUNCIL TAX BAND - G

Nestled in the desirable area of Primley Park Crescent, Leeds, this spacious four-bedroom detached family home offers a wonderful opportunity for those seeking a property with great potential. Positioned on the turn of the crescent, the house benefits from a delightful open aspect to the front, creating a welcoming and light-filled environment.

Upon entering, you will find a large hallway, which leads to two generously sized reception rooms, perfect for family gatherings or entertaining guests and a spacious, eat-in kitchen. There is a further large reception room currently used as a home office. The layout provides ample space for both relaxation and socialising, making it an ideal setting for family life. The property boasts four well-proportioned bedrooms, ensuring that there is plenty of room for everyone.

While the house is already spacious, it presents a fantastic opportunity for modernisation and extension, allowing you to tailor the space to your personal taste and requirements. Whether you envision a contemporary kitchen, a luxurious bathroom, or additional living space, the possibilities are endless.

Furthermore, this property is sold chain free, making the purchasing process smoother and more straightforward. With its prime location and potential for enhancement, this detached house is a rare find in the market. Do not miss the chance to make this house your home in the vibrant city of Leeds.

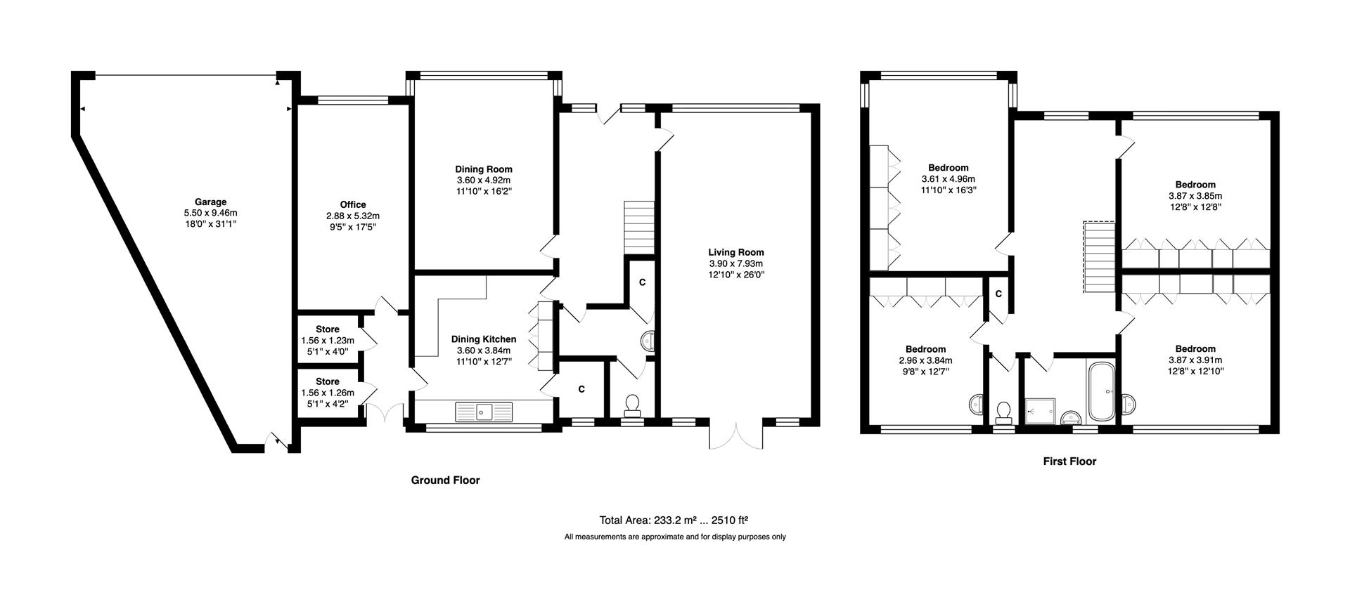
Entrance - Entering the property you are welcomed into the spacious entrance hallway which offers access to the living room, dining room, kitchen and to the cloakroom.

Lounge - Large formal lounge spans 26 feet in length and offers an abundance of space for seating making it ideal for gatherings. French doors lead out to the rear patio and garden.

Dining Room - Second spacious reception room is well positioned to offer easy access to the kitchen. Large window floods the room with natural light.

Kitchen - Generous sized kitchen overlooks the rear garden and offers space for a more informal dining table. Large pantry cupboard provides extra storage space. The kitchen leads through to a lobby area with two storage rooms, one housing the boiler and through to the third reception room currently used as an office.

Office - A large reception room currently used as a home office that could be used alternatively as a music room, games room or home cinema.

Cloakroom - Accessed off the hallway providing storage for coats and shoes, and leading to the w/c.

Landing - Open landing is bright and airy thanks to the large window to the front elevation of the property. The landing offers access to all four bedrooms and the bathroom.

Bedroom 1 - This large primary bedroom boasts a large bay window to the front elevation of the property flooding the room with natural light. Fitted storage runs the length of the room and space is offered for additional bedroom furniture such as drawers and dressing table.

Bedroom 2 - Second double bedroom again with fitted storage and built in dressing table, overlooks the rear garden of the property. The bedroom also has its own sink.

Bedroom 3 - Third double bedroom, with fitted wardrobes. This bedroom overlooks the rear garden and is complete with its own sink. This rooms provides access to the loft via hatch and ladder.

Bedroom 4 - Fourth double bedroom complete with fitted storage.

Bathroom - Comprising bath and sink with separate toilet.

Garage - Large garage with electric up and over door.

External - The front of the property is very open with a large driveway and well presented front garden. To the rear is a patio area and lawned garden.

Property Ref: 478966_34438752

Share:

Similar Properties

Wigton Gate, Alwoodley, Leeds

4 Bedroom Detached House | Offers Over £725,000

*** APPROXIMATELY 2500 SQFT *** FOUR BEDROOM DETACHED HOUSE *** LOCATED IN A GATED DEVELOPMENT IN ALWOODLEY *** Stoneacr...

Woodland Lane, Chapel Allerton LS7 3QG

Commercial Property | Offers Over £695,000

FREEHOLD SALE - VACANT POSSESSION3 level property offering 4,630 plus sq ft with substantial car park located on Woodlan...

High Ash Crescent, Leeds

4 Bedroom Detached House | £675,000

*** STUNNING FAMILY HOUSE IN SOUGHT AFTER LOCATION *** 4-BED 2 BATH *** LARGE FAMILY ROOM WITH ACCESS TO REAR GARDEN ***...

Wike Ridge Avenue, Leeds

5 Bedroom Detached House | £775,000

*** STUNNING 5-BED DETACHED HOME IN THE HEART OF ALWOODLEY *** SHOW STOPPING OPEN PLAN KITCHEN/LIVING/DINER *** PRIMARY...

Harefield, Stair Foot Lane, Leeds

4 Bedroom Detached House | £800,000

*** ONE OF THE MOST UNIQUE HOUSES IN NORTH LEEDS *** 30 SECONDS FROM KING LANE WITH SOLELY RURAL OUTLOOKS *** IMMACULATE...

Detached House with Building Plot, LS17

4 Bedroom Not Specified | £1,050,000

*** VERY RARE OPPORTUNITY TO PURCHASE A 4-BED DETACHED HOME WITH DEVELOPMENT PLOT ON ITS OWN TITLE *** Stoneacre Propert...

Stoneacre Properties (Leeds)

Chapel Allerton, Leeds, West Yorkshire, LS7 4NZ

0113 2370999

How much is your home worth?

Use our short form to request a valuation of your property.

Request a Valuation

Mortgage Calculator

Amount Borrowed: £
Total Amount Repayable: £
Total Monthly Payment: £
©2026 The Guild of Property Professionals. All rights reserved. Terms and Conditions | Privacy Policy | Cookie Policy | Complaints Policy | Members Login
The Guild of Property Professionals Trading Address: 121 Park Lane, London W1K 7AG. GPEA Limited. Registered in England & Wales.  Company No: 02819824.  Registered Office Address: 2 St. Stephen's Court, St. Stephen's Road, Bournemouth, Dorset, England, BH2 6LA.  VAT Registration No: 576 8795 61
Book a Property Valuation Update Cookies Preferences