Barn conversion with annexe, Leedstown

Guide Price
£599,950

6 Bedroom Barn Conversion for sale in Leedstown

2 6 3
  • 3 BEDROOM BARN CONVERSION IN PEACEFUL VILLAGE SETTING
  • BEAUTIFULLY RENOVATED TO A HIGH STANDARD THROUGHOUT
  • SPACIOUS OPEN-PLAN LIVING & DINING AREAS
  • SELF-CONTAINED 3 BEDROOM ANNEXE IDEAL FOR FAMILY OR RENTAL INCOME
  • PRIVATE GROUNDS WITH AMPLE OUTDOOR SPACE
  • OFF ROAD PARKING
  • EPC- 72- C
  • COUNCIL TAX BAND- E
  • FREEHOLD TENURE

Set within a peaceful village location, this stunning 3 bedroom barn conversion seamlessly blends character features with stylish modern living. Recently renovated to a high standard, the property offers spacious and light-filled interiors, retaining original charm while incorporating contemporary finishes throughout.

The main residence features three generously sized bedrooms, a beautifully appointed kitchen with modern appliances, and open-plan living and dining areas ideal for family life or entertaining.

Within the same grounds, a self contained 3-bedroom annexe offering flexible living options for extended family, guests, or potential rental income. The annexe mirrors the main home's modern comforts and quality finish, providing a private yet connected space within the property.

Externally, the property enjoys a private setting with ample outdoor space, ideal for relaxation or entertaining. The village location offers a true sense of community, while remaining within easy reach of nearby towns and transport links.

Guide Price - £599,950 -

Location - Situated on the outskirts of the centrally located and convenient village of Leedstown. To the North can be accessed the A30 as well as the major towns of Camborne and Redruth, to the East is the nearby market town of Helston widely regarded as the gateway to the Lizard Peninsula. A southerly direction will take you through nearby, Townshend, Marazion and Penzance, where your journey could end at lovely Land's End. Whilst to the west lies Hayle, St Ives and the spectacular North Coast famed for it's surf conditions. Leedstown offers a primary school and traditional public house, with nearby Townshend benefitting from an excellent and well stocked farm shop. There are a plethora of lovely rural walks in the area including nearby Crenver Grove with the property also being near to the historic Godolphin Estate with acres of land and a host of pretty walks and the site where the first episode of Poldark was filmed.

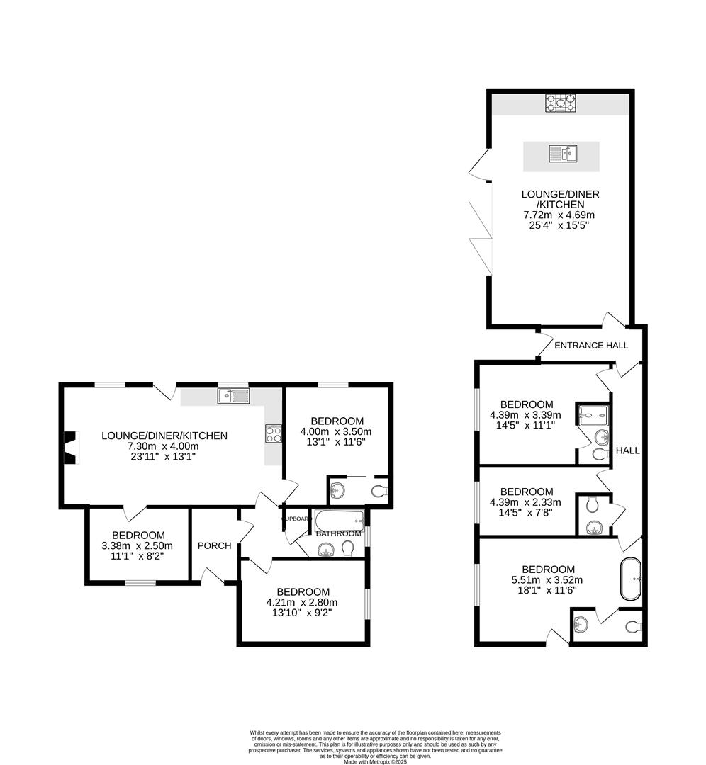
Accommodation - Hillcrest Cottage

Entrance Hall
Open plan Kitchen/Lounge/Dining room
Bedroom
Wc
Bedroom
Bedroom
Family Bathroom

Hillcrest Lodge

Entrance Hall
Open plan Kitchen/Lounge/Dining room
Bedroom
En-Suite
Bedroom
Bedroom
Freestanding bath, separate WC

Parking - There is ample parking at the property.

Outside - There is a lawned area to the front of the property, and each dwelling benefits from its own private outdoor space. Hillside Cottage enjoys a private lawned garden, while Hillcrest Lodge features a dedicated patio area.

Services - Private shared water supply, Private drainage and mains electricity.

Council Tax Band- E -

What3words - ///beamed.guessing.funky

Anti Money Laundering Regulations - Purchasers - It is a legal requirement that we receive verified ID from all buyers before a sale can be instructed. We will inform you of the process once your offer has been accepted.

Proof Of Finances - Before agreeing a sale, we will require proof of your financial ability to purchase. We will inform you of what we require prior to agreeing a sale.

Broadband & Mobile Phone Coverage - To check the broadband coverage for this property please visit https://www.openreach.com/fibre-broadband. To check mobile phone coverage please visit https://checker.ofcom.org.uk/

Property Ref: 23459_34260267

Share:

Similar Properties

Stunning high spec new build, Ashton

4 Bedroom Detached House | Guide Price £599,950

An exceptional new build home, thoughtfully designed and beautifully finished, offering light filled, generously proport...

Detached Property with 2.6 Acres of Land, Stables, Piggery & Hay Store, Trevarth

3 Bedroom Barn Conversion | Guide Price £599,950

This well presented detached barn conversion is set within approximately 2.6 acres of land and enjoys lovely countryside...

Spacious family home, Helston

4 Bedroom Detached House | Guide Price £595,999

Enjoying stunning views across the Cober Valley and open countryside beyond, this spacious and well presented 4 bedroom...

Flexible detached family home, St. Erth Praze

7 Bedroom Detached House | Guide Price £600,000

Situated in the picturesque setting of Steppy Downs Road, St. Erth Praze, this incredibly spacious and flexible detached...

Large Modern Family Home, Leedstown

5 Bedroom Detached House | Offers in excess of £620,000

Step into luxury with this exceptional modern four/five bedroom detached house, boasting a flawless finish throughout. T...

Characterful family home, Nancegollan

4 Bedroom Detached House | Guide Price £624,800

This charming and characterful family home situated in the picturesque village of Nancegollan, offers a delightful blend...

The Mather Partnership (Helston)

Helston, Cornwall, TR13 8AA

01326 565016

How much is your home worth?

Use our short form to request a valuation of your property.

Request a Valuation

Mortgage Calculator

Amount Borrowed: £
Total Amount Repayable: £
Total Monthly Payment: £
©2026 The Guild of Property Professionals. All rights reserved. Terms and Conditions | Privacy Policy | Cookie Policy | Complaints Policy | Members Login
The Guild of Property Professionals Trading Address: 121 Park Lane, London W1K 7AG. GPEA Limited. Registered in England & Wales.  Company No: 02819824.  Registered Office Address: 2 St. Stephen's Court, St. Stephen's Road, Bournemouth, Dorset, England, BH2 6LA.  VAT Registration No: 576 8795 61
Book a Property Valuation Update Cookies Preferences