Ocean Road, Leicester

£600,000

6 Bedroom Semi-Detached House for sale in Leicester

2 6 6
  • Six Bedroom Semi Detached Home
  • Six En-Suites
  • *Being Sold With All Works Completed*
  • Benefitting From a High Specification Refurbishment.
  • 8 Metres Single Story Extension With Sliding Doors
  • Brand New Central Heating & UPVC Double Glazing
  • Large Enclosed Rear Garden
  • Potential For An Outbuilding Or Garage, STPP
  • Council Tax Band A
  • EPC Rating C

Available to the market with no upward chain, we are delighted to offer to the market this extended six double bedroomed semi-detached home, benefitting of a full refurbishment throughout. The property has undergone a full renovation comprising of; a two story side extension, loft conversion, an 8 meter single story extension to allow impressive open plan living space, en-suites to each bedroom in addition to a new roof, new double glazing, brand new central heating system, brand new electrics, landscaped gardens and much more.

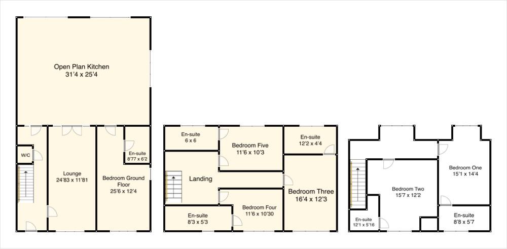
The layout comprises of; entrance hallway with a w/c under stairs, a large lounge facing the front aspect, open plan kitchen and living space, downstairs double bedroom with an en-suite. To the first floor there are three double bedrooms with three en suites and to the second floor are two double bedrooms with two en suites.

To the rear of the property is a larger than average rear garden, having a patio area and steps up to the lawn and gravel area. There is potential to add a garage or an outbuilding space subject to the necessary planning consent. There is access via the back sliding doors and side gate on the right hand side.

*Please note, the property renovation is close to being complete. Our client will be finishing the renovation in full.*

Lounge - 7.32m x 3.35m (24'83 x 11'81) -

Open Plan Kitchen - 9.45m x 7.72m (31'48 x 25'4) -

Bedroom Ground Floor - 7.77m x 3.66m (25'6 x 12'42) -

En-Suite Ground Floor - 1.88m x 2.44m (6'2 x 8'77) -

Bedroom One - 4.37m x 4.60m (14'4 x 15'1) -

Bedroom One En-Suite - 1.70m x 2.64m (5'7 x 8'8) -

Bedroom Two - 3.71m x 4.75m (12'2 x 15'7) -

Bedroom Two En-Suite - 3.68m x 1.52m (12'1 x 5'16) -

Bedroom Three - 3.73m x 4.98m (12'3 x 16'4) -

Bedroom Three En-Suite - 3.71m x 1.32m (12'2 x 4'4) -

Bedroom Four - 3.51m x 3.12m (11'6 x 10'3) -

Bedroom Four En-Suite - 2.51m x 1.60m (8'3 x 5'3) -

Bedroom Five - 3.51m x 3.05m (11'6 x 10'31) -

En-Suite Bedroom Five - 1.83m x 1.83m (6 x 6 ) -

Property Ref: 55556_32685906

Share:

Similar Properties

Main Street, Church Langton, Market Harborough

4 Bedroom Cottage | £575,000

This truly charming country home in A popular South Leicestershire village boasts approx. 160m2 internal floorspace with...

Old School House Post Office Lane Newton Harcourt

4 Bedroom Detached House | Offers Over £550,000

**REDUCED FOR QUICK SALE** Boasting approx. 200m2 of floor space, The Old School has been skilfully converted into an in...

Cleveland Road, Wigston, Leicestershire.

6 Bedroom Detached House | £525,000

Extremely spacious family home spread over 3 floors on a generous plot close to town centre amenities. Convenient for Pr...

The Oval, Oadby Leicestershire

4 Bedroom Detached House | £750,000

Extended & improved Four Bedroom Detached family home on a generous plot in one of the areas most favoured locations ove...

Lutterworth Road, Leicester

4 Bedroom House | £750,000

Standing well back from the road on a large plot this newly Built four bedroom detached family home offered to the marke...

Lutterworth Road, Leicester

5 Bedroom Detached House | £850,000

Standing well back & screened from the road, this massively extended, five bedroom superbly renovated family residence o...

Aston & Co (Wigston)

67 Long Street, Wigston, Leicestershire, LE18 2AJ

0116 2883872

How much is your home worth?

Use our short form to request a valuation of your property.

Request a Valuation

Mortgage Calculator

Amount Borrowed: £
Total Amount Repayable: £
Total Monthly Payment: £
©2025 The Guild of Property Professionals. All rights reserved. Terms and Conditions | Privacy Policy | Cookie Policy | Complaints Policy | Members Login
The Guild of Property Professionals Trading Address: 121 Park Lane, London W1K 7AG. GPEA Limited. Registered in England & Wales.  Company No: 02819824.  Registered Office Address: 2 St. Stephen's Court, St. Stephen's Road, Bournemouth, Dorset, England, BH2 6LA.  VAT Registration No: 576 8795 61
Book a Property Valuation Update Cookies Preferences