Victoria Street, Bracebridge, Lincoln

£135,000
SSTC
This property listing is now SSTC

2 Bedroom Terraced House for sale in Lincoln

2 1
  • Two bedroom bay fronted mid-terrace home
  • Two spacious reception rooms & fitted kitchen
  • Ground floor bathroom with shower over bath
  • UPVC windows & gas central heating throughout
  • Private rear yard with AstroTurf & gated access
  • No Onward Chain – ideal for investors or first time buyers
  • EPC Energy Rating - C
  • Council Tax Band - A

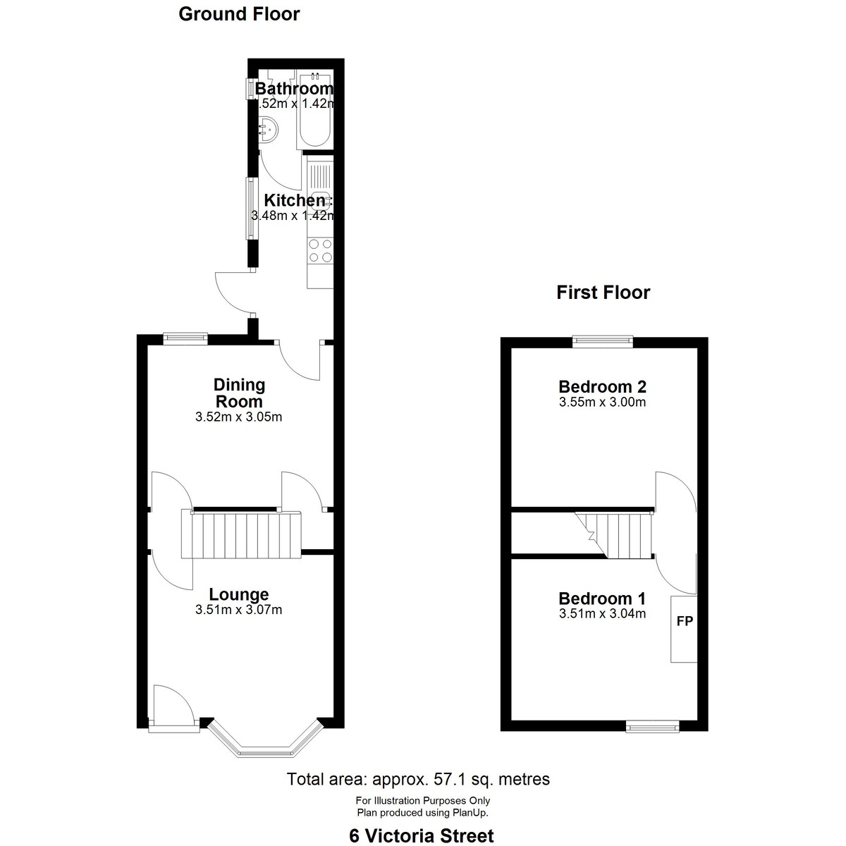
DESCRIPTION 6 Victoria Street is a Two Bedroom Bay Fronted Mid Terrace home which was fully and extensively refurbished during October & November 2025. The completely new bathroom and kitchen appliances are complimented by new flooring throughout and full redecoration both internally and externally. This beautifully presented home is ideally suited to a first time buyer or a small family, looking for a traditional home which is in pristine condition. Located in the popular residential area to the south of Lincoln, just off St Catherine's and Newark Road. The internal accommodation comprises Lounge, Dining Room, Kitchen, Downstairs Bathroom and stairs rising to the First Floor giving access to two well-proportioned Bedrooms. Outside, there is on street parking to the front and a secure enclosed low maintenance rear courtyard garden yard with AstroTurf. The property is being sold with the added benefit of No Onward Chain, presenting a great opportunity to purchase a well-positioned home with excellent local amenities and transport links nearby. 

LOCATION Bracebridge is a suburb of Lincoln, Lincolnshire, England. It is situated approximately 2 miles south from the city centre on the main A1434 Newark Road, stretching approximately from St Catherine's to Swallowbeck alongside the east bank of the River Witham, and the village of Bracebridge Heath. 

LOUNGE 11' 6" x 10' 0" (3.51m x 3.07m) With UPVC bay window to the front, a fitted storage cupboard, radiator with thermostatic control and a UPVC entrance door. 

INNER HALLWAY  

DINING ROOM 11' 6" x 10' 0" (3.52m x 3.05m) With UPVC window overlooking the rear yard, radiator with thermostatic control, understairs storage cupboard, fireplace and original Victorian wall mounted cabinet. Smoke Alarm. 

KITCHEN 11' 5" x 4' 7" (3.48m x 1.42m) With a range of base units and drawers with work surfaces over, a stainless steel sink and drainer, integrated electric oven, induction hob with extractor above and fridge freezer with chilled water dispenser, wall mounted cupboards, splashbacks, radiator with thermostatic control and a gas central heating boiler. There is a space for a washing machine. The new kitchen appliances have a 2 year manufacturers warranty. CO2 alarm. 

BATHROOM Newly fitted with a panelled bath with thermostatic rain shower and hand held shower head, WC, wash hand basin, tiled walls, extractor fan and a UPVC window to the side. The heated towel radiator has thermostatic control and a built in timer function. 

BEDROOM 11' 6" x 9' 11" (3.51m x 3.04m) With tiled fireplace, UPVC window to the front and radiator with thermostatic control. 

BEDROOM 11' 7" x 9' 10" (3.55m x 3.00m) With UPVC window to the rear and radiator with thermostatic control. 

OUTSIDE On street parking to the front and a secure enclosed courtyard garden to the rear. The low maintenance courtyard with AstroTurf includes a hardstanding for a shed, workshop or children's play house.  

Property Ref: 102125034243

Share:

Similar Properties

Ferry Lane, North Kyme

3 Bedroom End of Terrace House | £135,000

Situated on a generous non-estate plot, in this rural location in the village of North Kyme, a charming Three Bedroom Co...

Victoria Terrace, Lincoln

3 Bedroom Terraced House | £135,000

Ideally situated within close proximity to Lincoln City Centre, a traditional 3 bedroom bay fronted terraced house offer...

Henry Street, Lincoln

3 Bedroom Terraced House | £135,000

A well positioned Three Bedroom Mid Terraced property, sold with no onward chain and located in the Sincil Bank area of...

Victoria Street, Lincoln

2 Bedroom Terraced House | £137,500

A well presented Two Bedroom Mid Terrace Property, ideally positioned close to the Centre of Lincoln on Victoria Street....

St. Andrews Street, Lincoln

3 Bedroom Terraced House | £137,500

A completely Refurbished Three Bedroom Mid Terrace property located within the popular Sincil Bank area of Lincoln, just...

Grafton Street, Lincoln

2 Bedroom Terraced House | £137,500

A spacious and traditional two bedroom mid terraced house, situated in this popular and convenient location just to the...

Mundys (Lincoln)

29 Silver Street, Lincoln, Lincolnshire, LN2 1AS

01522 510044

How much is your home worth?

Use our short form to request a valuation of your property.

Request a Valuation

Mortgage Calculator

Amount Borrowed: £
Total Amount Repayable: £
Total Monthly Payment: £
©2026 The Guild of Property Professionals. All rights reserved. Terms and Conditions | Privacy Policy | Cookie Policy | Complaints Policy | Members Login
The Guild of Property Professionals Trading Address: 121 Park Lane, London W1K 7AG. GPEA Limited. Registered in England & Wales.  Company No: 02819824.  Registered Office Address: 2 St. Stephen's Court, St. Stephen's Road, Bournemouth, Dorset, England, BH2 6LA.  VAT Registration No: 576 8795 61
Book a Property Valuation Update Cookies Preferences