Plot 10, The Tirley, 5 Mereside, The View

£430,000
SSTC
This property listing is now SSTC

3 Bedroom Detached Bungalow for sale in Lincoln

3 2
  • Traditionally built new bungalow finished to a high specification
  • EPC Rating A with proven lower running costs
  • On trend kitchen with granite work surface
  • Integrated solar roof panels
  • Air Source Heat Pump & Mechanical Heat Ventilation system with underfloor heating
  • 24 Hour on site security
  • Bus transport links
  • Fitted good size utility room with access to garden
  • A Lifestyle Exclusively for Over 55’s
  • Scenic site near the Burton Waters Marina, David Lloyd Gym & Spa and the Woodcocks Pub & Restaurant



The Tirley, a traditionally built, A-rated EPC Eco luxury bungalow offers 3 spacious bedrooms with an en-suite shower room to main bedroom, utility room and panoramic lake views.



The design maximises the living space, offering a generous kitchen living dining area with fantastic lake views. The master bedroom benefits from ample wardrobe space and a spacious 3-piece en-suite shower room. The rear garden is south-west facing with a generous patio and turfed lawn.

The Tirley boasts a high level, almost 100% airtight construction, minimizing heat loss, with a mechanical heat ventilation recovery system recycling warm air for efficiency. It exceeds UK insulation standards, featuring 115mm reflective external wall insulation and triple-glazed windows. Air Source Heat Pump technology and PV Solar Panels further enhance energy efficiency, promoting sustainable living with considerably reduced running costs.
 

WELCOME TO 'THE VIEW' AT BURTON WATERS
Explore "The View" at Burton Waters, a collection of modern, eco-friendly, newly built detached luxury bungalows set in a sought-after area within walking distance to Burton Waters Marina/bus stop and just 3 miles west of Lincoln's historic city centre. This development offers energy-efficient luxury eco-homes for an over 55 lifestyle, situated within the secure environment of Burton Waters, which benefits from 24-hour security and CCTV monitoring. The development is unique to the area where home owners can enjoy comfort, luxury, and stress-free living, focusing on personal priorities. For those who enjoy the outdoors, the development is surrounded by a variety of walking and cycling routes. A popular choice is the Fossdyke Canal Trail, a scenic route from Lincoln to Saxilby that offers picturesque views and abundant wildlife. Additionally, there are several shorter trails nearby for walking and cycling enthusiasts. Located in a peaceful setting, each home is surrounded by parkland and offers beautiful lakeside views. Just a short walk away, you'll find Burton Waters Marina, featuring a variety of restaurants and cafés with outdoor seating to enjoy the stunning scenery. The marina is a vibrant spot, supporting local, independent businesses and fostering a welcoming community atmosphere. Burton Waters also hosts 'The Woodcocks,' a popular, family-friendly pub & restaurant that draws locals all year round. For those seeking leisure activities, the nearby David Lloyd Health Club offers a range of facilities including a gym, tennis courts, a swimming pool, and a spa. 

INTRODUCTION TO ARBOR LIVING Why Choose Arbor Living?

Arbor Living stands out in the over-55s lifestyle market by providing a luxurious living experience that's truly unmatched. Each of the eco-friendly, traditionally built bungalows are easy to maintain, pleasing to the eye, and nestled in secure, beautifully landscaped lakeside settings. With a variety of layouts and sizes available, there's something to fit everyone's needs.

Arbor Living's forward-thinking approach to sustainable living provides a unique opportunity for rightsizers to embrace a highly efficient, quality home lifestyle. Eco-friendly living isn't just a trend-it's the future of the UK housing market. By choosing Arbor Living, you contribute to global sustainability efforts, reducing your collective carbon footprint while enjoying a cutting-edge lifestyle.

As an independent, family-run business, Arbor Living is deeply committed to offering the over-55s market a viable, planet-friendly lifestyle option that supports a sustainable future for generations to come. 

THE LUXURY SPECIFICATION
This prestigious development features six thoughtfully designed house types, each with unique designs.

EXTERNAL
External walls soft white render with defining textured accent panels Modern roof tiles in 'Anthracite Grey' 115mm of premium reflective external wall insulation Ultra-efficient triple-glazed tilt and turn PVC windows Anthracite external windows and doors Tegula block paved driveway for two cars Large south-facing paved patio areas Carefully designed planting scheme to all property frontages Turfed front and rear lawns Antifreeze outdoor tap External up and down lighting Two Double External Sockets Solar PV Panelling

INTERNAL

ELECTRICAL
Pendant fittings to bedrooms, downlighters to all other rooms
Wiring in place for burglar alarm system to be retrofitted TV points to bedrooms and lounge CAT-6 Multimedia connection points

HEATING
Highly Economical Air Source Heating System Underfloor heating to all rooms mounted upon premium reflective floor insulation Mechanical heat ventilation recovery system

JOINERY
Contemporary single groove Burford skirting and architrave to all areas Engineered solid core internal doors in 'Coventry' style Anthracite composite front door with contemporary vertical handles bars

KITCHENS
Contemporary plot specific kitchen designs Luxury Quartz worktops as standard Premium range of integrated Caple appliances Induction hobs with overhead integrated extraction unit Eye level oven and combi microwave stack Integrated dishwasher 1.5 bowl kitchen sinks with pull-out tap heads

BATHROOMS
Ideal Standard Bathroom Premium wall hung vanity units with chrome fixings Slimline shower trays with glass enclosures and wall mounted waterfall showerheads Porcelanosa wall tiles Contemporary chrome electric towel radiators

FLOORING
Karndean Premium waterproof LVT flooring to all areas except bedrooms (these are carpeted). 1m x 1.5m in-set entrance way foot matt installed to hallway

 

INFORMATION TENURE – Leasehold
950 Year Lease. No rental payment at reviews.

PARKING ARRANGEMENTS
Each home will have its own private parking area for two cars

HEATING
Mitsubishi Air Source System with underfloor heating supported by a mechanical heat ventilation recovery system

AVAILABLE SERVICES
Mains electricity, water and drainage. Solar panels.

EPC RATINGS
All homes are EPC A-Rated

SITE MANAGEMENT/FEES
All aspects of site management will be carried out by The View (Burton Waters) Limited until such time that all homes are sold, at which point the homeowners have the ability to decide how the site is managed going forward. There will be a monthly management charge for all residents.

COUNCIL TAX BAND – C

LOCAL AUTHORITY - West Lindsey District Council

VIEWINGS - By prior appointment through Mundys. Please call 01522 510044.

SHOWHOME OPEN SUNDAY 11AM TO 3PM
 

LETS TALK ABOUT EFFICIENCY We've outlined what eco-friendly features our homes have, now let's dive into how these features work.

As environmental awareness increases, eco-efficient homes are becoming a priority for buyers. These homes are crafted to not only reduce environmental impact but also lower monthly costs. They feature a high level, almost 100% airtight constructionthat minimises heat loss, supplemented by a mechanical heat ventilation recovery system that recycles warm air for maximum efficiency.

These homes exceed UK insulation standards with 115mm of reflective external insulation and triple-glazed windows to enhance heat retention. We also employ Air Source Heat Pump technology, an efficient system that uses less energy thanks to our underfloor heating.

Lastly, each home is equipped with PV Solar Panels to harness solar energy, promoting sustainable living with considerably reduced running costs. These features ensure your home is both eco-friendly and economically beneficial.

Here is what to expect in these eco-efficient homes:

1. Highly efficient air source heating systems
2. PV solar panels
3. High level, almost 100% airtight construction
4. Water-based underfloor heating
5. Mechanical heat ventilation recovery systems
6. Enhanced external wall insulation
7. Ultra-efficient triple-glazed windows and doors 

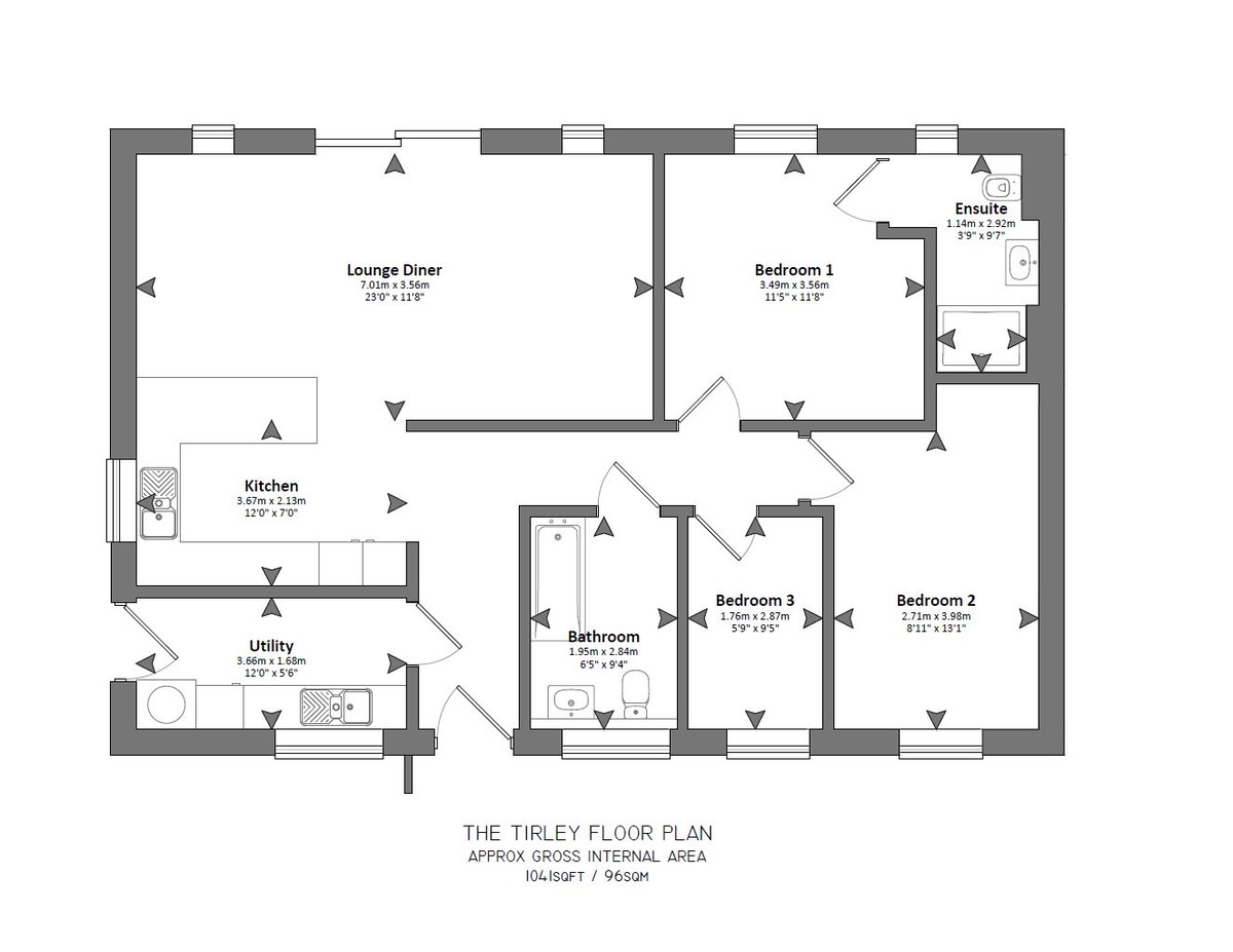
ACCOMMODATION ENTRANCE HALL

KITCHEN
12' 0" x 7' 0" (3.67m x 2.13m

LOUNGE DINER
23' 0" x 11'8" (7.01m x 3.56m)

UTILITY ROOM
12' 0" x 5' 6" (3.66m x 1.68m)

STUDY
5'9" x 9'5" (1.76m x 2.87m)

BEDROOM 1
11' 5" x 11' 8" (4.66m x 4.57m)

EN-SUITE SHOWER ROOM
3' 9" x 9' 7" (1.14m x 2.92m)

BEDROOM 2
8' 11" x 13' 1" (2.71m x 3.98m)

BATHROOM
6' 5" x 9' 4" (1.95m x 2.84m)
 

Property Ref: 58704_102125029819

Share:

Similar Properties

Grosvenor Avenue, Lincoln

5 Bedroom Detached House | £430,000

A spacious detached family home offering versatile living accommodation including a one bedroomed annexe, positioned wit...

Normanby Road, Stow

4 Bedroom Detached House | £425,000

A detached family home located in a pleasant non-estate position opposite the Parish Church of St Mary's and is situated...

Plot 3, The Hamilton, Lime Grove, Bardney

4 Bedroom Detached House | Offers Over £425,000

Open Afternoon – Thursday 9th October, 1:30pm–5pm! No appointment needed – visit Lime Grove in Bardney and explore the f...

Cresta Close, North Hykeham

5 Bedroom Detached House | £439,000

An excellent Detached Family Home situated within the popular residential location of North Hykeham. The property has be...

Plot 5, The Southwold, Lime Grove, Bardney

4 Bedroom Detached House | £440,000

Open Afternoon – Thursday 9th October, 1:30pm–5pm! No appointment needed – visit Lime Grove in Bardney and explore the f...

The Fields, Washingborough

4 Bedroom Detached House | £440,000

A beautifully designed modern Four-Bedroom Detached Home, positioned within the highly sought-after Manor Fields develop...

Mundys (Lincoln)

29 Silver Street, Lincoln, Lincolnshire, LN2 1AS

01522 510044

How much is your home worth?

Use our short form to request a valuation of your property.

Request a Valuation

Mortgage Calculator

Amount Borrowed: £
Total Amount Repayable: £
Total Monthly Payment: £
©2025 The Guild of Property Professionals. All rights reserved. Terms and Conditions | Privacy Policy | Cookie Policy | Complaints Policy | Members Login
The Guild of Property Professionals Trading Address: 121 Park Lane, London W1K 7AG. GPEA Limited. Registered in England & Wales.  Company No: 02819824.  Registered Office Address: 2 St. Stephen's Court, St. Stephen's Road, Bournemouth, Dorset, England, BH2 6LA.  VAT Registration No: 576 8795 61
Book a Property Valuation Update Cookies Preferences