Dunholme Road, Scothern

£495,000

4 Bedroom Detached House for sale in Lincoln

4 2
  • Spacious 4/5 Bedroom Detached House
  • Lounge, Dining Room, Sitting Area
  • Kitchen/Breakfast Room, Utility Room
  • Ground Floor Bedroom 5 or Reception Room
  • 4 Double Bedrooms, En-suite, Modern Family Bathroom
  • Front & Rear Gardens
  • Driveway, Carport, Garage
  • Large Workshop
  • EPC Energy Rating - D
  • Council Tax Band - E (West Lindsay District Council)

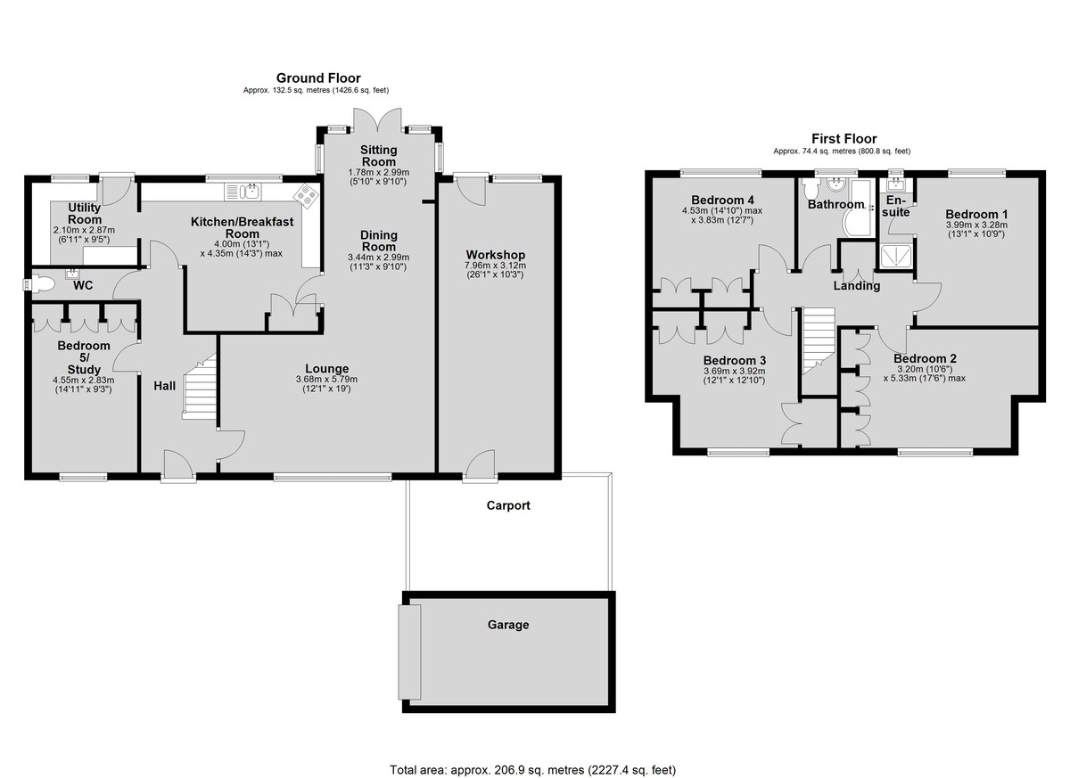
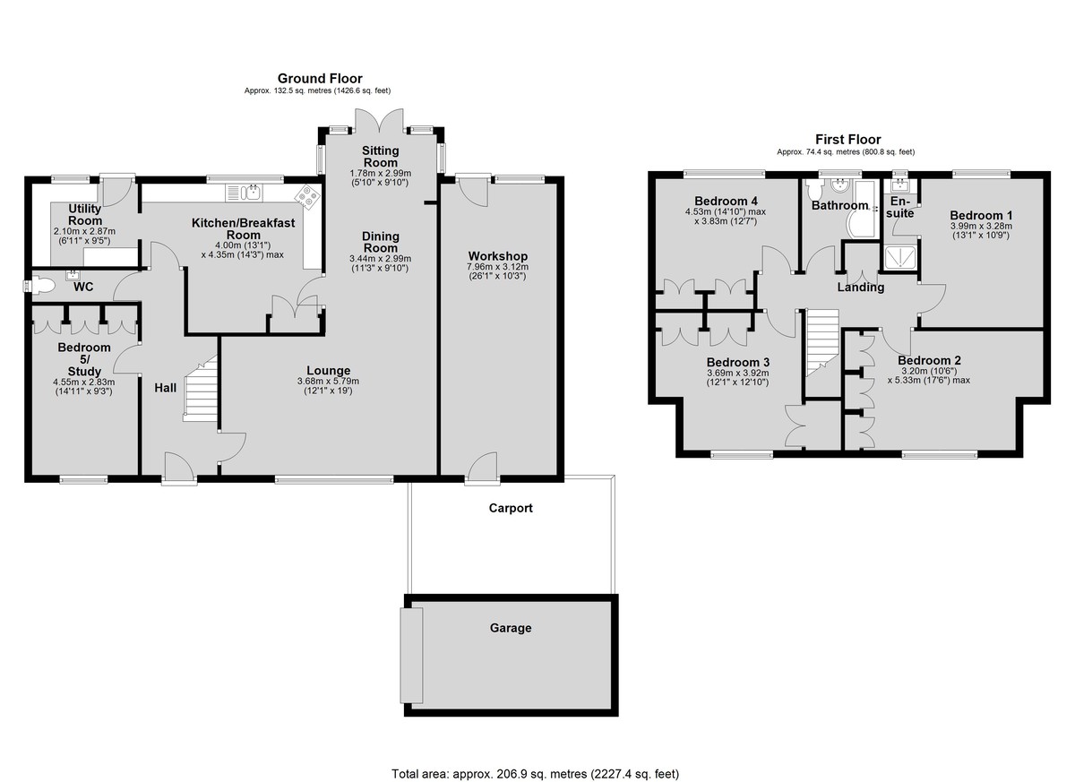
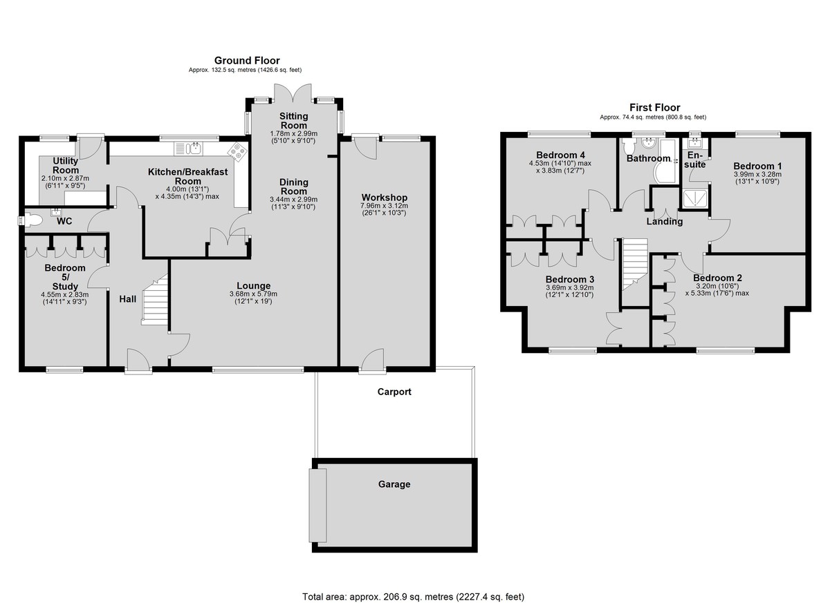
Positioned on an enviable non estate plot in the highly desirable village of Scothern, this impressive and versatile 4/5 Bedroom detached family residence offers spacious and beautifully presented accommodation throughout. The Ground Floor features a welcoming Entrance Hall, an elegant Lounge, a Dining Room, and a Sitting Area looking out onto the garden, together creating a superb layout for both family living and entertaining. The Kitchen/Breakfast Room is complemented by a separate Utility Room and Cloakroom/WC, while a versatile Ground Floor fifth Bedroom or additional Reception Room offers excellent flexibility for a Home Office, Playroom, or Guest Suite. To the First Floor, a generous Landing leads to four well proportioned Double Bedrooms, including a Master Bedroom with a En-suite Shower Room, and a modern Family Bathroom. Outside, the property occupies a generous and well maintained plot, with a lawned front garden and a driveway providing ample off street parking leading to a carport and single garage. To the rear, an established and fully enclosed garden offers a delightful space for outdoor relaxation, enhanced by mature planting and excellent privacy. In addition, a large attached workshop provides ideal space for hobbies or additional storage. A wonderful opportunity to acquire a substantial family home in a sought after village location. Early viewing is strongly recommended. NO CHAIN.  

LOCATION Located within the popular village of Scothern, which lies to the north of the historic Cathedral and University City of Lincoln. The village itself offers a public house, garden centre, village hall with sports fields, Grange Park Community Area, Methodist Church, Parish Church and a School. There are further facilities available in nearby villages of Nettleham and Welton.  

HALL With staircase to the first floor and radiator.  

LOUNGE 18' 11" x 12' 0" (5.79m x 3.68m) With double glazed window to the front aspect, feature gas fire within a decorative fireplace with side shelving and storage cupboards, and radiator. 

DINING ROOM 11' 3" x 9' 9" (3.44m x 2.99m) With radiator.  

SITTING AREA 9' 9" x 5' 10" (2.99m x 1.78m) With double glazed French doors to the rear garden. 

KITCHEN/BREAKFAST ROOM 14' 3" x 13' 1" (4.35m x 4.00m) Fitted with a range of wall and base units with work surfaces over, eye level electric oven, gas hob, integrated dishwasher, tiled splashbacks and flooring and double glazed window to the rear aspect. 

UTILITY ROOM 9' 4" x 6' 10" (2.87m x 2.10m) Fitted with a range of wall and base units with work surfaces over, Belfast sink with hot and cold taps, spaces for washing machine and tumble dryer, wall mounted gas fired central heating boiler, tiled splashbacks and flooring, double glazed window to the rear aspect and door to the rear garden. 

CLOAKROOM/WC With close coupled WC and wash hand basin in a vanity unit, part tiled walls, tiled flooring and double glazed window to the side aspect. 

STUDY/BEDROOM 5 14' 11" x 9' 3" (4.55m x 2.83m) With double glazed window to the front aspect, a range of fitted wardrobes and radiator.  

FIRST FLOOR LANDING With airing cupboard and radiator.  

BEDROOM 1 13' 1" x 10' 9" (3.99m x 3.28m) With double glazed window to the rear aspect and radiator.  

EN-SUITE SHOWER ROOM Fitted with shower cubicle and pedestal wash hand basin in a vanity unit, tiled walls and double glazed window to the rear aspect. 

BEDROOM 2 17' 5" x 10' 5" (5.33m x 3.20m) With double glazed window to the front aspect, a range of fitted wardrobes and radiator.  

BEDROOM 3 12' 10" x 12' 1" (3.92m x 3.69m) With double glazed window to the front aspect, a range of fitted wardrobes and radiator.  

BEDROOM 4 12' 6" x 14' 10" (3.83m x 4.53m) With double glazed window to the rear aspect, a range of fitted wardrobes and radiator.  

BATHROOM Fitted with a three piece suite comprising of p-shaped panelled bath with shower and glass shower screen, close coupled WC and pedestal wash hand basin, part tiled walls, tiled flooring, chrome towel radiator and double glazed window to the rear aspect. 

OUTSIDE The property sits on a generous non estate plot. To the front is a lawned garden with inset shrubs and pond. There is a driveway providing off street parking for multiple vehicles and access to the carport and garage. The carport offers a covered parking space and the garage has an up and over door to the front, light and power.  

WORKSHOP 26' 1" x 10' 2" (7.96m x 3.12m) A large workshop space with pedestrian access doors to the front and rear, double glazed window to the rear aspect, light and power.  

Property Ref: 58704_102125032686

Share:

Similar Properties

St. Edwards Drive, Sudbrooke

5 Bedroom Detached House | £495,000

A fantastic individual detached family home situated in this sought after location within the village of Sudbrooke. The...

Waterloo Lane, Skellingthorpe

5 Bedroom Detached House | £495,000

A well-presented five bedroom detached house with accommodation across three floors, situated in a stunning tucked away...

Chapel Lane, Navenby

6 Bedroom Detached House | £485,000

Situated in the heart of the ever popular village of Navenby, a spacious 6 bedroom detached family home with accommodati...

Pottergate Road, Wellingore, Lincoln

3 Bedroom Detached House | £500,000

A fantastic opportunity to acquire an executive detached family home on a generous plot of approximately 0.54 acres (STS...

Brant Road, Waddington, Lincoln

3 Bedroom Land | Guide Price £500,000

RESIDENTIAL DEVELOPMENT OPPORTUNITY – The acquisition available currently comprises of a three bedroomed semi-detached b...

Hopkinson Close, North Scarle

4 Bedroom Detached House | Offers in region of £500,000

Situated in the rural village of North Scarle, a nearly new and immaculately presented executive detached home. The prop...

Mundys (Lincoln)

29 Silver Street, Lincoln, Lincolnshire, LN2 1AS

01522 510044

How much is your home worth?

Use our short form to request a valuation of your property.

Request a Valuation

Mortgage Calculator

Amount Borrowed: £
Total Amount Repayable: £
Total Monthly Payment: £
©2025 The Guild of Property Professionals. All rights reserved. Terms and Conditions | Privacy Policy | Cookie Policy | Complaints Policy | Members Login
The Guild of Property Professionals Trading Address: 121 Park Lane, London W1K 7AG. GPEA Limited. Registered in England & Wales.  Company No: 02819824.  Registered Office Address: 2 St. Stephen's Court, St. Stephen's Road, Bournemouth, Dorset, England, BH2 6LA.  VAT Registration No: 576 8795 61
Book a Property Valuation Update Cookies Preferences