Sibthorpe Drive, Sudbrooke

£350,000

5 Bedroom Detached House for sale in Lincoln

5 2
  • Extended 5 Bedroom Detached Family Home
  • In Need of Some Modernisation
  • Lounge, Dining Room, Conservatory
  • Kitchen, Utility Room, Cloakroom/WC
  • 5 Bedrooms, En-suite & Bathroom
  • Front & Rear Gardens
  • Driveway & Double Garage
  • NO CHAIN
  • EPC Energy Rating - D
  • Council Tax Band - F (West Lindsey District Council)

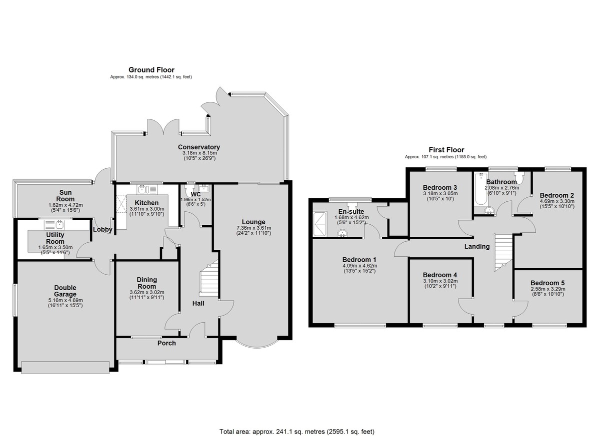
An extended Five Bedroom Detached Family Home, situated within the popular village of Sudbrooke. The accommodation could benefit from some updating and comprises of Porch, Hall, Cloakroom/WC, Lounge, Dining Room, Conservatory, Kitchen, Utility Room, Sun Room and a First Floor Landing leading to five spacious Bedrooms, master with En-suite Shower Room and a Family Bathroom. The property has a driveway, double garage and front garden. To the rear of the property there is a private and established rear garden. Viewing is highly recommended to appreciate the potential on offer. NO CHAIN. 

LOCATION The property is located within the popular village of Sudbrooke, approximately four miles North East of Lincoln, with easy access to Lincoln City Centre and convenient access to schooling of all grades, shops and leisure facilities in Uphill Lincoln and the neighbouring villages. 

PORCH With double glazed windows to the front aspect.  

HALL With staircase to the first floor and radiator. 

LOUNGE 24' 1" x 11' 10" (7.36m x 3.61m) With double glazed bow window to the front aspect, double glazed sliding patio doors to the conservatory, stone fireplace and two radiators. 

DINING ROOM 11' 10" x 9' 10" (3.62m x 3.02m) With window to the front aspect and radiator. 

CLOAKROOM/WC Fitted with close coupled WC and pedestal wash hand basin, tiled walls, window to the rear aspect and radiator. 

KITCHEN 11' 10" x 9' 10" (3.61m x 3.00m) Fitted with a range of wall and base units with work surfaces over, stainless steel 1½ bowl sink with side drainer and mixer tap over, space for range cooker, tiled splashbacks, laminate flooring, radiator and double glazed window to the rear aspect.  

LOBBY With door to the rear sun room and personnel door to the garage.  

UTILITY ROOM Fitted with a range of wall and base units, steel sink with side drainer and hot and cold taps, spaces for washing machine and tumble dryer, wall mounted gas fired central heating boiler, tiled splashbacks, double glazed window to the rear aspect and radiator. 

CONSERVATORY 26' 8" x 10' 5" (8.15m x 3.18m) With two sets double glazed French doors to the rear garden and ceiling fan. 

SUN ROOM/LEAN TO With double glazed windows to the side and rear aspects and door to the garden. 

FIRST FLOOR LANDING With double glazed window to the front aspect.  

BEDROOM 1 15' 1" x 13' 5" (4.62m x 4.09m) With a range of fitted bedroom furniture, including wardrobes, over bed storage, bedside tables and dressing table, double glazed window to the front aspect and radiator. 

EN-SUITE SHOWER ROOM Fitted with a three piece suite comprising a shower cubicle, wash hand basin in a vanity style unit and close coupled WC, walk-in storage cupboard, tiled walls and flooring, radiator and double glazed window to the rear aspect. 

BEDROOM 2 15' 4" x 9' 10" (4.69m x 3/30m) With double glazed window to the rear aspect and radiator.  

BEDROOM 3 10' 5" x 10' 0" (3.18m x 3.05m) With double glazed window to the rear aspect and radiator.  

BEDROOM 4 10' 2" x 9' 10" (3.10m x 3.02m) With double glazed window to the front aspect and radiator.  

BEDROOM 5 10' 9" x 8' 5" (3.29m x 2.58m) With double glazed window to the front aspect and radiator.  

BATHROOM Fitted with a three piece suite comprising of panelled bath with shower over, pedestal wash hand basin and close coupled WC, tiled walls, radiator and double glazed window to the rear aspect. 

OUTSIDE To the front of the property there is a lawned garden with shrubs inset. There is a driveway providing off street parking for multiple vehicles and access to the garage. The integral double garage has an electric up-and-over door to the front, window to the side, personnel door to the lobby, light and power. To the rear of the property there is an enclosed garden laid mainly to lawn with mature shrubs and garden shed.  

Property Ref: 102125035786

Share:

Similar Properties

Acer Close, Lincoln

3 Bedroom Detached Bungalow | £350,000

A truly beautiful three bedroom detached bungalow, occupying a generous corner plot and tucked away at the end of a quie...

The Granthams, Dunholme

4 Bedroom Detached House | £350,000

A spacious Four Bedroom Detached Family Home, extended to create versatile living accommodation and occupying a larger t...

The Moorings, Burton Waters, Lincoln

4 Bedroom Town House | Offers in region of £350,000

A beautifully presented four bedroom townhouse, positioned within the highly sought-after Burton Waters development, off...

Betula Grove, Lincoln

3 Bedroom Detached Bungalow | £355,000

Situated on the popular and convenient Doddington Park, to the South of the Cathedral City of Lincoln, an impressive thr...

Top Farm Avenue, Navenby

4 Bedroom Detached House | £359,950

Situated in the ever popular cliff village of Navenby, a modern four bedroom detached house beautifully positioned overl...

Goldcrest Avenue, Branston

4 Bedroom Detached House | £360,000

An executive and modern four bedroom detached house, with the addition of a double garage, situated on the outskirts of...

Mundys (Lincoln)

29 Silver Street, Lincoln, Lincolnshire, LN2 1AS

01522 510044

How much is your home worth?

Use our short form to request a valuation of your property.

Request a Valuation

Mortgage Calculator

Amount Borrowed: £
Total Amount Repayable: £
Total Monthly Payment: £
©2026 The Guild of Property Professionals. All rights reserved. Terms and Conditions | Privacy Policy | Cookie Policy | Complaints Policy | Members Login
The Guild of Property Professionals Trading Address: 121 Park Lane, London W1K 7AG. GPEA Limited. Registered in England & Wales.  Company No: 02819824.  Registered Office Address: 2 St. Stephen's Court, St. Stephen's Road, Bournemouth, Dorset, England, BH2 6LA.  VAT Registration No: 576 8795 61
Book a Property Valuation Update Cookies Preferences