Drury Lane, Lincoln

£750,000

4 Bedroom Detached House for sale in Lincoln

4 2
  • 4 Bedroomed Victorian Villa
  • 3 Good Sized Reception Rooms
  • Fitted Kitchen With Pantry & Utility
  • Good Sized Cellar
  • Beautiful Tiered Gardens Backing on to the Castle
  • Fantastic Location A Short Walk From the Cathedral
  • EPC - F
  • Council Tax Band - F (Lincoln City Council)

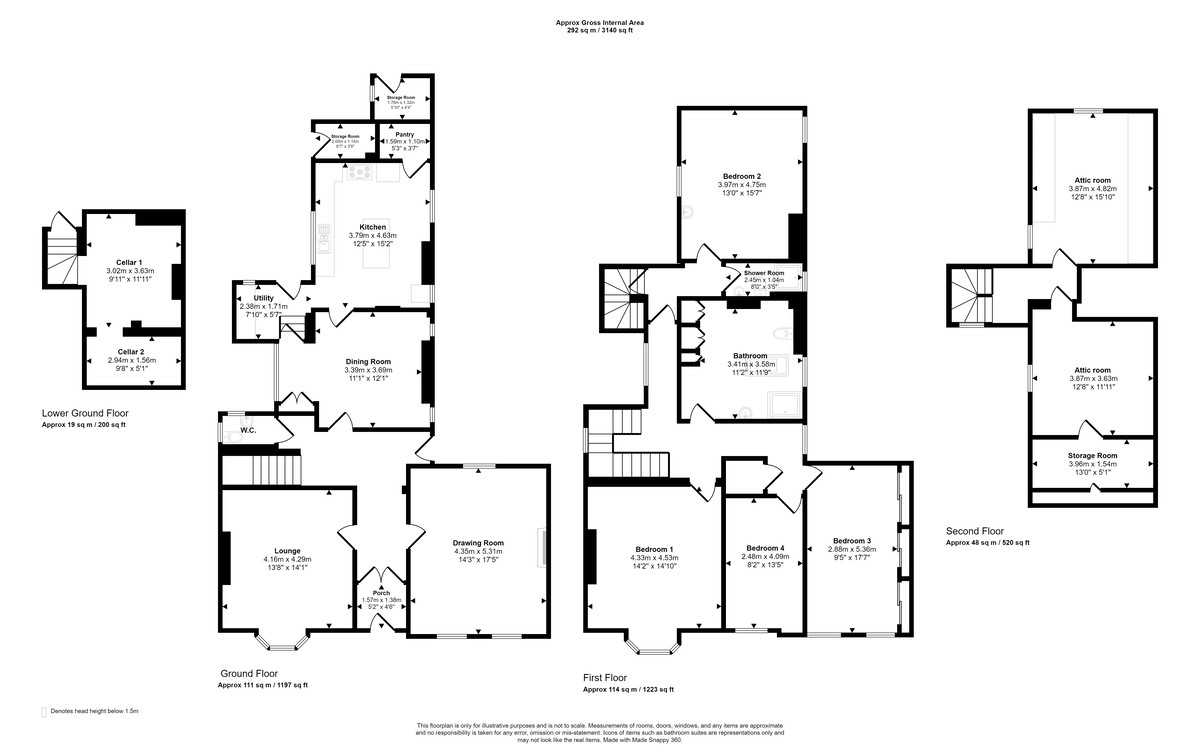
A three storey detached Victorian villa of character within walking distance of the Cathedral, externally benefiting from off-street parking to the front and an impressive well-stocked tiered garden backing onto the Castle. The property has internal accommodation to comprise of Entrance Porch, Reception Hallway, Lounge, Drawing Room, WC, Dining Room, Kitchen, Utility Room, Pantry, two Cellars, First Floor Landing leading to four Bedrooms, Shower Room and Family Bathroom and a Second Floor Landing leading to two Attic Rooms. Viewing of the property is recommended to appreciate the fantastic location and position it sits within the Cathedral Quarter of Lincoln.  

LOCATION The historic Cathedral and University City of Lincoln has the usual High Street shops and department stores, plus banking and allied facilities, multiplex cinema, Marina and Art Gallery. The famous Steep Hill leads to the Uphill area of Lincoln and the Bailgate, with its quaint boutiques and bistros, the Castle, Cathedral and renowned Bishop Grosseteste University. 

PORCH 5' 1" x 4' 6" (1.57m x 1.38m) , with door to the front aspect and double doors to the Reception Hallway. 

RECEPTION HALL With radiator, parquet wooden flooring, doors to the Lounge, Drawing Room, Dining Room and WC and stairs to the First Floor Landing.  

LOUNGE 13' 7" x 14' 0" (4.16m x 4.29m) , with walk-in bay window to the front aspect, fitted shelving, fireplace, coving to ceiling and radiator. 

DRAWING ROOM 14' 3" x 17' 5" (4.35m x 5.31m) , with windows to the front aspect, radiator, gas fire with marble hearth and decorative surround, coving to ceiling, ceiling rose and window to the rear aspect.  

WC With WC, wash hand basin and storage cupboard.  

DINING ROOM 11' 1" x 12' 1" (3.39m x 3.69m) , with windows to the side aspects, fireplace with decorative surround, space for a dining table, built-in crockery cupboard, wooden laminate flooring and doorway to the Kitchen.  

KITCHEN 12' 5" x 15' 2" (3.79m x 4.63m) , with windows to the side aspects, radiator, centre island, fitted with a range of base units and drawers with work surfaces over, composite sink and drainer with mixer tap, space for a Range cooker, integral fridge and dishwasher, wall-mounted cupboards with complementary splashbacks and doors to the Pantry and Utility Room.  

PANTRY 5' 2" x 3' 7" (1.59m x 1.10m) , with shelving. 

UTILITY ROOM 7' 9" x 5' 7" (2.38m x 1.71m) , with window and door to the rear aspects, spaces for automatic washing machine and tumble dryer with work surface over and door leading down to the Cellars.  

CELLAR 1 9' 10" x 11' 10" (3.02m x 3.63m) , leading into Cellar Two. 

CELLAR 2 9' 7" x 5' 1" (2.94m x 1.56m) , with lighting. 

FIRST FLOOR LANDING With doors to four Bedrooms, Shower Room and Family Bathroom and stairs rising to Second Floor.  

SHOWER ROOM 11' 2" x 11' 8" (3.41m x 3.58m) , with window to the side aspect, suite to comprise of bath, shower, WC and wash hand basin, range of fitted cupboards and towel radiator.  

BEDROOM 1 14' 2" x 14' 10" (4.33m x 4.53m) , with walk-in bay window to the front aspect, radiator and fitted shelving. 

BEDROOM 2 13' 0" x 15' 7" (3.97m x 4.75m) , with windows to the side aspects, wash hand basin and radiator. 

BEDROOM 3 9' 5" x 17' 7" (2.88m x 5.36m) , with windows to the front aspect, radiator and a range of fitted bedroom furniture.  

BEDROOM 4 8' 1" x 13' 5" (2.48m x 4.09m) , with window to the front aspect and radiator. 

SHOWER ROOM 8' 0" x 3' 4" (2.45m x 1.04m) , with window to the side aspect, suite to comprise of shower, WC and wash hand basin and radiator. 

SECOND FLOOR LANDING Giving access to two Attic Rooms. 

ATTIC ROOM 12' 8" x 15' 9" (3.87m x 4.82m) , with windows to the side and rear aspects, radiator and fitted storage areas.  

ATTIC ROOM 12' 8" x 11' 10" (3.87m x 3.63m) , with window to the side aspect, radiator and door to the Storage Room.  

STORAGE 12' 11" x 5' 0" (3.96m x 1.54m)  

OUTSIDE To the front of the property there are parking spaces for three/four vehicles and gated access to the rear. To the rear of the property there is a tiered garden with outbuilding and storage areas, steps leading up to well-stocked flowerbeds, mature shrubs, trees and a raised lawned garden with a summer house and views over the City and Cathedral. 

Property Ref: 58704_102125030077

Share:

Similar Properties

Lee Road, Lincoln

5 Bedroom Detached House | £750,000

A rare opportunity to acquire a fantastic five bedroom detached family home situated in this most prestigious Uphill Lin...

Foxes Lane, Lincoln

5 Bedroom Detached House | Offers in excess of £750,000

A rare opportunity to acquire an exceptional executive residence with an additional self-contained one-bedroom annex, se...

The Fields, Washingborough, Lincoln

5 Bedroom Detached House | £745,000

NO ONWARD CHAIN - A three storey luxury detached family home built by Messrs Lindum Homes and situated within the modern...

Granary Court, Scampton

4 Bedroom Detached House | £775,000

An exceptional detached family home constructed by Messrs Millcroft Developments with an Ancaster stone frontage and a n...

Wood Bank, Skellingthorpe

5 Bedroom Detached House | £795,000

An executive and unique detached family home with versatile and spacious living accommodation. The property has had one...

Blackthorn Lane, Cammeringham

5 Bedroom Detached House | £795,000

An exquisite and executive detached family home in the heart of the village of Cammeringham. This spacious home has been...

Mundys (Lincoln)

29 Silver Street, Lincoln, Lincolnshire, LN2 1AS

01522 510044

How much is your home worth?

Use our short form to request a valuation of your property.

Request a Valuation

Mortgage Calculator

Amount Borrowed: £
Total Amount Repayable: £
Total Monthly Payment: £
©2025 The Guild of Property Professionals. All rights reserved. Terms and Conditions | Privacy Policy | Cookie Policy | Complaints Policy | Members Login
The Guild of Property Professionals Trading Address: 121 Park Lane, London W1K 7AG. GPEA Limited. Registered in England & Wales.  Company No: 02819824.  Registered Office Address: 2 St. Stephen's Court, St. Stephen's Road, Bournemouth, Dorset, England, BH2 6LA.  VAT Registration No: 576 8795 61
Book a Property Valuation Update Cookies Preferences