Newport, Lincoln

£400,000

4 Bedroom Terraced House for sale in Lincoln

4 2
  • Spacious 4 Bedroom Period Home
  • Lounge & Sitting Room
  • Kitchen, Dining Area, Cloakroom/WC
  • 4 Bedrooms, Bathroom, Jack & Jill En Suite
  • Enclosed Tranquil Rear Garden
  • Close to Lincoln's Bailgate
  • Viewing Highly Recommended
  • EPC Energy Rating - D
  • Council Tax Band - B (Lincoln City Council)

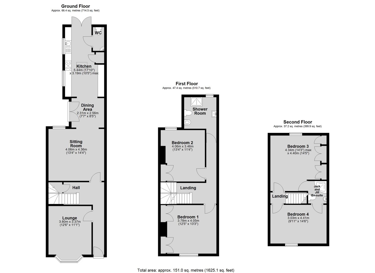
Just moments from the historic elegance of Lincoln's prestigious Bailgate Quarter, this distinguished period residence offers a rare and enviable opportunity to acquire a home of exceptional character and refinement. Immaculately refurbished to an exquisite standard, the property effortlessly blends timeless architectural charm with sophisticated modern living. The deceptively spacious accommodation opens with a welcoming hall, leading to an elegant lounge, an inviting sitting room with log burner, a dining area leading onto a stylish, light and airy fitted kitchen, and a cloakroom/WC. The first floor landing leads to two beautifully proportioned double bedrooms, and an elegant bathroom, while the second floor hosts two further double bedrooms, both with access to a superbly appointed Jack & Jill en-suite shower room. To the rear, the property is enhanced by a private, landscaped garden, designed to offer a tranquil sanctuary in the heart of the city. Permit parking is available in the area, including two permits for spaces on Cecil Street, prepaid through to the end of 2026. Additional permit parking may also be available to apply for at the Church by Newport Arch, as previously offered to the vendors. 

LOCATION The historic Cathedral and University City of Lincoln has the usual High Street shops and department stores, plus banking and allied facilities, multiplex cinema, Marina and Art Gallery. The famous Steep Hill leads to the Uphill area of Lincoln and the Bailgate, with its quaint boutiques and bistros, the Castle, Cathedral and renowned Bishop Grosseteste University. 

HALL With staircase to the first floor, understairs storage cupboard, wood effect laminate flooring and radiator. 

LOUNGE 12' 5" x 11' 0" (3.80m x 3.37m) With double glazed bay window to the front aspect, decorative feature fireplace, wood effect laminate flooring and radiator. 

SITTING ROOM 13' 3" x 14' 3" (4.06m x 4.36m) With double glazed window to the rear aspect, log burner within a feature fireplace, wood effect laminate flooring and radiator. 

DINING AREA 8' 4" x 7' 6" (2.56m x 2.31m) With double glazed French doors to the side, tiled flooring and radiator. 

KITCHEN 17' 10" x 10' 5" (5.44m x 3.19m) Fitted with a generous range of wall and base units with work surfaces over, spaces for Range cooker, fridge freezer, washing machine and integrated dishwasher, 1.5 bowl sink with side drainer and mixer tap over, Velux window, two double glazed windows to the side aspect, double glazed French doors to the rear garden, spotlights and cupboard housing the gas fired central heating boiler.  

CLOAKROOM/WC With close coupled WC, pedestal wash hand basin, spotlights, chrome towel radiator, tiled flooring and splashbacks. 

FIRST FLOOR LANDING With radiator. 

BEDROOM 1 13' 3" x 12' 4" (4.05m x 3.78m) With double glazed sash window to the front aspect, two double wardrobes and radiator. 

BEDROOM 2 13' 3" x 11' 4" (4.06m x 3.46m) With double glazed window to the rear aspect, double wardrobe, cast iron fireplace and radiator. 

BATHROOM 11' 4" x 8' 3" (3.46m x 2.53m) Fitted with a stylish four piece suite comprising of shower cubicle, wash hand basin in a vanity style unit, close coupled WC and bidet, chrome towel radiator, tiled walls and flooring, spotlights and double glazed window to the rear aspect.  

SECOND FLOOR LANDING With access to loft space, which is fully boarded with pull-down ladders. 

BEDROOM 3 14' 2" x 14' 5" (4.34m x 4.40m) With double glazed window to the rear aspect, a range of fitted wardrobes and radiator. 

JACK & JILL EN-SUITE Fitted with a three piece suite comprising of shower cubicle, pedestal wash hand basin and close coupled WC, chrome towel radiator, tiled walls and flooring.  

BEDROOM 4 14' 5" x 9' 11" (4.41m x 3.03m) With double glazed window to the front aspect and radiator. 

OUTSIDE To the front of the property there is a small gravelled garden behind low level wall setting the property back from the street. To the rear of there is a beautiful enclosed garden with a composite rot proof decked seating area, paved area, raised flowerbeds and an adjoining timber-built storage area, with light and power. With gated access from the rear of the garden. Permit parking is available in the area, including two permits for spaces on Cecil Street, which is conveniently located adjacent to the property and prepaid through to the end of 2026. The vendors also hold a visitors' parking scratch-card book, which is available free of charge with a parking permit and allows short term parking for guests. Additional permit parking may also be available to apply for at the Church by Newport Arch, as previously offered to the vendors, subject to availability. 

Property Ref: 102125033493

Share:

Similar Properties

Ash Croft, Camms Close, Osbournby

4 Bedroom Detached House | £400,000

Plot 8 is a high-specification four-bedroom detached home within the Ash Croft development by Stonewell Homes. Built to...

Montaigne Crescent, Lincoln

4 Bedroom Detached Bungalow | £400,000

An impressive and beautifully Refurbished Four Bedroom Family Residence, thoughtfully reconfigured and finished to an ex...

Manor Rise, Reepham

4 Bedroom Detached House | £400,000

Situated in the popular village of Reepham to the East of the Cathedral City of Lincoln, an executive four bedroom detac...

Harland Road, Lincoln

4 Bedroom Detached House | £410,000

An extended four bedroom detached family home, located on the ever popular Glebe Park estate. The property offers genero...

Western Avenue, Lincoln

4 Bedroom Detached House | £410,000

NO ONWARD CHAIN - Situated in a highly sought after residential area just south of the historic Cathedral City of Lincol...

Lincoln Road, North Hykeham

4 Bedroom Detached House | £415,000

A superb example of a 1930’s built four bedroom detached family home, ideally positioned in a sought after non estate lo...

Mundys (Lincoln)

29 Silver Street, Lincoln, Lincolnshire, LN2 1AS

01522 510044

How much is your home worth?

Use our short form to request a valuation of your property.

Request a Valuation

Mortgage Calculator

Amount Borrowed: £
Total Amount Repayable: £
Total Monthly Payment: £
©2026 The Guild of Property Professionals. All rights reserved. Terms and Conditions | Privacy Policy | Cookie Policy | Complaints Policy | Members Login
The Guild of Property Professionals Trading Address: 121 Park Lane, London W1K 7AG. GPEA Limited. Registered in England & Wales.  Company No: 02819824.  Registered Office Address: 2 St. Stephen's Court, St. Stephen's Road, Bournemouth, Dorset, England, BH2 6LA.  VAT Registration No: 576 8795 61
Book a Property Valuation Update Cookies Preferences