Greetwell Gate, Lincoln

£155,000
SSTC
This property listing is now SSTC

2 Bedroom Terraced House for sale in Lincoln

2 1
  • 2 Bedroom Mid Terraced House
  • Prime Uphill Location
  • Lounge, Dining Room, Kitchen
  • 2 Bedrooms, First Floor Bathroom
  • Enclosed Rear Yard
  • NO CHAIN
  • EPC Energy Rating - D
  • Council Tax Band - A (Lincoln City Council)

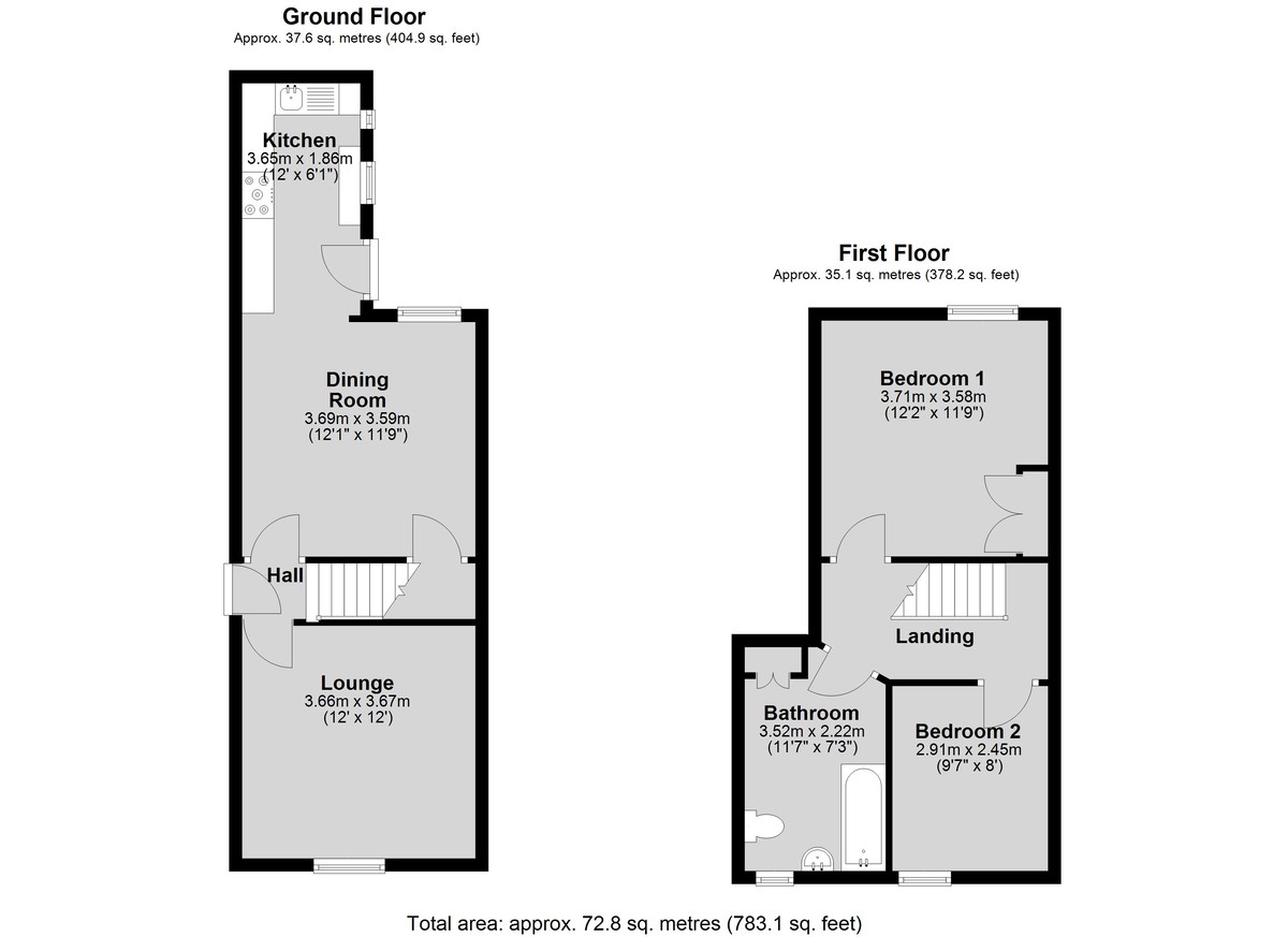
A Two Bedroom Mid Terraced House situated in the Uphill Area of Lincoln, within close proximity to the Cathedral Quarter. The accommodation comprises of a Hall, Lounge, Dining Room, Kitchen and a First Floor Landing leading to a Bathroom and two Bedrooms. Outside there is residents permit parking and an enclosed rear yard with brick outbuildings. The property is being sold with No Chain and viewing is highly recommended. 

LOCATION The historic Cathedral and University City of Lincoln has the usual High Street shops and department stores, plus banking and allied facilities, multiplex cinema, Marina and Art Gallery. The famous Steep Hill leads to the Uphill area of Lincoln and the Bailgate, with its quaint boutiques and bistros, the Castle, Cathedral and renowned Lincoln Bishop University. 

HALL With staircase to the first floor. 

LOUNGE 12' 0" x 12' 0" (3.67m x 3.66m) With double glazed window to the front aspect and radiator. 

DINING ROOM 12' 1" x 11' 9" (3.69m x 3.59m) With double glazed window to the rear aspect, radiator and under stairs storage cupboard. 

KITCHEN 11' 11" x 6' 1" (3.65m x 1.86m) Fitted with a range of wall and base units with work surfaces over, eye level electric oven, five ring gas hob, gas fired wall mounted central heating boiler, stainless steel sink with side drainer and mixer tap, space for washing machine, tiled splashbacks, two double glazed windows to the side aspect and door to the garden. 

FIRST FLOOR LANDING  

BEDROOM 1 12' 2" x 11' 8" (3.71m x 3.58m) With double glazed window to the rear aspect, double wardrobe and radiator. 

BEDROOM 2 9' 6" x 8' 0" (2.91m x 2.45m) With double glazed window to the front aspect and radiator.  

BATHROOM Fitted with a three piece comprising of panelled bath with shower, pedestal wash handbasin and close coupled WC, airing cupboard, tiled splashbacks radiator and double window to the front aspect. 

OUTSIDE The property benefits from residents permit parking. To the rear is an enclosed yard with brick outbuildings. 

Property Ref: 102125035807

Share:

Similar Properties

Queen Elizabeth Road, Lincoln

2 Bedroom End of Terrace House | £155,000

A modern two-bedroom townhouse located along Queen Elizabeth Road, to the north of the City of Lincoln. The property off...

Goodwood Way, Lincoln

2 Bedroom Terraced House | £155,000

A Two Bedroom Mid Terraced House situated in the popular location of Doddington Park, just to the South of the Cathedral...

10 Moorby Close

2 Bedroom Semi-Detached House | £155,000

A two bedroom semi detached property positioned in this popular uphill location just off Riseholme Road, offering accomm...

Burton Road, Lincoln

2 Bedroom Terraced House | £160,000

Situated in a fantastic position within close proximity to Uphill Lincoln and the Bailgate, a traditional two bedroom ba...

Carlton Street, Lincoln

2 Bedroom End of Terrace House | £160,000

A traditional and fully refurbished two bedroom end terraced house located in the prime Uphill Area of Lincoln, within c...

St. Andrews Close, Lincoln

2 Bedroom Detached Bungalow | £160,000

The property is being sold with No Onward Chain. A two bedroomed detached bungalow situated close to the City Centre of...

Mundys (Lincoln)

29 Silver Street, Lincoln, Lincolnshire, LN2 1AS

01522 510044

How much is your home worth?

Use our short form to request a valuation of your property.

Request a Valuation

Mortgage Calculator

Amount Borrowed: £
Total Amount Repayable: £
Total Monthly Payment: £
©2026 The Guild of Property Professionals. All rights reserved. Terms and Conditions | Privacy Policy | Cookie Policy | Complaints Policy | Members Login
The Guild of Property Professionals Trading Address: 121 Park Lane, London W1K 7AG. GPEA Limited. Registered in England & Wales.  Company No: 02819824.  Registered Office Address: 2 St. Stephen's Court, St. Stephen's Road, Bournemouth, Dorset, England, BH2 6LA.  VAT Registration No: 576 8795 61
Book a Property Valuation Update Cookies Preferences