- Incredible 3 Bedroom Terraced House
- High Quality Programme of Renovations
- Lounge & Refitted Kitchen Diner
- 3 Bedrooms, Bathroom, Shower Room
- Low Maintenance Garden
- Residents Permit Parking
- EPC Rating - E
- Council Tax Band A - Lincoln City Council
  An exquisite example of a 3 bedroom, 3 storey traditional terraced house just to the East of the Cathedral City of Lincoln, close to Lincoln Arboretum. The property has undergone a comprehensive programme of high quality renovations and has immaculate accommodation comprising of lounge, hall, newly fitted stylish kitchen diner, ground floor shower room and a first floor landing leading to two double bedrooms and newly fitted bathroom. The second floor landing leads through to a further double bedroom. Outside there is a low maintenance garden to the rear and the property further benefits from residents permit parking. Viewing of this property is essential to appreciate the standard of the thoughtful renovation. 
LOCATION  The historic Cathedral and University City of Lincoln has the usual High Street shops and department stores, plus banking and allied facilities, multiplex cinema, Marina and Art Gallery. The famous Steep Hill leads to the Uphill area of Lincoln and the Bailgate, with its quaint boutiques and bistros, the Castle, Cathedral and renowned Bishop Grosseteste University. 
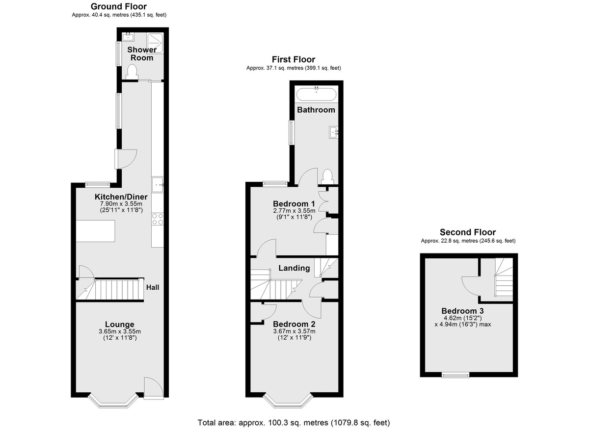
LOUNGE 11' 11" x 11' 7" (3.65m x 3.55m) With double glazed bay window to the front aspect, electric log burner, wood flooring and radiator.  
HALL  With staircase to the first floor.  
KITCHEN/DINER 25' 11 (max)" x 11' 7" (7.9m x 3.55m) An impressive newly fitted kitchen with a stylish range of wall and base units with work surfaces over, sink unit with mixer tap over, electric oven and hob with extractor fan, integrated fridge freezer and dishwasher, spaces for washing machine and tumble dryer, Island with breakfast bar, tiled splashbacks, wood flooring, two radiators, spotlights, under cabinet lighting, under stairs storage cupboard, double glazed window to the side and rear aspects and door to the garden.  
SHOWER ROOM  Newly fitted with a stylish three piece suite comprising of wet room shower, close coupled WC and wash hand basin in a vanity style unit, tiled flooring and part tiled walls, gold coloured towel radiator, spotlights and double glazed window to the side aspect. 
FIRST FLOOR LANDING  With airing cupboard and staircase to the second floor.  
BEDROOM 1 11' 7" x 9' 1" (3.55m x 2.77m) With a range of fitted wardrobes, dressing table, double glazed window to the rear aspect and radiator.  
EN-SUITE BATHROOM  Newly fitted with a stylish three piece suite comprising of panelled bath with shower over and glass shower screen, close coupled WC and pedestal wash hand basin, tiled flooring and part tiled walls, radiator, spotlights and double glazed window to the side aspect. 
BEDROOM 2 12' 0" x 8' 5" (3.67m x 2.57m) With double glazed bay window to the front aspect, storage cupboard and radiator. 
SECOND FLOOR LANDING   
BEDROOM 3 16' 2 (max)" x 15' 1 (max)" (4.93m x 4.6m) With double glazed bay window to the front aspect and radiator. 
OUTSIDE  To the front of the property there is a low maintenance gravelled garden behind low level wall. To the rear there is an enclosed courtyard garden laid to gravel with flowerbeds. The property further benefits from residents permit parking.  
Property Ref: 58704_102125033409
Grange Lane, Willingham By Stow
2 Bedroom Detached Bungalow | £215,000
A two bedroom detached bungalow, situated on a generous non estate plot within the pleasant village of Willingham by Sto...
Durham Close, Bracebridge Heath
3 Bedroom Semi-Detached House | £215,000
Situated at the end of a cul de sac in the popular village of Bracebridge Heath, a modern three bedroom link semi detach...
Picknett Way, Lincoln Road, Dunholme
3 Bedroom Semi-Detached House | £215,000
A modern three storey semi-detached home situated on a small development within the sought-after village of Dunholme. Th...
2 Bedroom Cottage | £219,950
A well presented semi-detached cottage located in the desirable rural village of Bassingham. The internal accommodation...
3 Bedroom Semi-Detached House | £220,000
This is an extended three bedroomed semi-detached house situated in a popular location to the South of Lincoln, just off...
2 Bedroom End of Terrace House | £220,000
A beautiful stone cottage positioned in the heart of the popular village of Nettleham, to the North of the Cathedral Cit...
 
                            Mundys (Lincoln)
29 Silver Street, Lincoln, Lincolnshire, LN2 1AS
Use our short form to request a valuation of your property.
Request a Valuation