Littleton Drew

Offers Over
£650,000

4 Bedroom Detached House for sale in Littleton Drew

1 4 2
  • Detached chalet home
  • 4 bedrooms, 2 bathrooms
  • Large light-filled reception room with bi-folding doors
  • Sunny south-facing garden
  • Peaceful village setting
  • Backing onto fields
  • Private lane position
  • Generous parking and garage
  • No onward chain

Description
Cypress Cottage is chalet style detached home situated in the pretty and rural village of Littleton Drew. Positioned down a private drive serving just six homes, the property enjoys a peaceful position with southerly rural views across fields and the village farm. The accommodation is most deceptive having been largely extended and is beautifully finished with a contemporary design. 
 
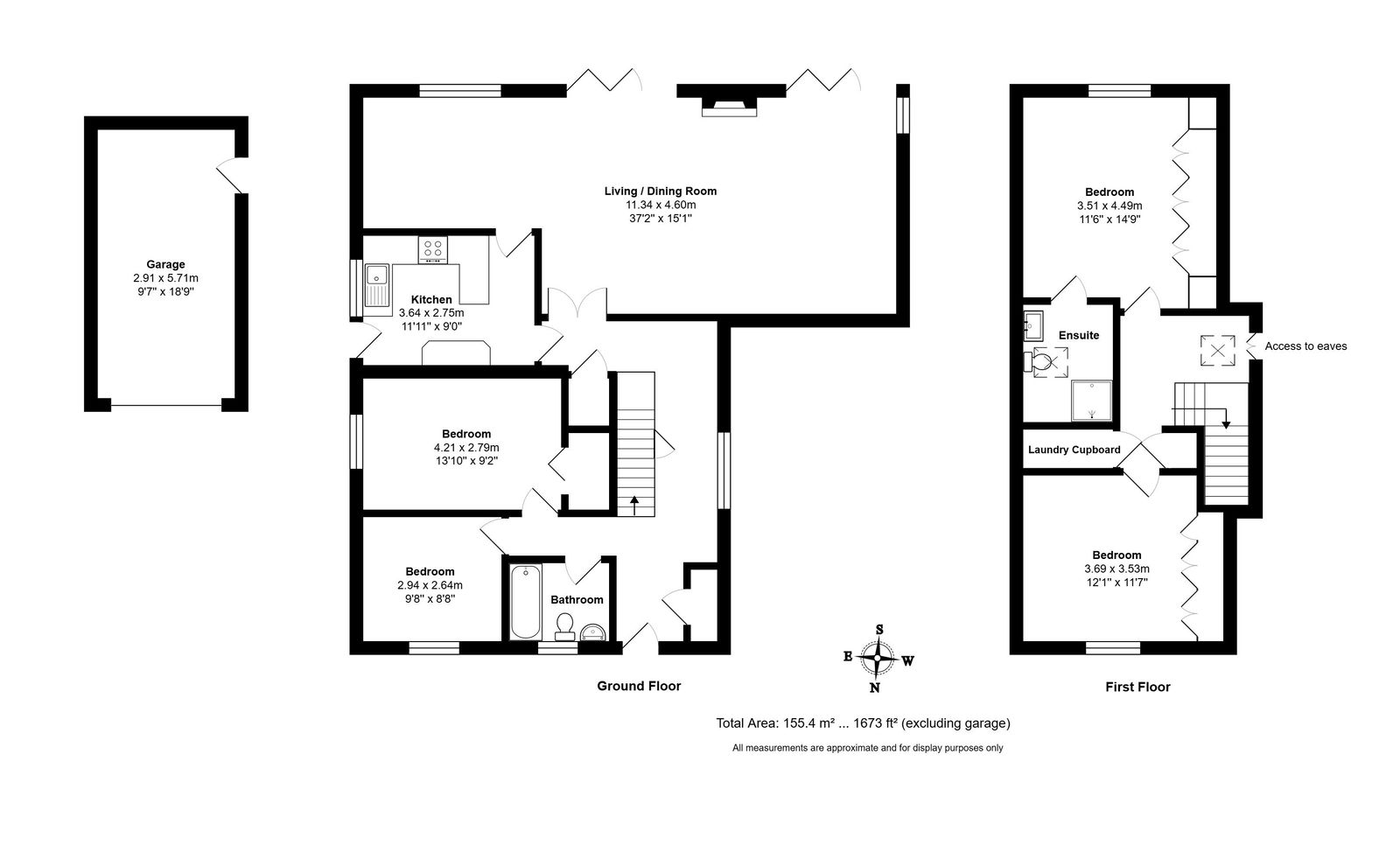
Arranged over two floors, the accommodation is light and bright throughout extending to around 1,673 sq.ft to include a large open plan living/dining room with bi-folding doors connecting to the south-facing garden. Adjoining the dining area there is a fitted kitchen. Underfloor heating warms the reception rooms and continues to the spacious entrance hall. There are four good-sized bedrooms across the ground and first floor all with built-in storage. There is a bathroom located on the ground floor whilst the principal bedroom has an en-suite shower room which also has extensive fitted wardrobes and views over the adjoining fields. 
 
There is ample private off-street parking over a front and side driveway coupled with a detached garage. The delightful sunny rear garden is of a manageable size landscaped with a seating terrace, lawn and vibrant borders. 
Situation
Littleton Drew is a delightful village just north of the M4 with a pretty church and lovely sense of community. Local amenities can be found in the neighbouring villages Acton Turville, Grittleton, Castle Combe and Yatton Keynell including village shops, post offices, doctors and primary schools and a choice of excellent pubs.  More extensive  facilities can be found in the market towns of Chippenham, Yate, or Chipping Sodbury.. There are school bus services to Acton Turville and Chippenham which has a choice of excellent secondary schools. The cultural cities of Bath and Bristol are about 20 minutes by car whilst for those needing to travel further afield, there are frequent inter-city train services at Chippenham and the M4 (Junction 17 and 18) is about 10 minutes' drive away providing access to London, the south and the Midlands.    
Additional Information
We understand the property is Freehold with electric heating and underfloor heating, private drainage, mains water and electricity. There are PV panels on a feed-in tariff. The property is located within the Cotswold Area of Outstanding Natural Beauty and a conservation area. Ultrafast broadband is available and there is mobile phone coverage with some limitations. Information taken from the Ofcom mobile and broadband checker website, please check the website for more information. Wiltshire Council Tax Band E.

Important Information

  • This is a Freehold property.
  • This Council Tax band for this property is: E

Property Ref: 1067177

Share:

Similar Properties

New Church Street, Tetbury

3 Bedroom End of Terrace House | £650,000

This beautifully presented Grade II listed Georgian townhouse is centrally located and has been sympathetically and tast...

Draper Close, Tetbury

4 Bedroom Detached House | £650,000

Overlooking a large open green, a spacious detached Cotswold stone house with a south-facing garden and garage. No onwar...

Pump Lane, Long Newnton

3 Bedroom Detached House | Guide Price £635,000

Positioned down a quiet country lane in the Cotswold village of Long Newnton, just 1 mile outside of Tetbury, a charming...

Quarry House, Corston

3 Bedroom Semi-Detached House | £665,000

A semi-detached 18th Century period home tucked away within private gardens boasting well-proportioned, light and airy a...

High Street, Hawkesbury Upton

4 Bedroom Terraced House | £675,000

An attractive natural stone period house with wonderful character, large south-facing garden, and double garage. NO CHAI...

High Street, Hawkesbury Upton

3 Bedroom Link Detached House | £695,000

A characterful former farmhouse located in the very heart of the village close to many amenities, with off-street parkin...

James Pyle & Co (Sherston)

Swan Barton, Sherston, Wiltshire, SN16 0LJ

01666 840886

How much is your home worth?

Use our short form to request a valuation of your property.

Request a Valuation

Mortgage Calculator

Amount Borrowed: £
Total Amount Repayable: £
Total Monthly Payment: £
©2026 The Guild of Property Professionals. All rights reserved. Terms and Conditions | Privacy Policy | Cookie Policy | Complaints Policy | Members Login
The Guild of Property Professionals Trading Address: 121 Park Lane, London W1K 7AG. GPEA Limited. Registered in England & Wales.  Company No: 02819824.  Registered Office Address: 2 St. Stephen's Court, St. Stephen's Road, Bournemouth, Dorset, England, BH2 6LA.  VAT Registration No: 576 8795 61
Book a Property Valuation Update Cookies Preferences