The Tarters, Sherston

£629,500

3 Bedroom Link Detached House for sale in Malmesbury

2 3 2
  • Link-detached house
  • Reconfigured accommodation
  • 3 bedrooms
  • 2 receptions and office
  • Refitted kitchen/breakfast room
  • Bathroom and en-suite
  • Good-sized rear garden
  • Generous private parking
  • Double garage
  • Easy walking distance to the High Street

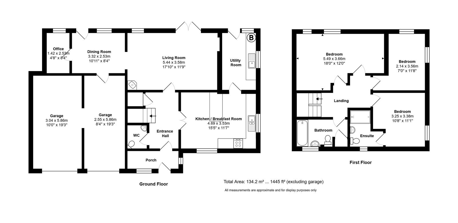
Description
5 The Tarters is a link-detached home set within a delightful corner position in a popular residential close within the highly sought-after village of Sherston. The well-presented accommodation is arranged over two floors and has been updated with new double glazed windows and doors, remodelling and a refitted kitchen.
 
The ground floor comprises a porch through to an entrance hall which has double doors flowing to the stylish kitchen with fitted breakfast bar, integrated dishwasher, double oven and hob, plus a utility room off. To the rear is a spacious living room with a wood burning stove and double doors to the garden. The reception room has been opened up to a dining room with a separate office beyond. Originally a four bedroom configuration, the first floor are now offers three bedrooms with the remodelled largest one having a dressing area. There is a family bathroom and an en-suite shower room. The former fourth bedroom could be easily reinstated if desired. 
 
To the front of the property the driveway has been extended to accommodate numerous vehicles types in addition to the double garage which has storage above. Thoughtful planting within the rear garden has created a great degree of privacy through the use of evergreens. There is a good-sized lawn, a pergola surrounded seating terrace, a timber shed, and bin storage hidden to the side.
Situation
The beautiful, ancient and much sought after village of Sherston with its broad High Street and historic stone houses is set in an Area of Outstanding Natural Beauty conveniently located on the edge of the Cotswolds. Sherston has a thriving community and offers many facilities, including a church, popular primary school, doctors surgery, Co-op shop and post office, coffee shops, hairdresser, Indian restaurant, garden centre and the highly regarded 16th century Rattlebone Inn, with its excellent food and friendly atmosphere. The facilities and amenities in Sherston more than adequately provide for everyday need with a whole host of societies and clubs meeting on a regular basis offering entertainment and social events for young and old alike. Schooling locally is second to none, with very good state and independent schools providing transport to and from the village on a daily basis. Close by are the market towns of Malmesbury and Tetbury which are both approximately 5 miles away. Malmesbury is reputed to be the oldest Borough in the country dating back to the 11th Century. Both towns offer a wider range of shops, services, schooling and leisure facilities. There are main line stations to London-Paddington at Kemble (14 miles) and Chippenham (12 miles) whilst Junctions 17 & 18 of the M4 are both within 15 minutes' drive providing convenient access to Bath, Bristol and Swindon.
Additional Information
We understand the property is Freehold with oil-fired central heating, mains drainage, water and electricity. Solar Thermal Panels contribute to the hot water system. The property is located within the Cotswold Area of Outstanding Natural Beauty. Superfast broadband is available and there is good mobile phone coverage. Information taken from the Ofcom mobile and broadband checker website, please check the website for more information. Wiltshire Council Tax Band E. 

Important Information

  • This is a Freehold property.
  • This Council Tax band for this property is: E

Property Ref: 1138481

Share:

Similar Properties

Sawyers Close, Minety

4 Bedroom Detached House | £625,000

With front and back gardens, this detached house has been extended over the years offering substantial and versatile liv...

St. Wulfstan Close, Hawkesbury Upton

4 Bedroom Detached House | £625,000

Situated within the impressive Rutherstone development towards the edge of the village, this immaculate Cotswold stone m...

Belfry Drive, Hullavington

4 Bedroom Detached House | Guide Price £625,000

Set within a quiet cul-de-sac near to the village centre, a detached modern family house with low running costs offering...

Sopworth

3 Bedroom Semi-Detached House | Guide Price £635,000

Positioned in the heart of this desirable peaceful Cotswold village, a semi-detached period cottage with a charming inte...

Draper Close, Tetbury

4 Bedroom Detached House | £650,000

Overlooking a large open green, a spacious detached Cotswold stone house with a south-facing garden and garage. No onwar...

Littleton Drew

4 Bedroom Detached House | Offers Over £650,000

A beautifully finished, detached chalet style house with spacious accommodation including ground and first floor bedroom...

James Pyle & Co (Sherston)

Swan Barton, Sherston, Wiltshire, SN16 0LJ

01666 840886

How much is your home worth?

Use our short form to request a valuation of your property.

Request a Valuation

Mortgage Calculator

Amount Borrowed: £
Total Amount Repayable: £
Total Monthly Payment: £
©2026 The Guild of Property Professionals. All rights reserved. Terms and Conditions | Privacy Policy | Cookie Policy | Complaints Policy | Members Login
The Guild of Property Professionals Trading Address: 121 Park Lane, London W1K 7AG. GPEA Limited. Registered in England & Wales.  Company No: 02819824.  Registered Office Address: 2 St. Stephen's Court, St. Stephen's Road, Bournemouth, Dorset, England, BH2 6LA.  VAT Registration No: 576 8795 61
Book a Property Valuation Update Cookies Preferences