Irfon Crescent, Llanwrtyd Wells, LD5

£260,000

5 Bedroom End of Terrace House for sale in Llanwrtyd Wells

3 5 3
  • Two Homes in One – Rare opportunity to purchase two previously connected houses, now offering a versatile five-bedroom residence with three reception rooms
  • Charming Character & Modern Comfort – Features exposed stonework, feature fireplaces, and recently updated shower facilities, blending period charm with practical living
  • Stunning Riverside Views – Bedrooms and living spaces overlook the picturesque River Irfon and beautiful Mid-Wales countryside
  • Flexible Living Spaces – Includes multiple reception rooms, ground-floor bedrooms, home offices, and converted attic rooms for extra accommodation
  • Private Gardens & Courtyards – Enjoy front and rear courtyard gardens, plus a secret detached riverside garden perfect for relaxation and entertaining
  • Off-Road Parking & Outbuildings – Parking space at the terrace end, with useful stone-built workshop and timber outbuilding for storage or hobbies
  • Convenient Location – Situated just off the centre of Llanwrtyd Wells, one of Britain’s smallest towns, with easy access to local amenities and scenic walking routes
  • Investment or Family Home Potential – Whether combined as a large family home or kept as two separate dwellings, this property offers excellent versatility and unique appeal
  • Council tax bands - C (2025-6 £1,951.33) & B (2025-6 £1,707.41)
  • Energy performance certificates - E & F

A Rare Opportunity to Own Two Homes in One - Spacious, Versatile & Riverside Living

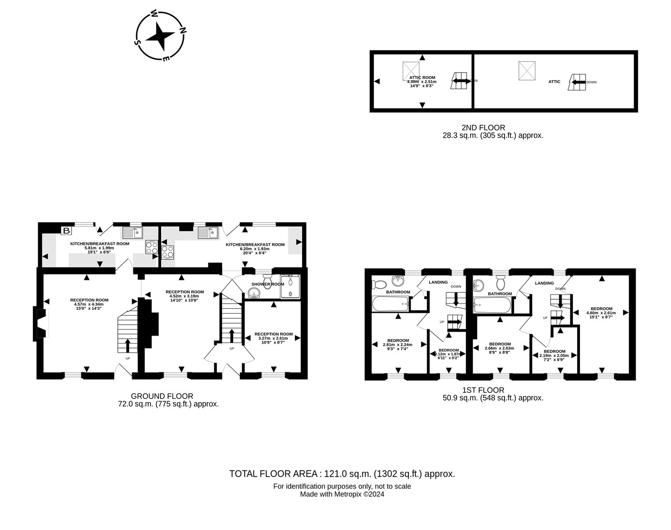
This unique property offers the chance to purchase two connected homes that were once joined by a doorway between their main reception rooms, creating a large five-bedroom residence with three reception rooms, front and rear courtyard gardens, a detached secret riverside garden, and off-road parking!

1 Irfon Crescent

Approached from the A483, the front door opens into a charming reception room featuring exposed stonework, a feature fireplace housing a gas stove, and a staircase leading to the first-floor landing. This inviting space has ample room for dining and relaxing. The original doorway connecting to 2 Irfon Crescent (now boarded up) sits beneath the stairs. The kitchen/breakfast room provides generous space for cooking and meal prep, with a door leading out to the rear garden. Upstairs, the landing leads to two bedrooms - a double and a comfortable single - both offering stunning views over the River Irfon and the rolling countryside beyond. The single bedroom is currently used as a home office/study. A ladder staircase from the landing accesses a converted attic room with limited headroom, ideal as occasional accommodation.

2 Irfon Crescent

Also accessed from the A483, this home welcomes you into a small hallway leading to a spacious reception room with the original (boarded) doorway to 1 Irfon Crescent. Beyond is a rear lobby and a kitchen/breakfast room with plenty of space for dining and cooking, plus access to the rear garden. Adjacent to the lobby is a modern shower room with walk-in shower, WC, and basin. A second reception room, currently used as a downstairs bedroom or home study, completes the ground floor. Upstairs, you’ll find three bedrooms - two doubles and one single - plus a family bathroom. A ladder staircase leads to an unconverted loft with limited headroom. From the first floor, enjoy breathtaking views over the River Irfon and Mid-Wales countryside.

Outside

The properties share a small front courtyard, enclosed by a dwarf wall, perfect for morning coffee or quiet relaxation. At the rear, a hardstanding area accessible from both kitchens offers a private suntrap. A stone-built outbuilding serves as a workshop, while a timber outbuilding accessed from a nearby lane can house a motorcycle or similar. Off-road parking for one vehicle is available at the end of the terrace, next to 1 Irfon Crescent. Across the road, a pedestrian gate leads down steps to a beautifully secluded lawned garden that slopes gently to the River Irfon, lined with mature trees and shrubbery - a perfect riverside retreat to unwind and enjoy stunning views.

Summary

This expansive, flexible home, currently separated into two dwellings but previously one, presents a fantastic opportunity for a family home, rental investment, or a unique riverside residence.

Please note: The properties can also be purchased individually, as listed separately on this website.

Call today to arrange your viewing - don’t miss out on this exceptional offering!

Telephone & Broadband: Telephone- subject to BT transfer regulations. According to comparethemarket.com the property has a broadband speed of: 37.00 Mbps (average speed of Mbps).

Please note you should always confirm this by speaking to the specific provider you would like to use. This is for guidance only.

The properties are ideally situated just off the centre of Llanwrtyd Wells, a picturesque and historic town nestled along the River Irfon. With a population of around 1,551, Llanwrtyd Wells proudly holds the title of Britain’s smallest town. Positioned on the A483 between Llandovery and Builth Wells, it lies near the scenic Tywi and Irfon valleys. Once a thriving spa town, Llanwrtyd Wells grew around the famous Ffynnon Ddrewllyd spring, discovered in 1732 and renowned for its healing waters, which can still be visited today. The town has a quirky, vibrant community spirit and is home to unique annual events such as the World Bog Snorkelling Championships and the Man versus Horse Marathon. Just 13 miles away, the bustling market town of Builth Wells sits at the heart of Powys amid some of the UK’s most stunning countryside. Located within the historic boundaries of Brecknockshire and set on the banks of both the River Wye and River Irfon, Builth Wells is famed for hosting the Royal Welsh Show - Europe’s largest agricultural event - drawing over 240,000 visitors each year. Together, Llanwrtyd Wells and Builth Wells offer a perfect blend of small-town charm, rich heritage, and vibrant local culture in the heart of Mid-Wales.

Important Information

  • This is a Freehold property.

Property Ref: 29274940

Share:

Similar Properties

Broadway, Builth Wells, LD2

3 Bedroom Detached House | Offers in region of £260,000

Set on a quiet, leafy street just a short walk from the centre of Builth Wells, this spacious property boasts classic re...

Tremont Park, Llandrindod Wells, LD1

4 Bedroom Semi-Detached House | £250,000

Superbly presented three-bedroom semi-detached home with modern kitchen/diner, stylish shower room, ample parking and su...

Nyth Riverside Lodge - A Holiday Home With Fishing Rights, Erwood, Builth Wells, LD2

6 Bedroom Lodge | £240,000

Riverside Lodge in the Upper Wye Valley, Near Erwood A unique opportunity to acquire shares in the ownership of an idyll...

Dolydd Pentrosfa, Llandrindod Wells, LD1

3 Bedroom Detached House | £270,000

Stylish, spacious, and set against stunning unspoilt views, this immaculate detached home occupies a highly desirable po...

Cilmery, Builth Wells, LD2

4 Bedroom Detached House | £275,000

An attractive and conveniently located family home offering exceptionally spacious ground floor living, generous surroun...

Llanwrtyd Wells, LD5

3 Bedroom Detached Bungalow | £280,000

Modern dormer bungalow on the edge of Llanwrtyd Wells with flexible 2–3 bedroom layout, bright living spaces, generous p...

James Dean The Estate Agents Builth (Builth Wells)

Builth Wells, Powys, LD2 3AB

01982 552 537

How much is your home worth?

Use our short form to request a valuation of your property.

Request a Valuation

Mortgage Calculator

Amount Borrowed: £
Total Amount Repayable: £
Total Monthly Payment: £
©2026 The Guild of Property Professionals. All rights reserved. Terms and Conditions | Privacy Policy | Cookie Policy | Complaints Policy | Members Login
The Guild of Property Professionals Trading Address: 121 Park Lane, London W1K 7AG. GPEA Limited. Registered in England & Wales.  Company No: 02819824.  Registered Office Address: 2 St. Stephen's Court, St. Stephen's Road, Bournemouth, Dorset, England, BH2 6LA.  VAT Registration No: 576 8795 61
Book a Property Valuation Update Cookies Preferences