Lon Helyg, Llechryd, Cardigan

£395,000
SSTC
This property listing is now SSTC

3 Bedroom Detached Bungalow for sale in Llechryd

2 3 2
  • Detached three bedroom dormer bungalow
  • The property briefly comprises: Living Room, Kitchen/Diner, Garden/Sun Room, Utility, Bedroom and Shower Room on the Ground Floor
  • On the First Floor there are Two Bedrooms and a Family Bathroom
  • Externally, there is a Garage, ample off road parking, and mature shrubs and bushes to the fore.
  • To the rear, there are lawned and patio areas, again with a variety shrubs and bushes

A detached dormer bungalow with three well-proportioned bedrooms, this property is ideal for families or those seeking extra space for guests or a home office.

As you approach the house, you will be greeted by a welcoming exterior that hints at the warmth within. The spacious living areas are designed to provide a sense of openness and light, making it a perfect setting for both relaxation and entertaining. The kitchen is functional and inviting, providing ample space for culinary adventures and family gatherings.

The bedrooms are thoughtfully arranged, ensuring privacy and comfort for all occupants. Each room is filled with natural light, creating a serene atmosphere that is perfect for unwinding after a long day. The surrounding area is peaceful, offering a sense of community while still being conveniently located near local amenities.

uPVC double glazed door to:

Hall - uPVC double glazed window, radiator, stairs rising off, under stairs storage, wood effect flooring. Doors to:

Living Room - Dual aspect uPVC double glazed windows, feature fire surround with inset fire, radiator, wood effect flooring.

Kitchen/Diner - Having a range of wall and base units with work surface over, inset stainless steel sink unit, electric cooker and hob, with extractor fan over, integrated fridge/freezer, void for dishwasher, tiled flooring to the kitchen, with wood effect flooring to the diner. Vertical radiator, uPVC double glazed window, glazed doors to:

Garden/Sun Room - uPVC double glazed windows over looking the garden, door to rear, tiled flooring, radiator.

Rear Porch/Utility Room - Grant oil fired boiler. Void and plumbing for washing machine, tiled flooring, uPVC double glazed door and window.

Bedroom - uPVC double glazed window to the rear, radiator, wood effect flooring.

Shower Room - Shower enclosure, pedestal hand wash basin, low flush w.c. Heated towel rail, tiled walls, extractor fan, uPVC double glazed window.

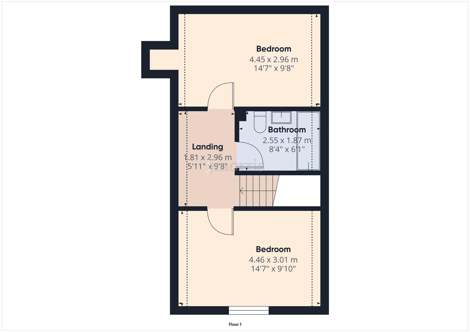
First Floor -

Landing - Velux window, radiator, doors to:

Bedroom - Wooden flooring, radiator, Velux roof window, eaves storage.

Bedroom - uPVC double glazed window, wooden flooring, radiator.

Family Bathroom - Bath with mixer tap and shower attachment over, pedestal hand wash basin, low flush w.c. Tiled walls, heated towel rail, Velux roof window.

Externally - The property is approached via a gated entrance opening up to a tarmac drive way with mature shrubs and bushes. Paved path way extend around the property to the rear garden. The rear garden is mainly laid to lawn with a variety of shrubs and bushes, paved patio area.

Garage -

Utilities & Services - Heating Source: Oil-fired central heating.

Services:

Electricity: Mains

Water: Mains

Drainage: tbc

Tenure: Freehold and available with vacant possession upon completion

Local Authority: Ceredigion County Council

Council Tax: Band tbc

What3Words: ///royal.professed.envisage

Anti Money Laundering & Ability To Purchase - Please note when making an offer we will require information to enable us to confirm all parties identities as required by Anti Money Laundering (AML) Regulations. We may also conduct a digital search to confirm your identity.

We will also require full proof of funds such as a mortgage agreement in principle, proof of cash deposit or if no mortgage is required, we will require sight of a bank statement. Should the purchase be funded through the sale of another property, we will require confirmation the sale is sufficient enough to cover the purchase.

Broadband Availability - According to the Ofcom website, this property has both standard and superfast broadband available, with speeds up to Standard 1mbps upload and 16mbps download and Superfast 12mbps upload and 63mbps download. Please note this data was obtained from an online search conducted on ofcom.org.uk and was correct at the time of production.
Some rural areas are yet to have the infrastructure upgraded and there are alternative options which include satellite and mobile broadband available. Prospective buyers should make their own enquiries into the availability of services with their chosen provider.

Mobile Phone Coverage - The Ofcom website states that the property has the following mobile coverage

EE - Good outdoor
Three - Variable outdoor
O2 - Good outdoor
Vodafone. - Variable outdoor

Results are predictions and not a guarantee. Actual services available may be different from results and may be affected by network outages. Please note this data was obtained from an online search conducted on ofcom.org.uk and was correct at the time of production. Prospective buyers should make their own enquiries into the availability of services with their chosen provider.

Property Ref: 278594_34163042

Share:

Similar Properties

Sarnau/Penbryn, (Near To The Beach), Llandysul

2 Bedroom Chalet | £395,000

An opportunity to purchase a plot of land extending to approximately 0.54 acres, together with a two-bedroom chalet bene...

Waungiach, Llechryd, Cardigan SA43 2PT

3 Bedroom Detached Bungalow | £389,950

A deceptively spacious three bedroom detached bungalow situated in the favoured residential village of Llechryd, just a...

Beulah, Newcastle Emlyn

4 Bedroom Country House | Guide Price £385,000

An improvable 5 Acre Smallholding with a range of outbuildings and barns, the property has deteriorated over recent year...

Llangoedmor, Cardigan

4 Bedroom Detached House | £399,950

A Period Four Bedroom Detached House set over three floors with accommodation comprising: Porch Hall, Living Room, Sun R...

Blaenporth, Cardigan

3 Bedroom Detached Bungalow | £399,950

This attractive and well-presented property is situated in a rural and idyllic location on the outskirts of the village...

Llangoedmor, Cardigan

4 Bedroom Detached House | £399,950

A substantial four bedroom house with a self contained one bedroom flat on the ground floor, ideally suited for 'multi-g...

JJ Morris (Cardigan)

5 High Street, Cardigan, SA43 1HJ

01239 612343

How much is your home worth?

Use our short form to request a valuation of your property.

Request a Valuation

Mortgage Calculator

Amount Borrowed: £
Total Amount Repayable: £
Total Monthly Payment: £
©2025 The Guild of Property Professionals. All rights reserved. Terms and Conditions | Privacy Policy | Cookie Policy | Complaints Policy | Members Login
The Guild of Property Professionals Trading Address: 121 Park Lane, London W1K 7AG. GPEA Limited. Registered in England & Wales.  Company No: 02819824.  Registered Office Address: 2 St. Stephen's Court, St. Stephen's Road, Bournemouth, Dorset, England, BH2 6LA.  VAT Registration No: 576 8795 61
Book a Property Valuation Update Cookies Preferences