Fitzjohns Avenue, Belsize Park, NW3

Asking Price
£2,595,000
Under Offer
This property listing is now Under Offer

5 Bedroom Flat for sale in London

1 5 4
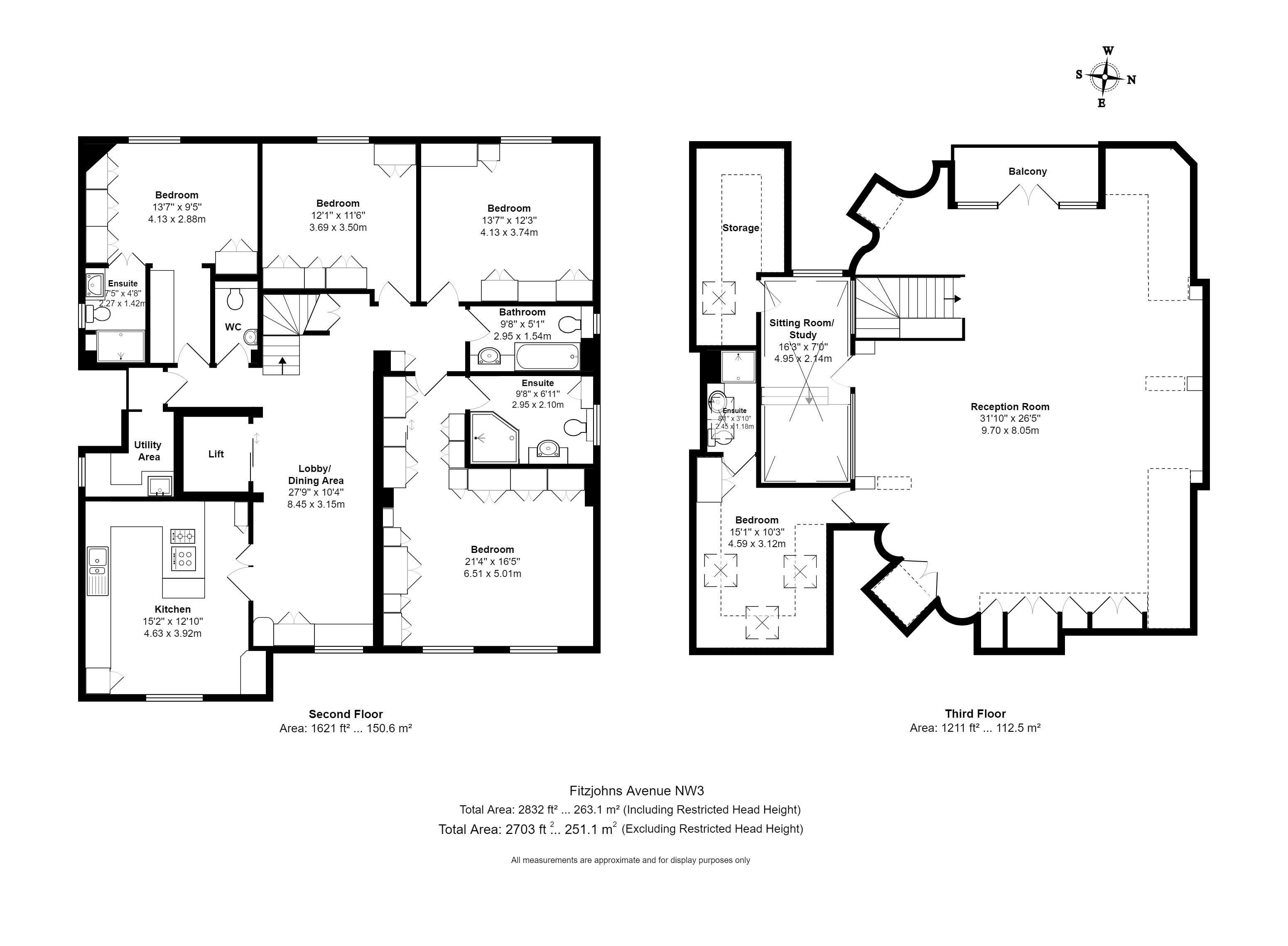
  • Private lift access directly to this duplex apartment
  • Stunning vaulted reception to upper level with terrace
  • Five bedrooms, Four bathrooms, three of which en- suite plus one guest cloakroom
  • One of three apartments within this period detached property. Off street parking for one car.

Spectacular 5 bedroom, 4.5 bathroom duplex apartment measuring approximately 2832 sq ft (inclusive of restricted head height) has private lift access directly from the lobby entrance. The apartment is located on the upper two floors of a detached period property of brick and tile construction comprising three flats in total with off street parking on the forecourt for one car. The apartment comprises: private lift entrance opening onto large hallway/ dining area, separate eat in kitchen, main bedroom with en-suite, three further bedrooms (one with en suite), family bathroom, guest cloakroom and utility area. Stairs lead to the upper level comprising: stunning vaulted reception leading to private terrace, additional study room with storage, bedroom five with en-suite.



Tenure: Leasehold, 999 years from 2025

Ground rent: peppercorn

EPC rating: Band- C.

Service charge demand 30% of outgoings. 2025 demand £5,821.00.

Council Tax Band- H (£4,212.72 24-25 demand). Planning consent was granted (now lapsed) for two additional balconies to the lower rear elevation. Lift maintenance in place 6 visits per annum (£600 plus vat).



Ofcom details: 5G is predicted to be available around your location from the following provider(s): EE, Three, O2, Vodafone. Please note that this predicted 5G coverage is for outdoors only. Ofcom details: Ultrafast broadband through Virgin Media, Openreach, G.Network

Planning: not aware of any planning applications pertaining to this property.

Accessibility: Steps down to main entrance. Private lift directly into the apartment. Further staircase within the duplex.

Important Information

  • This is a Leasehold property.
  • This Council Tax band for this property is: H
  • EPC Rating is C

Property Ref: HAM_HAM230004

Share:

Similar Properties

Rosslyn Hill Belsize Park

3 Bedroom Flat | Asking Price £1,650,000

An exquisite three bedroom, two bathroom, penthouse apartment with stunning double height reception and 25ft mezzanine l...

Wessex Gardens, Golders Green, NW11

4 Bedroom Semi-Detached House | Asking Price £1,250,000

A stylishly refurbished and well-presented four-double bedroom three-bathroom, Freehold, semi-detached family home measu...

Elgin Mews North Maida Vale

3 Bedroom Mews House | Asking Price £1,175,000

Charming and lovely, well-maintained, three-bedroom, two-bathroom mews house of brick and tiled roof construction with n...

Maresfield Gardens, Hampstead NW3

3 Bedroom Ground Floor Flat | Asking Price £2,995,000

Rarely available, a unique, elegant, three double bedroom, two-bathroom garden apartment measuring internally approximat...

North Square Hampstead Garden Suburb

6 Bedroom Terraced House | Asking Price £3,295,000

A unique opportunity to acquire this grand and spacious, period home of Grade II* listing, which has come to the market...

Property Divas (Hampstead)

Rosslyn Hill, Hampstead, London, NW3 1NH

020 7431 8000

How much is your home worth?

Use our short form to request a valuation of your property.

Request a Valuation

Mortgage Calculator

Amount Borrowed: £
Total Amount Repayable: £
Total Monthly Payment: £
©2025 The Guild of Property Professionals. All rights reserved. Terms and Conditions | Privacy Policy | Cookie Policy | Complaints Policy | Members Login
The Guild of Property Professionals Trading Address: 121 Park Lane, London W1K 7AG. GPEA Limited. Registered in England & Wales.  Company No: 02819824.  Registered Office Address: 2 St. Stephen's Court, St. Stephen's Road, Bournemouth, Dorset, England, BH2 6LA.  VAT Registration No: 576 8795 61
Book a Property Valuation Update Cookies Preferences